※このサイトに記載がある賃貸条件は、敷金・保証金などの預かり金を除き、別途消費税がかかります。
物件情報
設備詳細
| 空調 | - |
|---|---|
| トイレ | - |
| 床仕様 | - |
| エレベータ | 1 基 |
| 駐車場設備 | - |
| その他 | 新耐震基準 / 天井高3m以上 |
築地シティプラザの賃貸オフィス・事務所に関するお問い合わせ
築地シティプラザについて
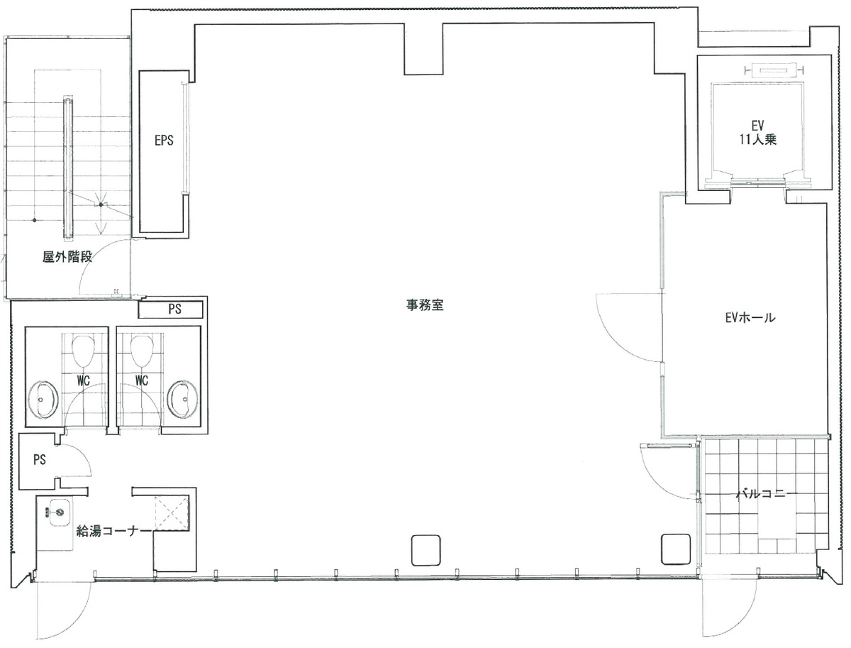
築地シティプラザビルは、東京の中央区築地2丁目に位置する、築年数が浅く、ハイグレードな賃貸オフィスビルです。2008年に竣工し、その品質の高さとデザイン性の良さで注目を集めています。このビルは、ビジネスの中心地である東京で、あなたの企業に最適なオフィス空間を提供します。 まず、築地シティプラザビルの外観は、全面ガラス張りで、透明感と開放感を演出しています。このデザインは、企業のイメージを現代的かつプロフェッショナルなものへと引き上げます。また、白を基調としたエントランスホールは、来訪者に明るく清潔感のある第一印象を与えます。 ビルの立地も魅力の一つです。築地駅から徒歩2分、新富町駅からも徒歩圏内という、交通の便が非常に良い場所に位置しています。さらに、周辺には飲食店やコンビニが充実しており、ビルの利用者にとって大変便利な環境が整っています。 築地シティプラザビルのスペックも見逃せません。基準階約26坪の賃貸オフィスは、足元から天井まで広がる大きな窓面で、自然光がたっぷりと入るため、明るく快適なオフィス空間を提供します。また、男女別のトイレや給湯スペースが各フロアに設けられており、個別空調システムにより、一年中快適な室温を維持できます。 セキュリティ面でも、機械警備システムが完備されており、入居企業とその従業員の安全を確保しています。これらの設備は、ビジネスの生産性と効率性を高める上で欠かせないものです。 総じて、築地シティプラザビルは、その立地の良さ、モダンで高品質な設備、そして快適なオフィス環境を求める企業にとって、最適な選択肢です。このビルは、あなたのビジネスを成功に導くための理想的なステージを提供します。
築地シティプラザのこだわり
自分で探すより問い合わせる方が早いことがあります
WEB非公開物件があるから
オーナー様のご希望により「WEBでは非公開」にしている物件があります。 それらはWEBでいくら検索しても見つかりません。 先ずは条件などお知らせ頂けましたら非公開物件含め ピッタリのオフィスをご提案させて頂きます。 無理なお勧めはしておりませんので、お気軽にお問い合わせください。
対面でのご相談も受け付けております
ご来店も歓迎です
オフィス移転は社内・社外ともに非公開に行われることが殆どです。そのためアットオフィスでは、基本的に訪問によるコンサルティングを行っておりますが、ご来店の相談も歓迎です。お一人おひとりに親身にご対応させて頂きたい為、要予約とさせて頂いております。ご来店の際は先ずは下記よりご予約下さい。
募集終了のテナント区画
| 階数 | 坪数 | 賃料 + 共益費 | 敷金/礼金敷金 礼金 | 検討 |
|---|---|---|---|---|
| 1階 | 14.32坪 (47.35m²) | 募集終了 | - | - |
| 3階 | 26.45坪 (87.44m²) | 募集終了 | - | - |
| 4階 | 26.45坪 (87.44m²) | 募集終了 | - | - |
| 5階 | 26.45坪 (87.44m²) | 募集終了 | - | - |
| 6階 | 26.45坪 (87.44m²) | 募集終了 | - | - |
| 7階 | 26.45坪 (87.44m²) | 募集終了 | - | - |
| 8階 | 26.45坪 (87.44m²) | 募集終了 | - | - |
| 9階 | 25坪 (82.64m²) | 募集終了 | - | - |
| 9階 | 25.64坪 (84.79m²) | 募集終了 | - | - |
読込中...
新富/築地エリアで築地シティプラザに似た条件の物件
読込中...
| 取扱様態 | 仲介 |
|---|---|
| 取扱会社 | 株式会社 アットオフィス |