※このサイトに記載がある賃貸条件は、敷金・保証金などの預かり金を除き、別途消費税がかかります。
物件情報
設備詳細
| 空調 | 個別空調 |
|---|---|
| トイレ | 男女共用トイレ・室内 |
| 床仕様 | - |
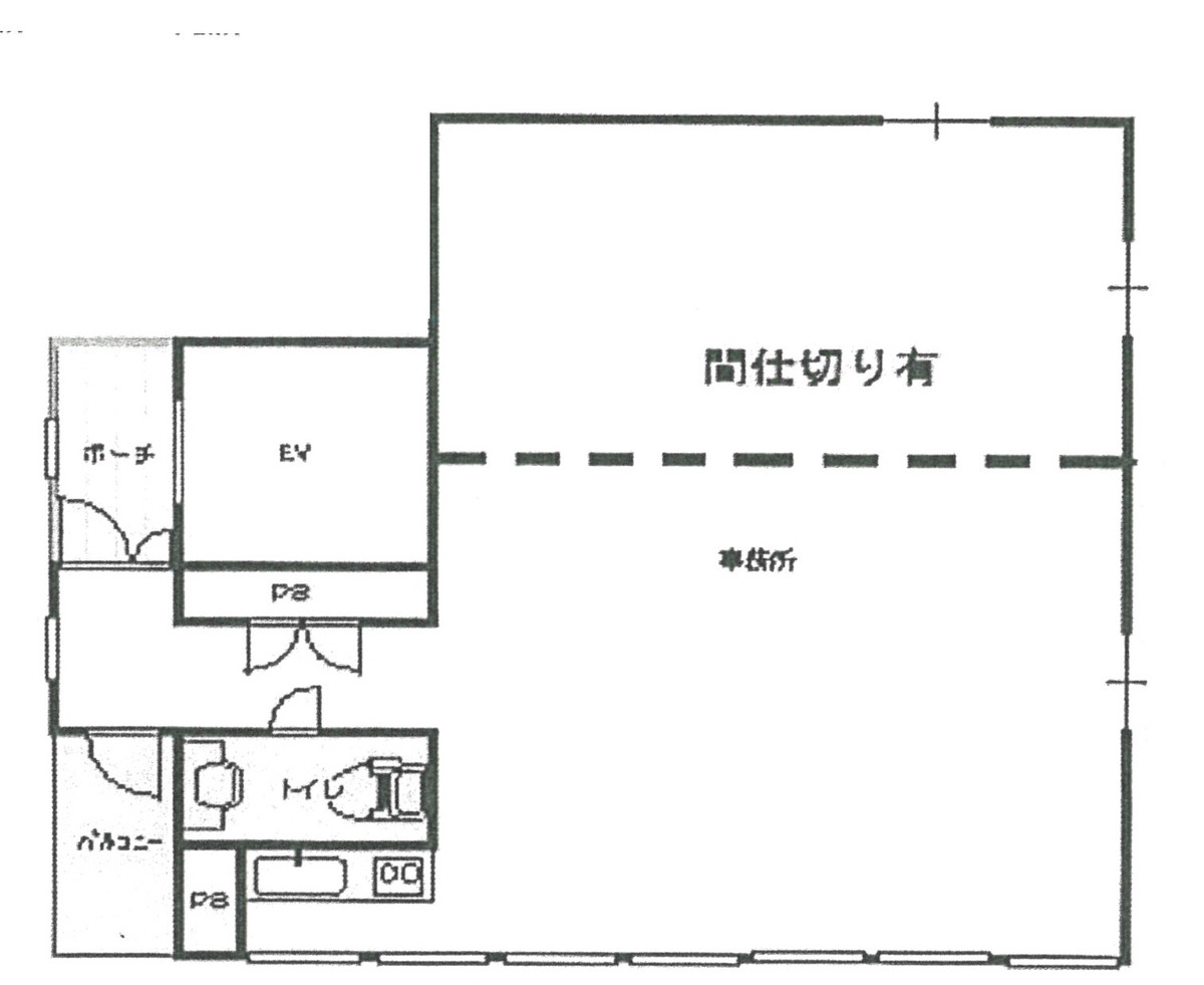
| エレベータ | 1 基 |
| 駐車場設備 | - |
| その他 | 新耐震基準 / 機械警備 / オートロック / 24時間利用可 / 光ファイバー / 店舗可(飲食不可) |
浅草SPビルの賃貸オフィス・事務所に関するお問い合わせ
浅草SPビルについて
志村ビルは、東京都台東区西浅草2丁目に位置する、1992年に竣工された耐震性能を備えたオフィスビルです。このビルは合羽橋通りに面しており、田原町駅からわずか徒歩3分という抜群の立地条件を誇ります。ビジネスの中心地である東京都心へのアクセスの良さは、日々の通勤はもちろん、ビジネスチャンスを最大限に活かす上で大きなメリットと言えるでしょう。 このオフィスビルは、24時間利用可能で、機械警備システムを完備しているため、セキュリティ面においても高い安心感を提供します。夜間や休日でも安心して業務を行うことができる環境は、フレキシブルな働き方を求める現代のビジネスパーソンにとって、大きな魅力となるでしょう。 耐震性に優れた建築構造は、天災が起きた際の安全性を確保し、ビルに入居する企業や従業員の安全を守ります。1992年の竣工ということで、長い期間にわたり安定した利用がされていることも、その信頼性の証と言えます。 ビル内にはエレベーターが1機設置されており、スムーズな移動をサポートします。小規模ながらも効率的に動けるビル構造は、特にスタートアップ企業や中小企業にとって最適な環境を提供します。また、西浅草という立地は、下町情緒溢れる地域性を生かしたビジネス展開にも役立つでしょう。地域密着型の事業や、観光関連のビジネスにも最適な環境です。 加えて、合羽橋通りはキッチン用品で有名な商店街があり、日々の生活に必要なものから、ビジネスに必要な資材まで、幅広いニーズに応えることができます。このように、志村ビルは立地、セキュリティ、機能性を兼ね備えたオフィスビルとして、多種多様なビジネスシーンでの活躍が期待できる物件です。 ビジネスの拠点として最適なこのビルで、あなたのビジネス展開に新たな一歩を踏み出してみてはいかがでしょうか。高い機能性と利便性を兼ね備えた志村ビルは、あなたのビジネスの成功を強力にサポートします。
浅草SPビルのこだわり
自分で探すより問い合わせる方が早いことがあります
WEB非公開物件があるから
オーナー様のご希望により「WEBでは非公開」にしている物件があります。 それらはWEBでいくら検索しても見つかりません。 先ずは条件などお知らせ頂けましたら非公開物件含め ピッタリのオフィスをご提案させて頂きます。 無理なお勧めはしておりませんので、お気軽にお問い合わせください。
対面でのご相談も受け付けております
ご来店も歓迎です
オフィス移転は社内・社外ともに非公開に行われることが殆どです。そのためアットオフィスでは、基本的に訪問によるコンサルティングを行っておりますが、ご来店の相談も歓迎です。お一人おひとりに親身にご対応させて頂きたい為、要予約とさせて頂いております。ご来店の際は先ずは下記よりご予約下さい。
募集終了のテナント区画
| 階数 | 坪数 | 賃料 + 共益費 | 敷金/礼金敷金 礼金 | 検討 |
|---|---|---|---|---|
| 3階 | 20.06坪 (66.31m²) | 募集終了 | - | - |
| 4階 | 20.05坪 (66.31m²) | 募集終了 | - | - |
| 6階 | 20.06坪 (66.31m²) | 募集終了 | - | - |
読込中...
浅草橋/蔵前/浅草エリアで浅草SPビルに似た条件の物件
読込中...
| 取扱様態 | 仲介 |
|---|---|
| 取扱会社 | 株式会社 アットオフィス |