ミッドタウン・タワー39階の賃貸情報
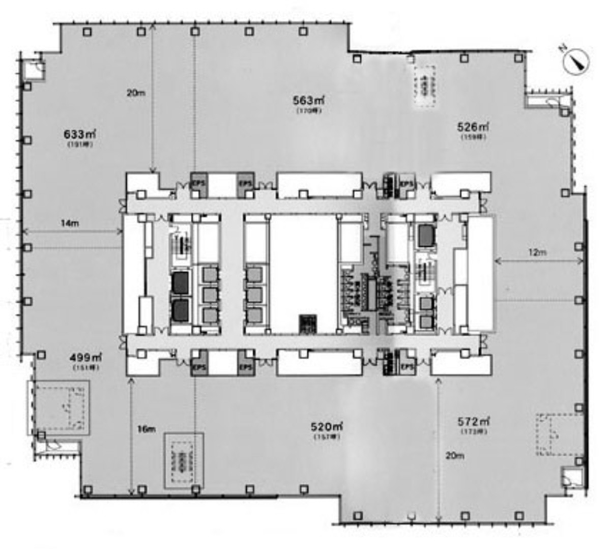
506.83 坪 (1675.48m²)
※このサイトに記載がある賃貸条件は、敷金・保証金などの預かり金を除き、別途消費税がかかります。
ミッドタウン・タワーの建物概要
設備詳細
| 空調 | 個別空調 / セントラル空調 |
|---|---|
| トイレ | 男女別トイレ |
| 床仕様 | OA対応床(フリーアクセス) |
| エレベータ | 59 基 / エレベーター有 |
| 駐車場設備 | 空有 / 敷地内駐車場 |
| その他 | 大型ビル / 高層ビル / 機械警備 / 24時間利用可 / レストラン / オフィス・店舗複合 / 非接触ICカードキー / 無料ラウンジ / 駅直結 / 新耐震基準 |
ミッドタウン・タワー39階の賃貸オフィス・事務所に関するお問い合わせ
ミッドタウン・タワーについて
東京都港区赤坂に誕生したミッドタウン・タワーは、国内最高水準の耐震性能を有する賃貸オフィスビルとして、ビジネスシーンに新たな風を吹き込んでいます。このビルは、2007年のグッドデザイン賞をはじめとする数々の賞に輝き、建築、緑化、経済効果、総合力の各面で高い評価を受けています。最先端の制震技術を導入し、地震に強い安心のオフィス環境を提供しております。 ミッドタウン・タワーのオフィスフロアは、1000坪を超える広大なスペースを誇り、環境や省エネに配慮した設計が特徴です。断熱性と遮熱性に優れたLow-e複層ガラスや自動制御ブラインド、自動調光システムを導入することで、快適なオフィス空間を実現しています。また、屋上緑化により、ヒートアイランド現象の緩和にも取り組んでおります。 施設内では、約130のショップやレストラン、銀行や郵便局など、多種多様な店舗が入居しており、オフィスワーカーの日常生活を大きくサポートします。サービスアパートメントやプレミアム人間ドックを備えたメディカルセンターも完備しており、ビジネスパーソンの健康管理にも配慮がなされています。 立地においては、東京メトロ日比谷線六本木駅から直結という優れたアクセス性を誇り、周辺には六本木ヒルズや国立美術館などの文化施設や、一流企業が点在しています。ビジネスの中心地として、また文化や交流の場としても、ミッドタウン・タワーは多くの可能性を秘めております。 セキュリティ面でも、エントランスやスカイロビー階に非接触ICカードリーダー搭載のセキュリティゲートを設置し、テナントの安全とプライバシーをしっかりと守っています。敷地内完備の駐車場や乗用10基のエレベーター設置も、利便性の高さを物語っています。 東京ミッドタウンとしてのミッドタウン・タワーは、ビジネスの成功を支える最高の環境を提供するとともに、自然との共生や環境への配慮を忘れない、新時代のオフィスビルの姿を示しています。
自分で探すより問い合わせる方が早いことがあります
WEB非公開物件があるから
オーナー様のご希望により「WEBでは非公開」にしている物件があります。 それらはWEBでいくら検索しても見つかりません。 先ずは条件などお知らせ頂けましたら非公開物件含め ピッタリのオフィスをご提案させて頂きます。 無理なお勧めはしておりませんので、お気軽にお問い合わせください。
対面でのご相談も受け付けております
ご来店も歓迎です
オフィス移転は社内・社外ともに非公開に行われることが殆どです。そのためアットオフィスでは、基本的に訪問によるコンサルティングを行っておりますが、ご来店の相談も歓迎です。お一人おひとりに親身にご対応させて頂きたい為、要予約とさせて頂いております。ご来店の際は先ずは下記よりご予約下さい。
赤坂/六本木/麻布エリアでミッドタウン・タワーに似た条件の物件
読込中...
ミッドタウン・タワーと同じ最寄駅の物件
読込中...
| 取扱様態 | 仲介 |
|---|---|
| 取扱会社 | 株式会社 アットオフィス |