※このサイトに記載がある賃貸条件は、敷金・保証金などの預かり金を除き、別途消費税がかかります。
物件情報
設備詳細
| 空調 | 個別空調 |
|---|---|
| トイレ | 男女共用トイレ・室内 |
| 床仕様 | OA対応床(フリーアクセス) |
| エレベータ | 1 基 |
| 駐車場設備 | - |
| その他 | 新耐震基準 / 管理人常駐 / セットアップ / SOHO可 |
デュープレックス銀座タワー8/14の賃貸オフィス・事務所に関するお問い合わせ
デュープレックス銀座タワー8/14について
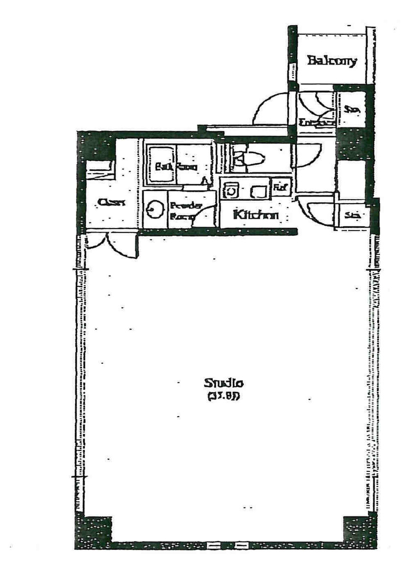
デュープレックス銀座タワー8/14は、東京都中央区銀座8-14-9に位置する、2007年に竣工した現代的なオフィスビルです。この物件は、最新の耐震基準に準拠して建設され、事業主や従業員の安全を第一に考えた設計がなされています。また、SOHOタイプのオフィスとしても利用可能であり、住居兼事務所としての使用が想定されております。 立地においては、デュープレックス銀座タワー8/14は、新橋駅、銀座駅、汐留駅、築地駅といった複数の鉄道駅に近接しており、公共交通機関によるアクセスの利便性が非常に高い点が特徴です。銀座という日本を代表するビジネスおよび商業エリアの中心に位置しているため、企業のブランドイメージ向上や人材採用においても大きなメリットを提供します。 設備面では、全室OAフロア完備、ドラム式洗濯乾燥機、インターネット・電話回線対応、カラーモニター付きインターホン等、現代のビジネスニーズに対応した充実した設備が整っています。また、ビル内には月極駐車場も設けられており、車を利用する従業員や来客の利便性も高められています。 セキュリティ面では、オートロックシステムや機械警備が導入されており、入居企業および従業員の安全とセキュリティが確保されています。このようなセキュリティ体制は、ビジネスの安定運営を支える重要な要素となります。 デュープレックス銀座タワー8/14は、その立地、設備、セキュリティの面で、多様なビジネスニーズに対応可能なオフィススペースとして、特にSOHOタイプでの利用を検討されている企業にとって魅力的な選択肢となるでしょう。日当たりの良い室内とスタイリッシュなデザインは、創造的な仕事環境を求める企業や個人にとって、最適な環境を提供します。
デュープレックス銀座タワー8/14のこだわり
自分で探すより問い合わせる方が早いことがあります
WEB非公開物件があるから
オーナー様のご希望により「WEBでは非公開」にしている物件があります。 それらはWEBでいくら検索しても見つかりません。 先ずは条件などお知らせ頂けましたら非公開物件含め ピッタリのオフィスをご提案させて頂きます。 無理なお勧めはしておりませんので、お気軽にお問い合わせください。
対面でのご相談も受け付けております
ご来店も歓迎です
オフィス移転は社内・社外ともに非公開に行われることが殆どです。そのためアットオフィスでは、基本的に訪問によるコンサルティングを行っておりますが、ご来店の相談も歓迎です。お一人おひとりに親身にご対応させて頂きたい為、要予約とさせて頂いております。ご来店の際は先ずは下記よりご予約下さい。
募集終了のテナント区画
| 階数 | 坪数 | 賃料 + 共益費 | 敷金/礼金敷金 礼金 | 検討 |
|---|---|---|---|---|
| B1階 | 40.02坪 (132.29m²) | 募集終了 | - | - |
| 1階 | 24.24坪 (80.13m²) | 募集終了 | - | - |
| 2階 | 24.77坪 (81.89m²) | 募集終了 | - | - |
| 2階 | 24.77坪 (81.89m²) | 募集終了 | - | - |
| 3階 | 24.77坪 (81.88m²) | 募集終了 | - | - |
| 3階 | 24.77坪 (81.88m²) | 募集終了 | - | - |
| 4階 | 24.77坪 (81.89m²) | 募集終了 | - | - |
| 4階 | 24.79坪 (81.98m²) | 募集終了 | - | - |
| 5階 | 24.77坪 (81.88m²) | 募集終了 | - | - |
| 5階 | 24.77坪 (81.88m²) | 募集終了 | - | - |
| 5階 | 24.77坪 (81.89m²) | 募集終了 | - | - |
| 6階 | 24.77坪 (81.89m²) | 募集終了 | - | - |
| 6階 | 24.77坪 (81.88m²) | 募集終了 | - | - |
| 7階 | 24.77坪 (81.89m²) | 募集終了 | - | - |
| 7階 | 24.77坪 (81.88m²) | 募集終了 | - | - |
| 8階 | 24.77坪 (81.89m²) | 募集終了 | - | - |
| 8階 | 24.77坪 (81.88m²) | 募集終了 | - | - |
| 9階 | 24.77坪 (81.88m²) | 募集終了 | - | - |
| 10階 | 24.77坪 (81.88m²) | 募集終了 | - | - |
| 11階 | 24.77坪 (81.88m²) | 募集終了 | - | - |
| 12階 | 24.77坪 (81.89m²) | 募集終了 | - | - |
| 12階 | 24.77坪 (81.89m²) | 募集終了 | - | - |
読込中...
銀座エリアでデュープレックス銀座タワー8/14に似た条件の物件
読込中...
| 取扱様態 | 仲介 |
|---|---|
| 取扱会社 | 株式会社 アットオフィス |