バルビゾン60ビルB1階の賃貸情報
146.56 坪 (484.5m²)
※このサイトに記載がある賃貸条件は、敷金・保証金などの預かり金を除き、別途消費税がかかります。
バルビゾン60ビルの建物概要
設備詳細
| 空調 | - |
|---|---|
| トイレ | - |
| 床仕様 | OA対応床(フリーアクセス) |
| エレベータ | 1 基 |
| 駐車場設備 | - |
| その他 | デザイナーズ / 新耐震基準 / クリニック / スケルトン |
バルビゾン60ビルB1階の賃貸オフィス・事務所に関するお問い合わせ
バルビゾン60ビルについて
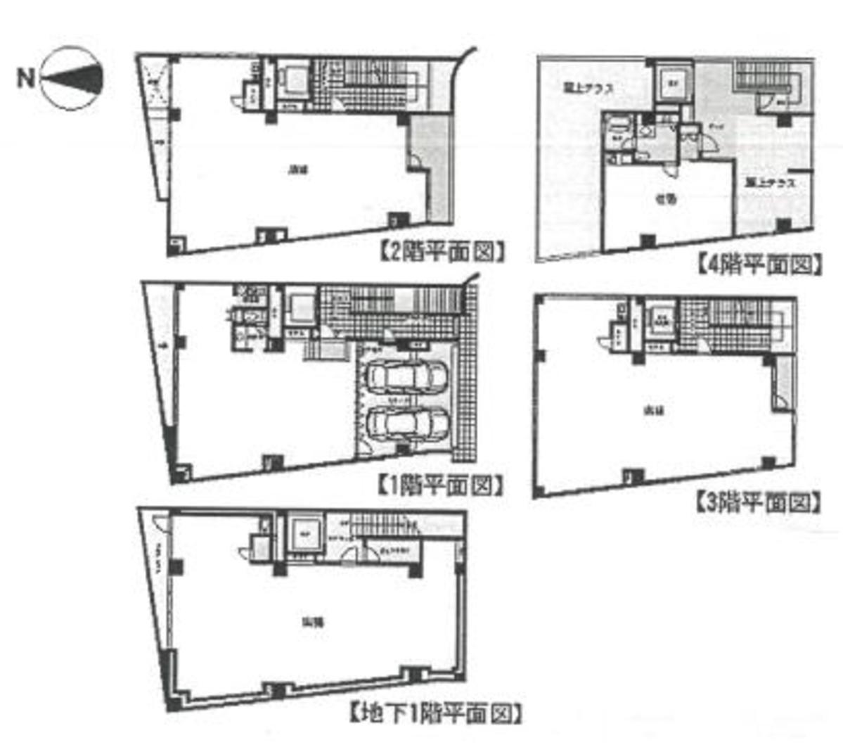
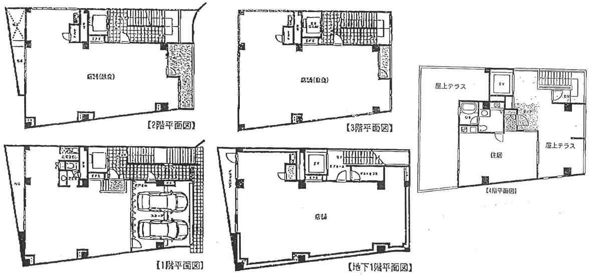
バルビゾン60は、東京都港区西麻布3丁目に位置する、洗練されたデザインが特徴のオフィスビルです。このビルは、地上4階・地下2階建てで、合計約120坪の広さを誇ります。白い外壁と青みがかったガラス窓が特徴的で、現代的な雰囲気を醸し出しています。一棟貸しも可能なこの賃貸オフィスは、企業が独自のブランドイメージを確立するのに理想的な空間を提供します。 エントランスは石造りで、高級感あふれるデザインが訪れる人々を迎えます。細長い通路を抜けると、エレベーターへと続きます。セキュリティ面では、機械式警備を採用しており、ビル内の安全は万全です。また、屋上にはテラスがあり、オフィスでの忙しい日々の中で、ほっと一息つくことができる空間が提供されています。 立地においても、バルビゾン60は魅力的です。静かで落ち着いた雰囲気の路地に面しており、周囲にはマンションや複数の大使館が立ち並び、閑静なエリアに位置しています。飲食店が少ないという点には注意が必要ですが、スーパーマーケットが徒歩数分の場所にあり、東側のテレビ朝日通りや西側の外苑西通りに出れば、多様なランチスポットが並びます。 アクセス面では、最寄り駅の六本木駅が少し距離がありますが、六本木ヒルズのメトロハットから地下へ簡単にアクセスできるため、通勤やビジネスの拠点としても非常に便利です。 バルビゾン60は、その高級感あふれる外観と、利便性の高い立地、そして充実した設備を兼ね備え、企業が成長し続けるための理想的な環境を提供します。このビルをビジネスの拠点とすることで、企業イメージの向上はもちろんのこと、従業員にとっても働きやすい環境を確保できるでしょう。バルビゾン60は、ビジネスの成功に欠かせない要素をすべて備えた、まさに理想的なオフィス空間です。
自分で探すより問い合わせる方が早いことがあります
WEB非公開物件があるから
オーナー様のご希望により「WEBでは非公開」にしている物件があります。 それらはWEBでいくら検索しても見つかりません。 先ずは条件などお知らせ頂けましたら非公開物件含め ピッタリのオフィスをご提案させて頂きます。 無理なお勧めはしておりませんので、お気軽にお問い合わせください。
対面でのご相談も受け付けております
ご来店も歓迎です
オフィス移転は社内・社外ともに非公開に行われることが殆どです。そのためアットオフィスでは、基本的に訪問によるコンサルティングを行っておりますが、ご来店の相談も歓迎です。お一人おひとりに親身にご対応させて頂きたい為、要予約とさせて頂いております。ご来店の際は先ずは下記よりご予約下さい。
赤坂/六本木/麻布エリアでバルビゾン60ビルに似た条件の物件
読込中...
バルビゾン60ビルと同じ最寄駅の物件
読込中...
| 取扱様態 | 仲介 |
|---|---|
| 取扱会社 | 株式会社 アットオフィス |