※このサイトに記載がある賃貸条件は、敷金・保証金などの預かり金を除き、別途消費税がかかります。
お電話でもお気軽にお問い合わせください
物件情報
設備詳細
| 空調 | - |
|---|---|
| トイレ | - |
| 床仕様 | - |
| エレベータ | 1 基 |
| 駐車場設備 | - |
| その他 | 24時間利用可 / 新耐震基準 |
アクセスマップ
東京都中央区新川、ビジネスの心臓部に位置する510ビルのご紹介をさせていただきます。この地は、茅場町駅から徒歩6分というアクセスの良さを誇り、八重洲通りからもすぐという理想的な立地にあります。ビルは新川2-14-4に所在し、ビジネスの中心地である八丁堀駅からも近接しております。この地域のビジネス環境は、活気に満ち、多様な業種の企業が集まるダイナミックな場所です。 510ビルは、3差路の角に建てられた、日当たりの良さが特徴のオフィスビルです。その立地条件から、ビルは三面採光であり、自然光がたっぷりと入る明るく開放的なオフィス空間を提供します。薄い緑色の壁は、自然光によってさらに心地よさを増し、働く人々にとって快適な環境をもたらします。 ビルの設傈においても、賃貸オフィスとしてのニーズに応える素晴らしい設計がなされています。エレベーターは1機設置されており、スムーズな移動をサポートします。このビルは、特にスタートアップ企業や中小企業にとって、理想的なオフィススペースを提供することでしょう。 立地、設備、そして環境、これらすべてが組み合わさって、510ビルは中央区新川において、ビジネスを行う上で最適な場所の一つと言えます。近隣には飲食店やコンビニなども充実しており、日々の業務に必要なあらゆるサポートが手の届く範囲内にあります。 ビジネスの成功は、立地と環境に大きく左右されます。510ビルは、その両方を提供します。明るく快適なオフィスで、社員の満足度を高め、生産性の向上にもつながるでしょう。また、茅場町駅や八丁堀駅といったアクセスの良い立地は、クライアントとの打ち合わせやビジネスチャンスを最大限に活かすことができます。 最後に、510ビルは、ビジネスの発展と成長を目指すすべての企業にとって、理想的な選択となるでしょう。この素晴らしいビルで、あなたのビジネスが次のステップへと進むことを願ってやみません。是非一度、お立ち寄りいただき、その魅力を自身の目で確かめてください。
募集終了のテナント区画
| 階数 | 坪数 | 賃料 + 共益費 | 敷金/礼金敷金 礼金 | 検討 |
|---|---|---|---|---|
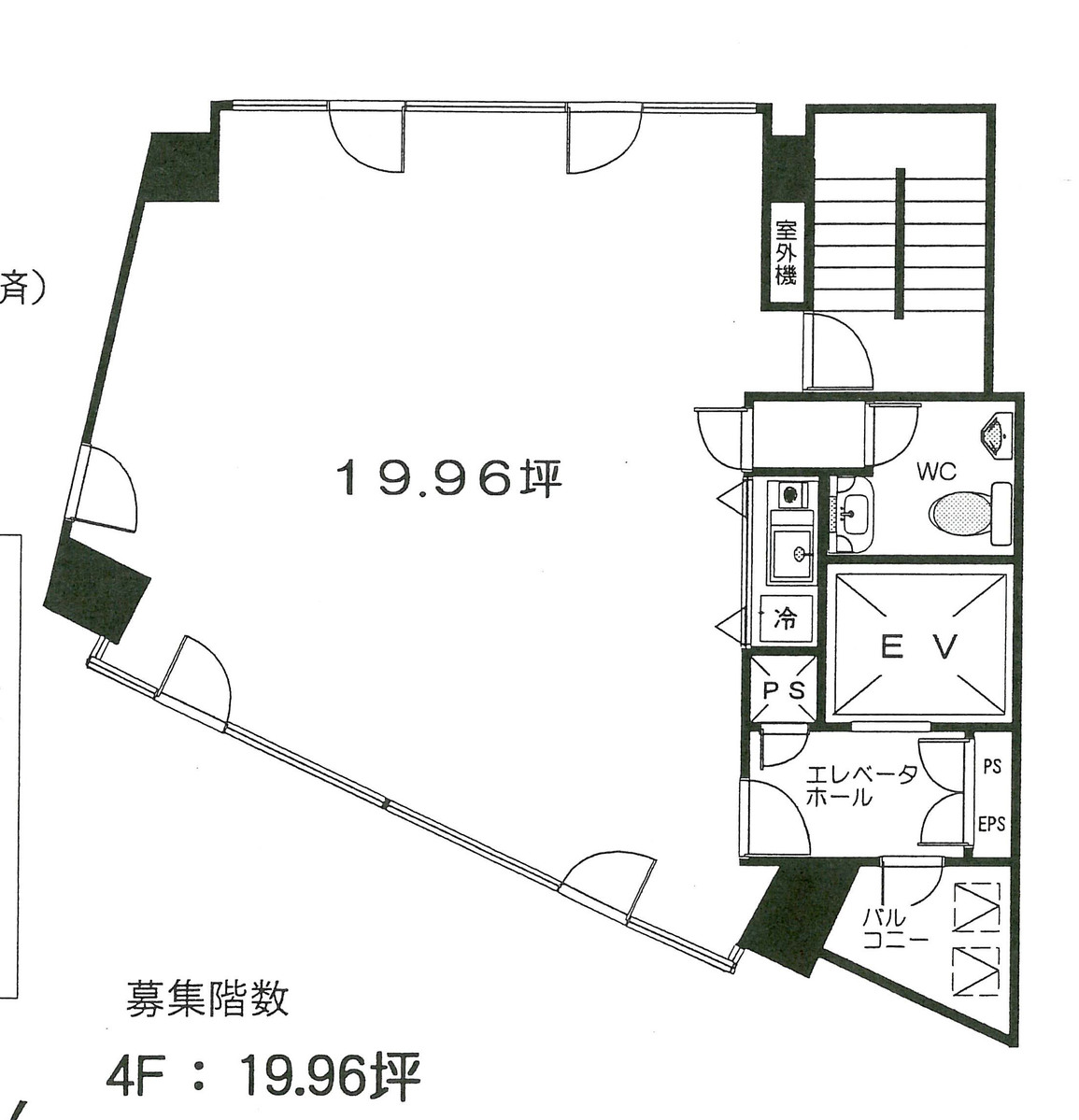
| 4階 | 19.96坪 (65.8m²) | 募集終了 | - | - |
| 6階 | 19.96坪 (65.99m²) | 募集終了 | - | - |
WEB非公開物件がございます
オーナー様ご希望によるWEB非公開の物件もございます。先ずは条件などお知らせ頂けましたら、非公開物件含めピッタリのオフィスをご提案させて頂きます。具体的な物件がお決まりでない場合でも問題ございません。無理なお勧めはしておりませんので、お気軽にお問い合わせください。
ご来店も歓迎です
オフィス移転は社内・社外ともに非公開に行われることが殆どです。そのためアットオフィスでは、基本的に訪問によるコンサルティングを行っておりますが、ご来店の相談も歓迎です。
※お一人おひとりに親身にご対応させて頂きたい為、要予約とさせて頂いております。ご来店の際は先ずは上記よりご予約下さい。
読込中...
近くのエリアで探してみる
茅場町/新川/八丁堀エリアで510ビルに似た条件の物件
読込中...