ファースト岡田ビル7階の賃貸情報
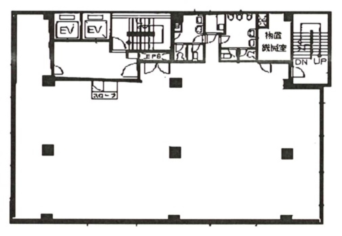
93.99 坪 (310.71m²)
※このサイトに記載がある賃貸条件は、敷金・保証金などの預かり金を除き、別途消費税がかかります。
ファースト岡田ビルの建物概要
設備詳細
| 空調 | 個別空調 |
|---|---|
| トイレ | - |
| 床仕様 | OA対応床(フリーアクセス) |
| エレベータ | 2 基 |
| 駐車場設備 | - |
| その他 | 機械警備 / 光ファイバー / 24時間利用可 |
ファースト岡田ビル7階の賃貸オフィス・事務所に関するお問い合わせ
ファースト岡田ビルについて
ファースト岡田ビルは、東京都港区芝4丁目に位置する、1981年に竣工した地上9階建て(地下1階を含む)の賃貸オフィス物件です。ビルの基準階坪数は約90坪強となっており、オフィススペースの広さは中規模の企業にも適しています。貸室内は3面採光により明るく、快適なオフィス環境を提供します。また、OAフロアや個別空調、光ケーブル(MDFまで)の設備が整っており、現代のビジネスニーズにも対応しています。男女別トイレにはウォシュレットが完備され、給湯スペースも貸室内に設置されており、快適なオフィス生活をサポートします。 セキュリティ面では、機械警備が導入されており、安心して業務を行うことができます。また、2基のエレベーターが設置され、スムーズな移動を可能にしています。ビルは耐震工事済みで、2007年には外壁・共用部の改修工事も実施されており、安全面とビルの美観の両方が保たれています。 立地においても、ファースト岡田ビルは魅力的です。都営地下鉄浅草線・三田線の三田駅から徒歩1分という好立地に加え、JR線の田町駅からも徒歩7分と、複数のアクセスルートがあります。この立地は、ビジネスの機動力を高める重要な要素となります。周囲はオフィス街でありながら静かな環境が保たれ、中学・高等学校や福祉会館などの施設が近隣にあり、利便性と快適さを兼ね備えています。 1階にはセブンイレブン三田駅北店が入居しており、日常の利便性が高められています。前面にある三田NNビルにはお弁当屋やメガバンクのATM、レストラン街があり、食事や用事を済ませるのにも便利な立地です。さらに、第一京浜に近く、郵便局や銀行支店も利用しやすい場所にあります。 ファースト岡田ビルは、その立地の良さ、充実した設備、安全性と快適性を兼ね備えた賃貸オフィスビルです。ビジネスの拠点としての利用はもちろん、多様なニーズに応える環境が整っています。これらの特徴は、企業活動をサポートし、従業員にとっても働きやすい環境を提供します。
ファースト岡田ビルのこだわり
自分で探すより問い合わせる方が早いことがあります
WEB非公開物件があるから
オーナー様のご希望により「WEBでは非公開」にしている物件があります。 それらはWEBでいくら検索しても見つかりません。 先ずは条件などお知らせ頂けましたら非公開物件含め ピッタリのオフィスをご提案させて頂きます。 無理なお勧めはしておりませんので、お気軽にお問い合わせください。
対面でのご相談も受け付けております
ご来店も歓迎です
オフィス移転は社内・社外ともに非公開に行われることが殆どです。そのためアットオフィスでは、基本的に訪問によるコンサルティングを行っておりますが、ご来店の相談も歓迎です。お一人おひとりに親身にご対応させて頂きたい為、要予約とさせて頂いております。ご来店の際は先ずは下記よりご予約下さい。
近くのエリアで探してみる
浜松町/田町/芝公園エリアでファースト岡田ビルに似た条件の物件
読込中...
ファースト岡田ビルと同じ最寄駅の物件
読込中...
| 取扱様態 | 仲介 |
|---|---|
| 取扱会社 | 株式会社 アットオフィス |