池袋デュープレックスビズビル8階の賃貸情報
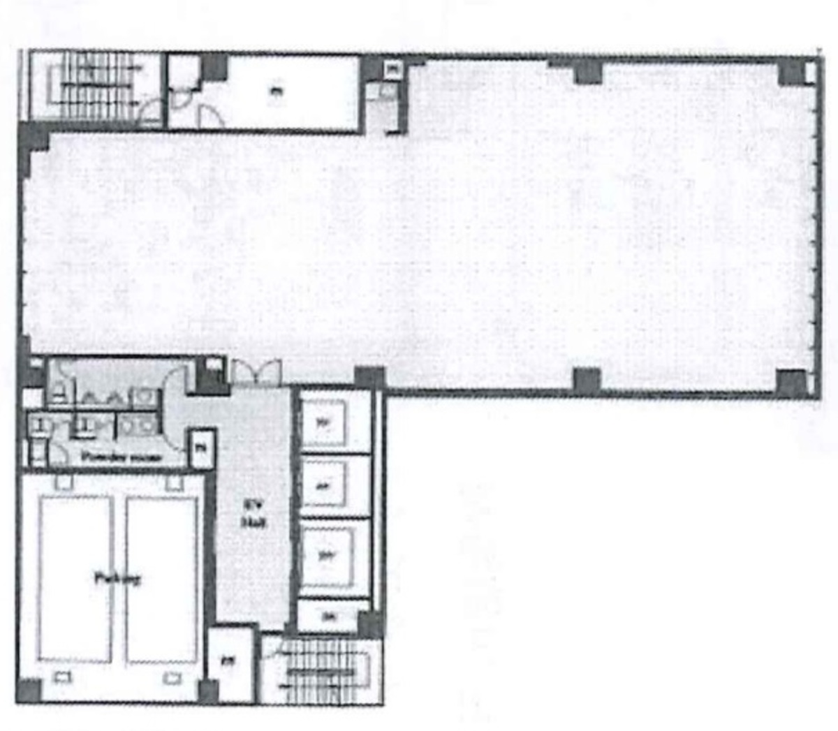
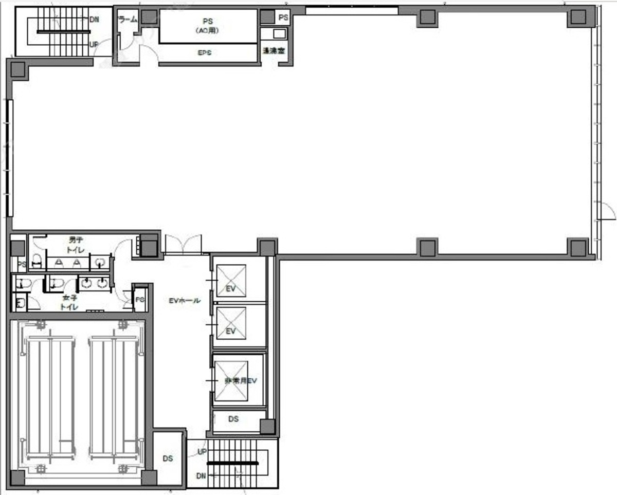
95.36 坪 (315.25m²)
※このサイトに記載がある賃貸条件は、敷金・保証金などの預かり金を除き、別途消費税がかかります。
池袋デュープレックスビズビルの建物概要
設備詳細
| 空調 | 個別空調 |
|---|---|
| トイレ | - |
| 床仕様 | OA対応床(フリーアクセス) |
| エレベータ | 2 基 |
| 駐車場設備 | 空有 |
| その他 | 機械警備 / 24時間利用可 / 光ファイバー / 新耐震基準 |
池袋デュープレックスビズビル8階の賃貸オフィス・事務所に関するお問い合わせ
池袋デュープレックスビズビルについて
### 池袋デュープレックスビズビルのご紹介 池袋デュープレックスビズビルは、東京都豊島区池袋2丁目に位置するハイグレードなオフィスビルです。2008年に竣工し、新耐震基準に対応した安心の建物です。劇場通りに面しており、池袋駅西口から徒歩8分という好立地にあります。また、副都心線の池袋駅C6出口からは一直線でアクセス可能です。 #### 特徴と立地 このビルは、ガラス張りの外観が特徴で、視認性が非常に高いです。エントランスのアプローチは神殿のようなデザインで、高級感を演出しています。周辺環境も非常に充実しており、池袋郵便局が隣接し、ビジネスユースも可能なホテルやコンビニ、飲食店が徒歩圏内にあります。 #### 設備と利便性 池袋デュープレックスビズビルの基準階面積は90坪を超え、中規模オフィスとして十分な広さを誇ります。天井高は2700mmで、東西両面に大きな窓があり、採光性に優れた開放的な空間が広がります。柱がないため、レイアウトの自由度も高く、効率的なオフィス設計が可能です。 ビル内には2基のエレベーターが設置されており、機械警備と有人警備が併用されているため、セキュリティ面でも安心です。さらに、ビル内には月極駐車場も完備しており、車でのアクセスにも便利です。空き状況についてはお問い合わせください。 #### ビジネスにおける利点 このビルはクリニックとしての利用も可能で、2階部分は店舗としても利用できるため、様々な業種に対応可能です。光回線やOAフロア、個別空調など、ビジネスに必要な設備が充実しており、高い快適性を提供します。 #### 独自の魅力 池袋デュープレックスビズビルの最大の魅力は、そのスタイリッシュなデザインと高級感です。特にガラスウォールの外観は、まるでファッションビルのような洗練されたイメージを与えます。上層階からはサンシャインをはじめとする池袋の景色を一望でき、眺望も素晴らしいです。 #### 総評 池袋デュープレックスビズビルは、立地、設備、デザインのすべてにおいて高い評価を受ける賃貸オフィスビルです。池袋エリアでオフィスをお探しの方には非常におすすめです。ぜひ一度、現地をご覧いただき、このビルの魅力を実感してください。 お問い合わせや内覧のご希望がございましたら、どうぞお気軽にご連絡ください。皆様のビジネスの成功をサポートする、最適なオフィス空間をご提供いたします。
池袋デュープレックスビズビルのこだわり
自分で探すより問い合わせる方が早いことがあります
WEB非公開物件があるから
オーナー様のご希望により「WEBでは非公開」にしている物件があります。 それらはWEBでいくら検索しても見つかりません。 先ずは条件などお知らせ頂けましたら非公開物件含め ピッタリのオフィスをご提案させて頂きます。 無理なお勧めはしておりませんので、お気軽にお問い合わせください。
対面でのご相談も受け付けております
ご来店も歓迎です
オフィス移転は社内・社外ともに非公開に行われることが殆どです。そのためアットオフィスでは、基本的に訪問によるコンサルティングを行っておりますが、ご来店の相談も歓迎です。お一人おひとりに親身にご対応させて頂きたい為、要予約とさせて頂いております。ご来店の際は先ずは下記よりご予約下さい。
池袋/大塚/目白エリアで池袋デュープレックスビズビルに似た条件の物件
読込中...
池袋デュープレックスビズビルと同じ最寄駅の物件
読込中...
| 取扱様態 | 仲介 |
|---|---|
| 取扱会社 | 株式会社 アットオフィス |