※このサイトに記載がある賃貸条件は、敷金・保証金などの預かり金を除き、別途消費税がかかります。
物件情報
設備詳細
| 空調 | 個別空調 |
|---|---|
| トイレ | 男女別トイレ室内 |
| 床仕様 | OA対応床(フリーアクセス) |
| エレベータ | 1 基 |
| 駐車場設備 | - |
| その他 | 機械警備 / 24時間利用可 / 光ファイバー / 新耐震基準 / セットアップ / オフィス居抜き特集 |
ウェイタワーズの賃貸オフィス・事務所に関するお問い合わせ
ウェイタワーズについて
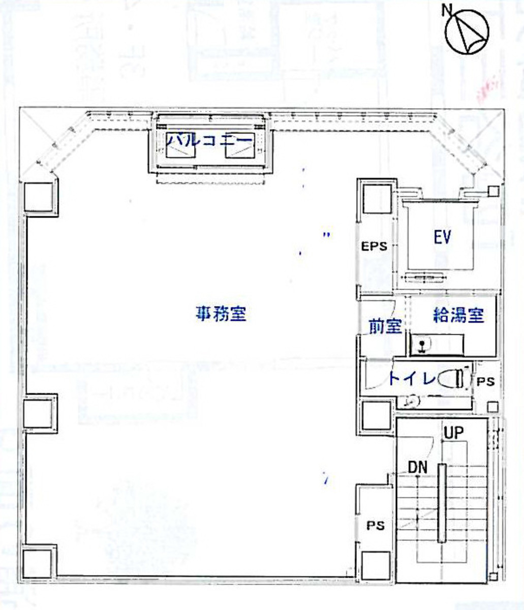
WAYTOWERS(ウェイタワーズ・港区赤坂)は、ビジネスの中心地として知られる東京の心臓部に位置する賃貸オフィスビルです。2009年に竣工し、そのスタイリッシュな外観は、前面ガラス張りにより高い視認性を持ち、周囲の景観と調和しつつも一際目立つ存在感を放っています。オフィスをお探しのWAYTOWERSが提供する環境は、あなたのビジネスの成長と発展に最適な場所となるでしょう。 立地においては、東京メトロ銀座線・南北線の溜池山王駅から僅か徒歩約1分というアクセスの利便性を誇ります。さらに、複数の地下鉄路線が利用可能で、都内主要ビジネスエリアへのスムーズな移動が可能です。このように、WAYTOWERSは交通の要所に位置しており、ビジネスチャンスを広げるための理想的なステージを提供します。 オフィスフロアは、約30坪という使い勝手の良い規模で設計されており、長方形の執務スペースは柱のない開放的な空間を提供します。これにより、レイアウトの自由度が高まり、効率的なオフィス環境を実現することができます。ダイレクトインタイプのエントランスは、プライバシーを重視するテナントにとっても魅力的です。また、各階には個別空調が完備されており、快適なオフィス環境を一年中保つことができます。 設備面では、高さ50mmのOAフロアを採用しており、OA機器などの配線を床下に行うことが可能です。これにより、オフィス内をスッキリと保ちながら、必要な設備を適切に配置することができます。セキュリティ面では、機械警備システムにより24時間体制で安全が確保されています。 周辺環境もまた、WAYTOWERSの大きな魅力の一つです。ビルの周囲には、飲食店やコンビニ、カフェなどが充実しており、日々の業務に必要なものがすぐに手に入ります。また、赤坂駅や国会議事堂前駅も徒歩10分圏内にあるため、ビジネスの機会をさらに広げることができます。 WAYTOWERSは、その立地、設備、周辺環境ともに、ビジネスを成功に導くための全てを備えた賃貸オフィスビルです。あなたのビジネスを次のレベルへと押し上げるための理想的な場所を、ぜひWAYTOWERSで見つけてください。
ウェイタワーズのこだわり
自分で探すより問い合わせる方が早いことがあります
WEB非公開物件があるから
オーナー様のご希望により「WEBでは非公開」にしている物件があります。 それらはWEBでいくら検索しても見つかりません。 先ずは条件などお知らせ頂けましたら非公開物件含め ピッタリのオフィスをご提案させて頂きます。 無理なお勧めはしておりませんので、お気軽にお問い合わせください。
対面でのご相談も受け付けております
ご来店も歓迎です
オフィス移転は社内・社外ともに非公開に行われることが殆どです。そのためアットオフィスでは、基本的に訪問によるコンサルティングを行っておりますが、ご来店の相談も歓迎です。お一人おひとりに親身にご対応させて頂きたい為、要予約とさせて頂いております。ご来店の際は先ずは下記よりご予約下さい。
募集終了のテナント区画
| 階数 | 坪数 | 賃料 + 共益費 | 敷金/礼金敷金 礼金 | 検討 |
|---|---|---|---|---|
| B1-1階 | 53.3坪 (176.19m²) | 募集終了 | - | - |
| 3階 | 28.68坪 (94.8m²) | 募集終了 | - | - |
| 4階 | 27.5坪 (90.91m²) | 募集終了 | - | - |
| 5階 | 28.68坪 (94.8m²) | 募集終了 | - | - |
| 8階 | 21坪 (69.42m²) | 募集終了 | - | - |
読込中...
赤坂/六本木/麻布エリアでウェイタワーズに似た条件の物件
読込中...
| 取扱様態 | 仲介 |
|---|---|
| 取扱会社 | 株式会社 アットオフィス |