※このサイトに記載がある賃貸条件は、敷金・保証金などの預かり金を除き、別途消費税がかかります。
物件情報
設備詳細
| 空調 | - |
|---|---|
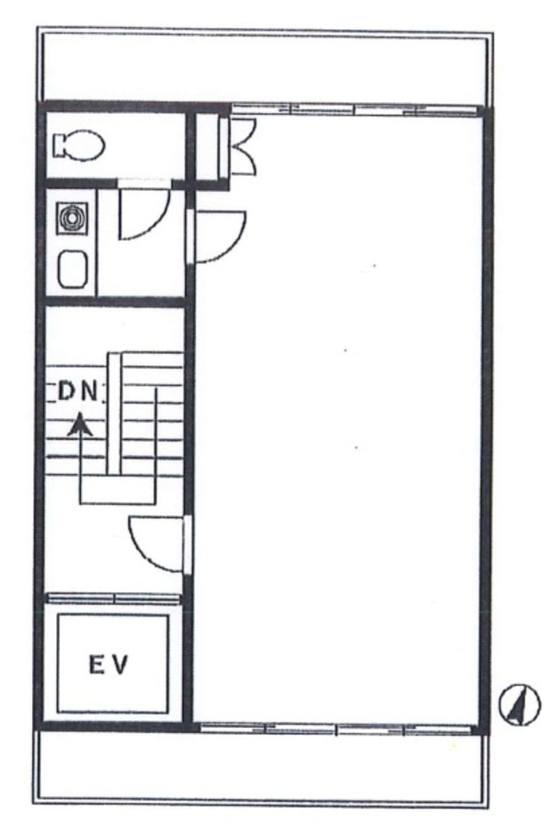
| トイレ | 男女共用トイレ・室内 |
| 床仕様 | - |
| エレベータ | 1 基 |
| 駐車場設備 | 空有 |
| その他 | 24時間利用可 / 新耐震基準 / 保証金・敷金+礼金が3か月以下 / 店舗可(飲食不可) |
BM原宿ビルの賃貸オフィス・事務所に関するお問い合わせ
BM原宿ビルについて
都心の活気あふれる渋谷区千駄ヶ谷3丁目に位置するBM原宿ビルは、1989年に竣工した、新耐震基準に準拠した賃貸オフィスビルです。このビルは、その立地と設備の充実さで、ビジネスの拠点としての魅力を十分に備えています。今日、我々がご紹介するこの物件は、ビジネスの成功に欠かせないさまざまな要素を兼ね備えた、理想的なオフィススペースを提供しています。 まず、BM原宿ビルの最大の特徴は、その耐震性にあります。1989年の新耐震基準に基づいて建設されたこのビルは、万一の災害時にも安全性が高く、企業の重要な資産を守る確かな基盤を提供します。また、ビル内に月極駐車場を完備しており、ビジネスでの利便性をさらに高めています。 立地においても、BM原宿ビルは類稀なる魅力を持っています。東京メトロ副都心線「北参道」駅から徒歩5分、JR山手線「原宿」駅から徒歩6分というアクセスの良さは、顧客や従業員の移動に大きな利便をもたらします。さらに、明治通りから一本入った場所に位置しているため、落ち着いた環境で働きたいと考える企業には最適な環境です。周辺にはアパレルショップや飲食店、コンビニなどが立ち並び、日常の業務に必要なものがすぐに手に入ります。 ビルの内部設備も見逃せません。オフィスは柱が少なく、レイアウトの自由度の高い空間となっています。これにより、効率的かつ快適なオフィス環境を実現することができます。個別空調システムにより、各テナントのニーズに合わせた温度管理が可能です。また、ビルは4階建てで、1基のエレベーターが設置されているため、スムーズな移動が期待できます。 BM原宿ビルは、その耐震性、立地、設備といった魅力を兼ね備え、ビジネスの成功に貢献する理想的なオフィススペースを提供しています。都心という利便性の高い環境で、安全かつ快適に働きたい企業様には、このBM原宿ビルを自信を持ってお勧めします。是非、お近くにお越しの際は、この印象的な物件をご覧になってみてください。
BM原宿ビルのこだわり
自分で探すより問い合わせる方が早いことがあります
WEB非公開物件があるから
オーナー様のご希望により「WEBでは非公開」にしている物件があります。 それらはWEBでいくら検索しても見つかりません。 先ずは条件などお知らせ頂けましたら非公開物件含め ピッタリのオフィスをご提案させて頂きます。 無理なお勧めはしておりませんので、お気軽にお問い合わせください。
対面でのご相談も受け付けております
ご来店も歓迎です
オフィス移転は社内・社外ともに非公開に行われることが殆どです。そのためアットオフィスでは、基本的に訪問によるコンサルティングを行っておりますが、ご来店の相談も歓迎です。お一人おひとりに親身にご対応させて頂きたい為、要予約とさせて頂いております。ご来店の際は先ずは下記よりご予約下さい。
募集終了のテナント区画
| 階数 | 坪数 | 賃料 + 共益費 | 敷金/礼金敷金 礼金 | 検討 |
|---|---|---|---|---|
| B1階 | 10.54坪 (34.85m²) | 募集終了 | - | - |
| 2階 | 21.16坪 (69.97m²) | 募集終了 | - | - |
読込中...
表参道/外苑前エリアでBM原宿ビルに似た条件の物件
読込中...
| 取扱様態 | 仲介 |
|---|---|
| 取扱会社 | 株式会社 アットオフィス |