湯島KCビル3階の賃貸情報
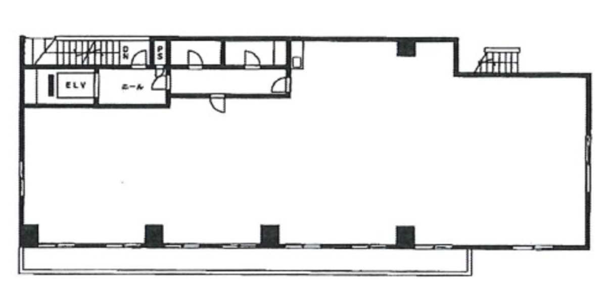
74.8 坪 (247.27m²)
※このサイトに記載がある賃貸条件は、敷金・保証金などの預かり金を除き、別途消費税がかかります。
湯島KCビルの建物概要
設備詳細
| 空調 | 個別空調 |
|---|---|
| トイレ | - |
| 床仕様 | OA対応床(フリーアクセス) |
| エレベータ | 1 基 |
| 駐車場設備 | - |
| その他 | 新耐震基準 / 東京賃料が坪11000円以下 |
湯島KCビル3階の賃貸オフィス・事務所に関するお問い合わせ
湯島KCビルについて
湯島KCビル:ビジネスの中心地での高機能オフィス空間 ビジネスの中心として求められるのは、アクセスの良さ、機能性、そして快適な環境です。文京区湯島に位置する湯島KCビルは、これらすべてを兼ね備えた賃貸オフィスビルとして、多くの企業に選ばれています。 【立地の利便性】 湯島KCビルは、湯島駅から徒歩約8分、本郷三丁目駅からは徒歩9分という、3つ以上の駅が利用可能な好立地に位置しています。この立地は、従業員やビジネスパートナーのアクセスを容易にし、企業活動をスムーズに行える環境を提供します。さらに、春日通りに近接しながらも、ビル自体は静かな路地に面しており、落ち着いた環境での業務が可能です。 【ビルの設備と機能性】 1989年に竣工された湯島KCビルは、全面リニューアルを経て現代のビジネスニーズに応える設備を整えています。ビル内には男女別のトイレ設備が完備されており、プライバシーと利便性を確保。また、月極駐車場の設置や機械警備の導入により、セキュリティと利便性を高めています。ビルは6階建てで、各フロアはゆとりのある空間設計がなされており、快適なオフィス環境を提供します。 【外観と内装】 外観はベージュタイル張りでシンプルながらも洗練されたデザイン。ビルのエントランスやエレベーターは、利用者の印象に残るよう配慮されており、訪れるクライアントを迎えるに相応しい品格を備えています。内装についても、最新のリニューアルによりモダンで清潔感のある空間が保たれています。 【周辺環境】 ビルの周辺には、コンビニや飲食店が充実しており、日常の業務に必要なものがすぐに手に入ります。また、ビルのすぐ近くに郵便局もあり、ビジネス上の郵送物の取り扱いも容易です。 湯島KCビルは、これらの特長を活かして、様々な業種の企業に対応可能なフレキシブルなオフィススペースを提供しています。立地の良さ、機能性、そして快適な環境は、ビジネスを推進する上で大きなアドバンテージとなるでしょう。
自分で探すより問い合わせる方が早いことがあります
WEB非公開物件があるから
オーナー様のご希望により「WEBでは非公開」にしている物件があります。 それらはWEBでいくら検索しても見つかりません。 先ずは条件などお知らせ頂けましたら非公開物件含め ピッタリのオフィスをご提案させて頂きます。 無理なお勧めはしておりませんので、お気軽にお問い合わせください。
対面でのご相談も受け付けております
ご来店も歓迎です
オフィス移転は社内・社外ともに非公開に行われることが殆どです。そのためアットオフィスでは、基本的に訪問によるコンサルティングを行っておりますが、ご来店の相談も歓迎です。お一人おひとりに親身にご対応させて頂きたい為、要予約とさせて頂いております。ご来店の際は先ずは下記よりご予約下さい。
湯島/本郷/後楽園エリアで湯島KCビルに似た条件の物件
読込中...
湯島KCビルと同じ最寄駅の物件
読込中...
| 取扱様態 | 仲介 |
|---|---|
| 取扱会社 | 株式会社 アットオフィス |