NOVEL WORK TSUKIJI5階の賃貸情報
22.48 坪 (74.31m²)
※このサイトに記載がある賃貸条件は、敷金・保証金などの預かり金を除き、別途消費税がかかります。
NOVEL WORK TSUKIJIの建物概要
設備詳細
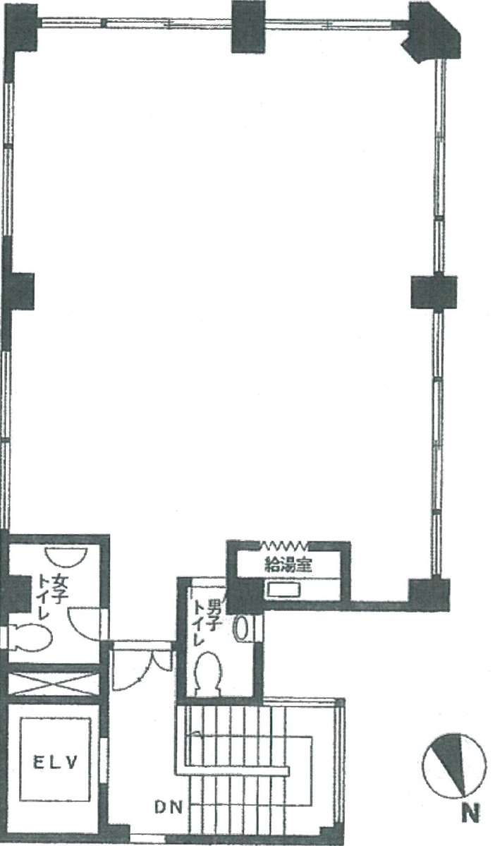
| 空調 | 個別空調 |
|---|---|
| トイレ | - |
| 床仕様 | - |
| エレベータ | 1 基 |
| 駐車場設備 | - |
| その他 | 24時間利用可 / 光ファイバー / 新耐震基準 / 機械警備 / 原状回復義務なし |
NOVEL WORK TSUKIJI5階の賃貸オフィス・事務所に関するお問い合わせ
NOVEL WORK TSUKIJIについて
NOVEL WORK TSUKIJIは、ビジネスの中心地、東京都中央区築地に位置する、戦略的にも魅力的な賃貸オフィスビルです。この地の歴史と現代性が融合する地域において、ビルは1985年に竣工し、以来、多くの企業にとって信頼性の高いオフィススペースを提供し続けています。ここでは、築地2丁目ビルの特徴、立地、設備について、専門的かつ客観的な視点から解説していきます。 ### 特徴 NOVEL WORK TSUKIJIは、5階建ての耐震性に優れたオフィスビルで、基準階は約30坪となっております。リニューアルを経て、現代のオフィスニーズに合わせた最新の設備が整っています。柱が少なく、レイアウトの自由度が高いため、テナントによるオフィス空間のカスタマイズがしやすいのが特徴です。また、エレベーターは1機あり、エントランスは階段を登った先にあります。これにより、独自のプライバシーが保たれるとともに、セキュリティ面でも安心です。 ### 立地 築地駅から徒歩2分という駅近物件であり、新富町駅、東銀座駅を含めた3駅以上のアクセスが可能です。この好立地は、ビジネスにおける利便性を高めるだけでなく、従業員の通勤の利便性も向上させます。さらに、周辺には飲食店が点在し、ランチタイムやアフター5のビジネスシーンにおいても豊かな選択肢を提供します。 ### 設備 個別空調システムを導入しているため、テナント各社が快適な室温を自由にコントロールできます。また、男女別のトイレが貸室内に設置されている点も、テナントにとって大きなメリットです。機械警備によるセキュリティ体制も整っており、テナント企業は安心してビジネスを行うことができます。 ### ビジネスにおける利点 築地2丁目ビルは、耐震性に優れ、各種設備が充実していることから、長期的なオフィス使用に最適です。また、3駅以上が利用可能な好立地は、ビジネスの機会を広げると同時に、従業員の満足度を高めることにも繋がります。さらに、リニューアルされたモダンなオフィス環境は、訪問客に対しても良好な印象を与えるでしょう。 NOVEL WORK TSUKIJIは、これらの特徴を活かし、企業の成長を支える信頼できるパートナーとなり得るオフィスビルです。その立地、設備、そしてビル自体が持つ独自の魅力は、ビジネスを一層発展させる強力なサポートとなるでしょう。
NOVEL WORK TSUKIJIのこだわり
自分で探すより問い合わせる方が早いことがあります
WEB非公開物件があるから
オーナー様のご希望により「WEBでは非公開」にしている物件があります。 それらはWEBでいくら検索しても見つかりません。 先ずは条件などお知らせ頂けましたら非公開物件含め ピッタリのオフィスをご提案させて頂きます。 無理なお勧めはしておりませんので、お気軽にお問い合わせください。
対面でのご相談も受け付けております
ご来店も歓迎です
オフィス移転は社内・社外ともに非公開に行われることが殆どです。そのためアットオフィスでは、基本的に訪問によるコンサルティングを行っておりますが、ご来店の相談も歓迎です。お一人おひとりに親身にご対応させて頂きたい為、要予約とさせて頂いております。ご来店の際は先ずは下記よりご予約下さい。
新富/築地エリアでNOVEL WORK TSUKIJIに似た条件の物件
読込中...
NOVEL WORK TSUKIJIと同じ最寄駅の物件
読込中...
| 取扱様態 | 仲介 |
|---|---|
| 取扱会社 | 株式会社 アットオフィス |