AKビル2階の賃貸情報
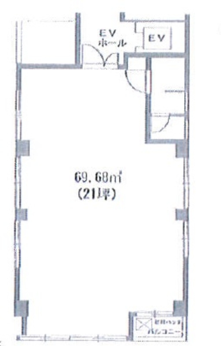
21 坪 (69.68m²)
※このサイトに記載がある賃貸条件は、敷金・保証金などの預かり金を除き、別途消費税がかかります。
AKビルの建物概要
設備詳細
| 空調 | - |
|---|---|
| トイレ | - |
| 床仕様 | - |
| エレベータ | 1 基 |
| 駐車場設備 | - |
| その他 | 新耐震基準 / 店舗可(飲食不可) |
AKビル2階の賃貸オフィス・事務所に関するお問い合わせ
AKビルについて
AKビルは、相模原市緑区橋本3丁目に所在し、京王電鉄相模原線、横浜線、相模線の各「橋本駅」から徒歩3分の距離に位置しています。複数路線が利用できるため、周辺エリアや都心方面へのアクセスがしやすい環境です。近隣には商業施設やオフィスビル、住宅などが点在しており、駅近ならではの人の流れが期待できる立地です。 建物は地上7階建てで、エレベーターを設置していますので、フロア間の移動も快適です。1フロアあたりの面積に関する情報はございませんが、階層構成を活かして事務所、店舗、その他事業用スペースとしての活用が可能です。周辺環境はビジネスやサービス拠点として利用するうえで落ち着いた雰囲気があり、建物の立地条件からも来訪者や従業員の動線を考慮した運用がしやすいといえます。 現地でのご見学や最新の空室情報、詳細なご相談についてはお問い合わせください。
AKビルのこだわり
自分で探すより問い合わせる方が早いことがあります
WEB非公開物件があるから
オーナー様のご希望により「WEBでは非公開」にしている物件があります。 それらはWEBでいくら検索しても見つかりません。 先ずは条件などお知らせ頂けましたら非公開物件含め ピッタリのオフィスをご提案させて頂きます。 無理なお勧めはしておりませんので、お気軽にお問い合わせください。
対面でのご相談も受け付けております
ご来店も歓迎です
オフィス移転は社内・社外ともに非公開に行われることが殆どです。そのためアットオフィスでは、基本的に訪問によるコンサルティングを行っておりますが、ご来店の相談も歓迎です。お一人おひとりに親身にご対応させて頂きたい為、要予約とさせて頂いております。ご来店の際は先ずは下記よりご予約下さい。
相模原市エリアでAKビルに似た条件の物件
読込中...
AKビルと同じ最寄駅の物件
読込中...
| 取扱様態 | 仲介 |
|---|---|
| 取扱会社 | 株式会社 アットオフィス |