大新NSビル3階の賃貸情報
面積
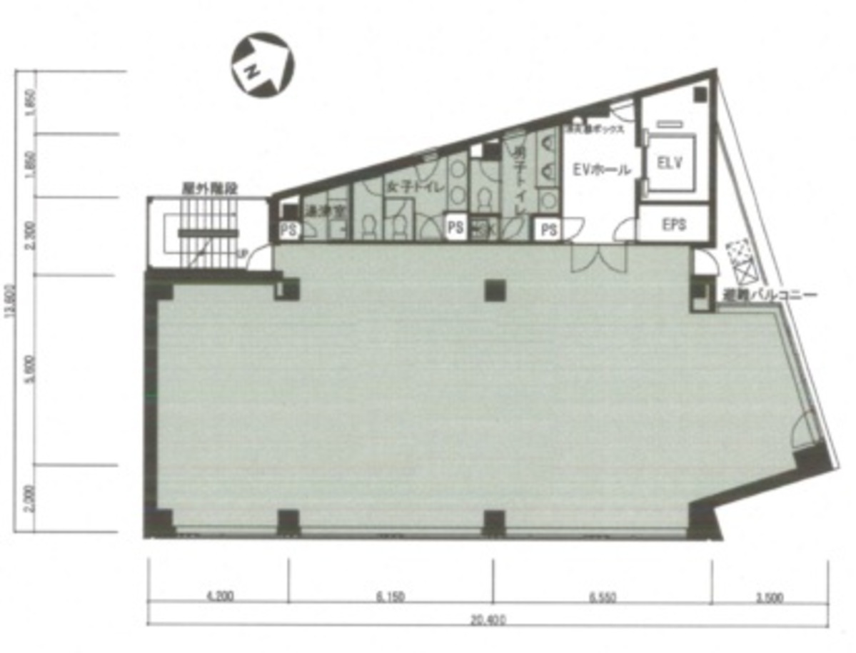
52.63 坪 (174.01m²)
賃料
共益費-
敷金 / 礼金 / 保証金-
償却-
更新料-
※このサイトに記載がある賃貸条件は、敷金・保証金などの預かり金を除き、別途消費税がかかります。
大新NSビルの建物概要
設備詳細
| 空調 | 個別空調 |
|---|---|
| トイレ | - |
| 床仕様 | OA対応床(フリーアクセス) |
| エレベータ | 1 基 |
| 駐車場設備 | - |
| その他 | 機械警備 / 24時間利用可 / クリニック |
大新NSビル3階の賃貸オフィス・事務所に関するお問い合わせ
大新NSビルについて
このビルのおすすめポイント ・角地で視認性抜群。分かりやすい立地で来客の多い業種に適しています。 ・中野坂上と西新宿駅の間くらいに位置しており、どちらの駅も使えます。新宿駅までも徒歩で行ける距離ですので営業社員が多い会社は良いと思います。 ・1階がコンビニで周辺にも飲食店が多数あります。便利な立地です。 ・エレベーターホールが契約面積に含まれていない為、通常の1フロア1テナントのビルよりも専有面積が広いと思います。
大新NSビルのこだわり
自分で探すより問い合わせる方が早いことがあります
WEB非公開物件があるから
オーナー様のご希望により「WEBでは非公開」にしている物件があります。 それらはWEBでいくら検索しても見つかりません。 先ずは条件などお知らせ頂けましたら非公開物件含め ピッタリのオフィスをご提案させて頂きます。 無理なお勧めはしておりませんので、お気軽にお問い合わせください。
WEBから条件問い合わせをする(無料)
対面でのご相談も受け付けております
ご来店も歓迎です
オフィス移転は社内・社外ともに非公開に行われることが殆どです。そのためアットオフィスでは、基本的に訪問によるコンサルティングを行っておりますが、ご来店の相談も歓迎です。お一人おひとりに親身にご対応させて頂きたい為、要予約とさせて頂いております。ご来店の際は先ずは下記よりご予約下さい。
来店予約をする
中野区エリアで大新NSビルに似た条件の物件
読込中...
大新NSビルと同じ最寄駅の物件
読込中...
| 取扱様態 | 仲介 |
|---|---|
| 取扱会社 | 株式会社 アットオフィス |