杉喜ビル5階の賃貸情報
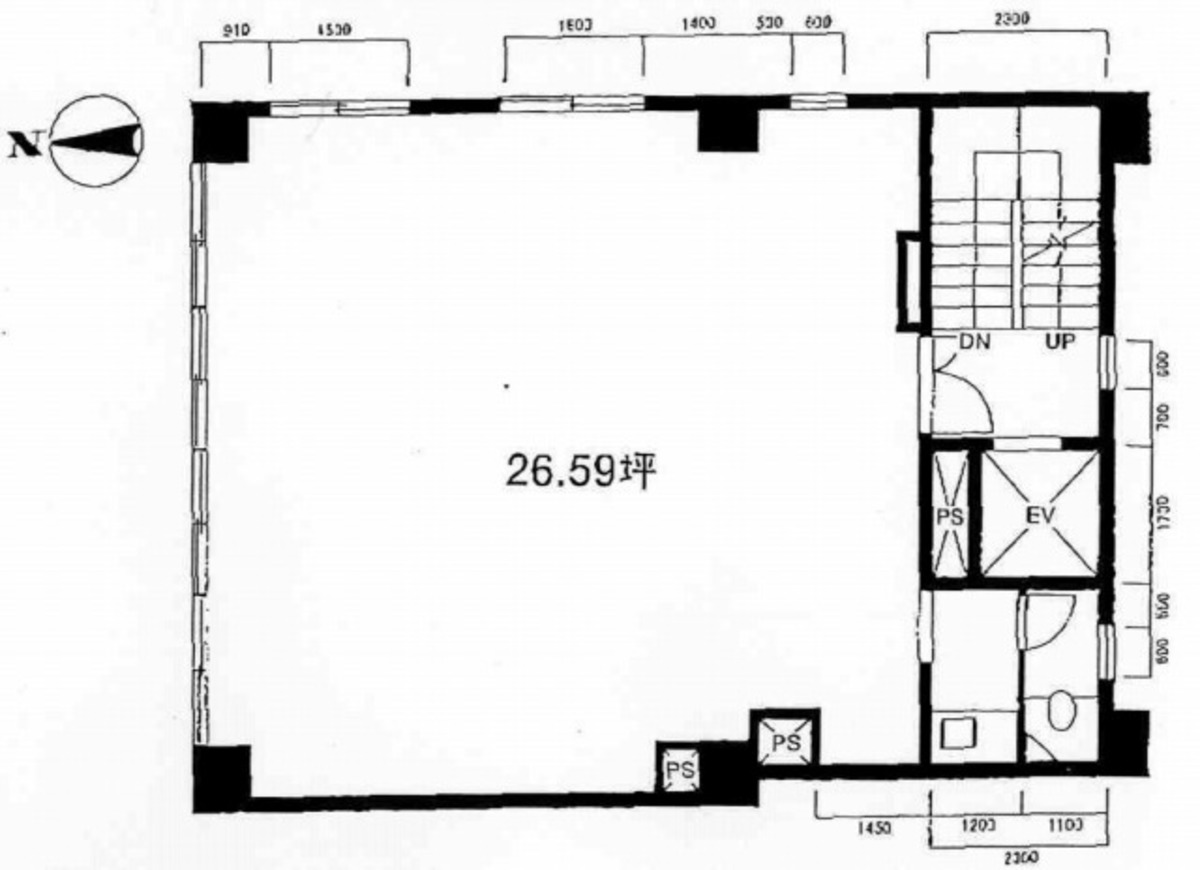
26.59 坪 (87.9m²)
※このサイトに記載がある賃貸条件は、敷金・保証金などの預かり金を除き、別途消費税がかかります。
杉喜ビルの建物概要
設備詳細
| 空調 | 個別空調 |
|---|---|
| トイレ | - |
| 床仕様 | - |
| エレベータ | 1 基 |
| 駐車場設備 | - |
| その他 | - |
杉喜ビル5階の賃貸オフィス・事務所に関するお問い合わせ
杉喜ビルについて
杉喜ビルは、千代田区九段南4丁目に位置する、靖国通りに面した、角地に建つオフィスビルです。この立地は、ビジネスの中心地である東京都心において、アクセスの良好さとビジネスチャンスの両方を提供します。周辺には、政府機関、企業の本社、そして多様な商業施設が立ち並び、日々の業務に必要なサポート環境が整っています。 1973年の新耐震基準施行前に竣工した杉喜ビルですが、その歴史を感じさせない洗練されたデザイン、特にガラス張りの外観は、採光性に優れ、オフィス内は明るく開放感があります。このような環境は、働くスタッフのモチベーション維持に役立ち、クリエイティブな思考を促進することでしょう。 物件は、1基のエレベーターを備えており、スムーズな縦の移動を支援します。また、ビル内に駐車場を完備しているため、来訪者や社員が車でのアクセスを重視する場合にも適しています。駐車場の空き状況については、お気軽にお問い合わせください。 オフィスを構えるにあたり、立地、設備、そして働く環境は、企業のイメージ、効率性、そして従業員の満足度に直接的な影響を与えます。杉喜ビルは、これら全ての要素を兼ね備えており、あなたのビジネスにとって最適な選択肢の一つになることでしょう。この素晴らしいオフィスビルで、あなたのビジネスを次のレベルへと導いてみませんか?ビジネスの成功と発展を支える杉喜ビルで、新たなスタートを切りましょう。
杉喜ビルのこだわり
自分で探すより問い合わせる方が早いことがあります
WEB非公開物件があるから
オーナー様のご希望により「WEBでは非公開」にしている物件があります。 それらはWEBでいくら検索しても見つかりません。 先ずは条件などお知らせ頂けましたら非公開物件含め ピッタリのオフィスをご提案させて頂きます。 無理なお勧めはしておりませんので、お気軽にお問い合わせください。
対面でのご相談も受け付けております
ご来店も歓迎です
オフィス移転は社内・社外ともに非公開に行われることが殆どです。そのためアットオフィスでは、基本的に訪問によるコンサルティングを行っておりますが、ご来店の相談も歓迎です。お一人おひとりに親身にご対応させて頂きたい為、要予約とさせて頂いております。ご来店の際は先ずは下記よりご予約下さい。
番町/麹町/平河町エリアで杉喜ビルに似た条件の物件
読込中...
杉喜ビルと同じ最寄駅の物件
読込中...
| 取扱様態 | 仲介 |
|---|---|
| 取扱会社 | 株式会社 アットオフィス |