双葉ビル2階の賃貸情報
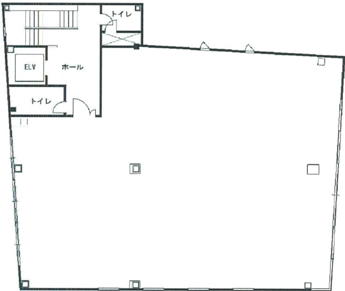
63.28 坪 (209.2m²)
※このサイトに記載がある賃貸条件は、敷金・保証金などの預かり金を除き、別途消費税がかかります。
双葉ビルの建物概要
設備詳細
| 空調 | 個別空調 |
|---|---|
| トイレ | 男女別トイレ / 男女別トイレ室外 |
| 床仕様 | OA対応床(フリーアクセス) |
| エレベータ | 1 基 / エレベーター有 |
| 駐車場設備 | - |
| その他 | 光ファイバー / 24時間利用可 / 省エネ配慮 / 新耐震基準 / 大通り面する |
双葉ビル2階の賃貸オフィス・事務所に関するお問い合わせ
双葉ビルについて
「双葉」は、新宿区市谷田町3丁目に位置し、東京地下鉄有楽町線「飯田橋駅」から徒歩4分、総武・中央緩行線「飯田橋駅」および南北線「市ヶ谷駅」からも徒歩5分でアクセスできます。複数路線が利用できる立地のため、各方面からの移動がしやすい環境にあります。 建物は大通りに面しており、視認性に配慮された立地となっています。地上4階建てで、エレベーターを1基備えています。24時間利用が可能なため、業務時間に柔軟な対応が必要な法人にも対応できます。個別空調や男女別トイレ、省エネへの配慮など、執務空間を快適に保つための基本的な設備が整っています。光ファイバーによる通信環境も備わっており、現代のビジネスに求められるインフラが整備されています。 また、新耐震基準に適合した構造で、安心して利用できる建物となっています。用途や規模に応じた利用を検討される方にとって、オフィスワークをはじめとした各種事業活動の拠点としてご検討いただける物件です。詳細はお問い合わせください。
自分で探すより問い合わせる方が早いことがあります
WEB非公開物件があるから
オーナー様のご希望により「WEBでは非公開」にしている物件があります。 それらはWEBでいくら検索しても見つかりません。 先ずは条件などお知らせ頂けましたら非公開物件含め ピッタリのオフィスをご提案させて頂きます。 無理なお勧めはしておりませんので、お気軽にお問い合わせください。
対面でのご相談も受け付けております
ご来店も歓迎です
オフィス移転は社内・社外ともに非公開に行われることが殆どです。そのためアットオフィスでは、基本的に訪問によるコンサルティングを行っておりますが、ご来店の相談も歓迎です。お一人おひとりに親身にご対応させて頂きたい為、要予約とさせて頂いております。ご来店の際は先ずは下記よりご予約下さい。
近くのエリアで探してみる
市ヶ谷/神楽坂/飯田橋エリアで双葉ビルに似た条件の物件
読込中...
双葉ビルと同じ最寄駅の物件
読込中...
| 取扱様態 | 仲介 |
|---|---|
| 取扱会社 | 株式会社 アットオフィス |