大森野村證券ビル4階の賃貸情報
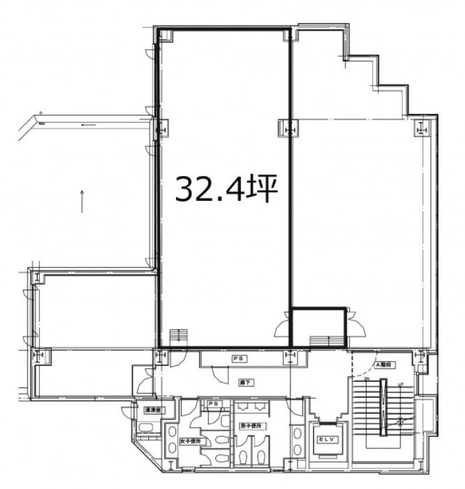
32.49 坪 (107.41m²)
※このサイトに記載がある賃貸条件は、敷金・保証金などの預かり金を除き、別途消費税がかかります。
大森野村證券ビルの建物概要
設備詳細
| 空調 | 個別空調 |
|---|---|
| トイレ | - |
| 床仕様 | OA対応床(フリーアクセス) |
| エレベータ | - |
| 駐車場設備 | - |
| その他 | 新耐震基準 |
大森野村證券ビル4階の賃貸オフィス・事務所に関するお問い合わせ
大森野村證券ビルについて
大森野村證券ビル(大田区山王)は、東京都大田区の中心に位置する、ビジネスの拠点として非常に優れた賃貸オフィスビルです。1990年に竣工されたこの物件は、地上5階・地下1階から成る鉄骨鉄筋コンクリート(SRC)構造で、新耐震基準をクリアしており、安全性と信頼性を兼ね備えています。基準階の面積は62.17坪で、ワンフロア60坪ほどの規模を有しており、広々とした空間でのオフィスレイアウトが可能です。上層階からは素晴らしい見晴らしを楽しむことができ、自然光をしっかりと取り込めるため、快適なオフィス環境を提供します。 アクセス面でも非常に優れており、最寄りの大森駅から徒歩わずか2分という利便性の高さが魅力です。大森駅はJR京浜東北線が通っており、品川や東京といった主要ビジネスエリアへのアクセスも非常にスムーズです。池上通り沿いに位置しているため、交通の便が良く、ビジネスの拠点としての利便性は申し分ありません。 ビル周辺の環境も充実しており、徒歩圏内にはカフェや銀行、コンビニエンスストアが点在し、日常のビジネスニーズを満たすことができます。また、多数の飲食店が立ち並んでいるため、ランチタイムや仕事帰りのリフレッシュにも困ることはないでしょう。大田区山王エリアは、ビジネスと生活が調和した便利なエリアであり、ここにオフィスを構えることで、従業員の働きやすさを向上させることができます。 設備面でも充実しており、24時間利用可能なエントランスや個別空調、OAフロアが完備されています。エレベーターは1基設置されており、駐車場も利用可能です。セキュリティは機械警備が採用されているため、安心して業務に集中することができます。男女別のトイレが設置されている点も、利用者にとって嬉しいポイントです。 大森野村證券ビルは、ビジネスの拠点として理想的な条件を備えており、新たにオフィスを開設したい方や、移転を考えている企業にとって、非常に魅力的な選択肢となるでしょう。ぜひこの機会に、大森野村證券ビルでの新しいビジネス展開を検討してみてはいかがでしょうか。
大森野村證券ビルのこだわり
自分で探すより問い合わせる方が早いことがあります
WEB非公開物件があるから
オーナー様のご希望により「WEBでは非公開」にしている物件があります。 それらはWEBでいくら検索しても見つかりません。 先ずは条件などお知らせ頂けましたら非公開物件含め ピッタリのオフィスをご提案させて頂きます。 無理なお勧めはしておりませんので、お気軽にお問い合わせください。
対面でのご相談も受け付けております
ご来店も歓迎です
オフィス移転は社内・社外ともに非公開に行われることが殆どです。そのためアットオフィスでは、基本的に訪問によるコンサルティングを行っておりますが、ご来店の相談も歓迎です。お一人おひとりに親身にご対応させて頂きたい為、要予約とさせて頂いております。ご来店の際は先ずは下記よりご予約下さい。
大田区エリアで大森野村證券ビルに似た条件の物件
読込中...
大森野村證券ビルと同じ最寄駅の物件
読込中...
| 取扱様態 | 仲介 |
|---|---|
| 取扱会社 | 株式会社 アットオフィス |