ビルボ東上野4階の賃貸情報
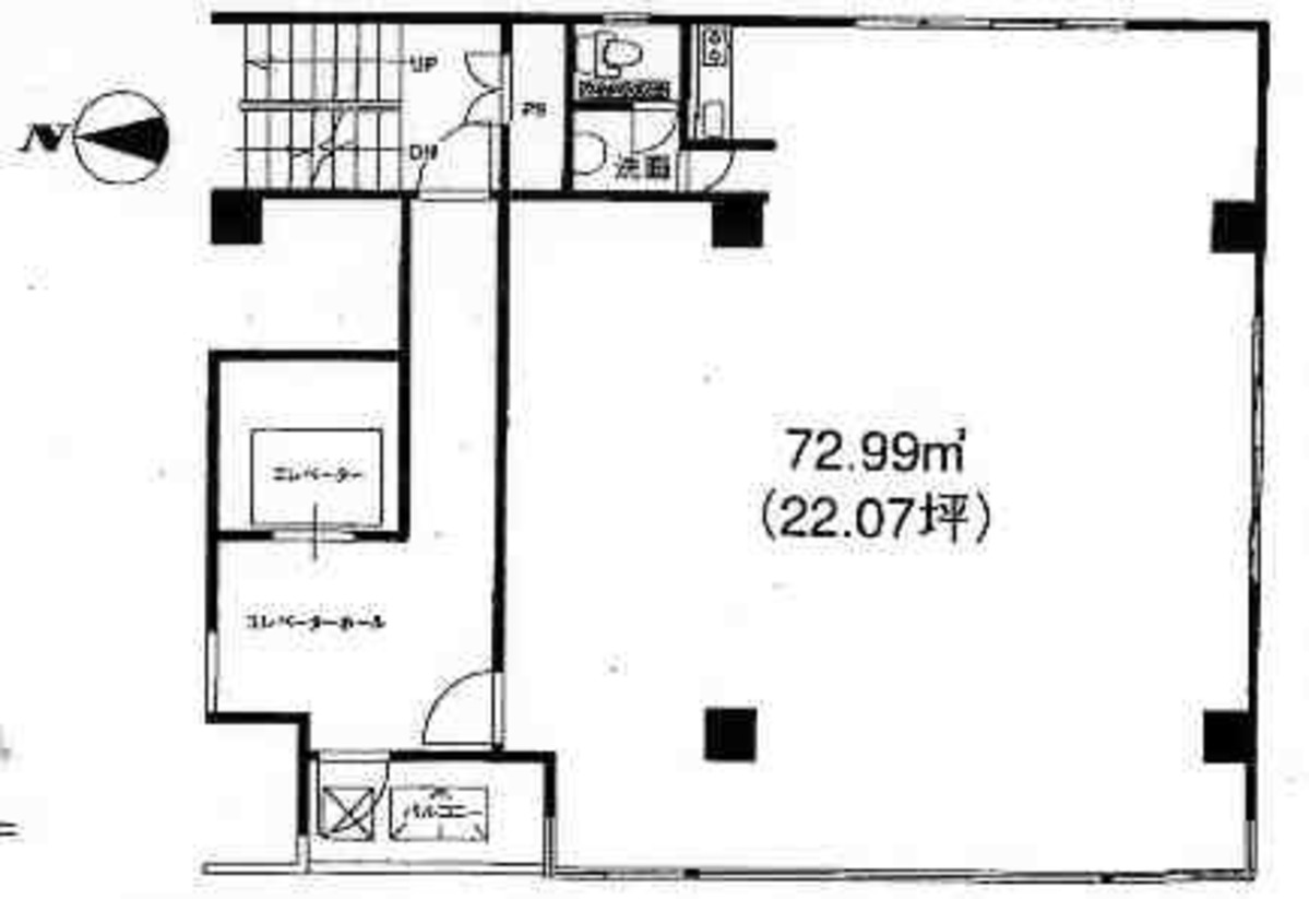
22.07 坪 (72.96m²)
※このサイトに記載がある賃貸条件は、敷金・保証金などの預かり金を除き、別途消費税がかかります。
ビルボ東上野の建物概要
設備詳細
| 空調 | 個別空調 |
|---|---|
| トイレ | - |
| 床仕様 | - |
| エレベータ | 1 基 |
| 駐車場設備 | - |
| その他 | 機械警備 / 光ファイバー / 新耐震基準 / クリニック |
ビルボ東上野について
東京のビジネスシーンで一際目立つ、ビルボ東上野ビル(旧:オージックビル台東区東上野)は、台東区東上野に位置する、ビジネスの可能性を広げる賃貸オフィスビルです。このビルは、1987年に竣工し、7階建ての堂々たる構造で、ビジネスの中心地に位置しています。ここでは、ビルの特徴、立地、設備という3つの重要なポイントに焦点を当て、ビルボ東上野ビルがビジネスの成功にどのように貢献できるかをご紹介します。 【ビルの特徴】 ビルボ東上野ビルは、グレータイル張りの外観が特徴的で、御影石を用いたオフィスエントランスが印象的です。シックで洗練されたデザインは、訪れるクライアントに良い印象を与えます。建物は7階建てで、各階には様々な企業が活動しています。また、セキュリティは機械警備で完備されており、24時間体制で安全が保障されています。 【立地】 ビルボ東上野ビルの立地は、ビジネスチャンスに溢れています。新御徒町駅から徒歩4分というアクセスの利便性に加え、稲荷町駅、上野駅へも容易に足を延ばせる位置にあります。この好立地により、東京都内はもちろん、地方や海外からのアクセスも抜群です。近隣には飲食店やコンビニエンスストアも充実しており、ビジネスだけでなく日常生活の利便性も高いです。 【設備】 ビル内には月極駐車場があり、エレベーターが1基設置されています。これにより、来客や従業員の移動がスムーズに行われます。また、機械警備の完備により、ビルの安全性は常に確保されています。ビルの設備は、ビジネスを支える上で欠かせない要素をしっかりと満たしています。 ビルボ東上野ビルは、洗練されたデザイン、抜群の立地、充実した設備を兼ね備えており、ビジネスの成功に不可欠な環境を提供しています。このビルでのオフィス運営は、企業のブランドイメージを高め、多様なビジネスチャンスを引き寄せるでしょう。ビジネスの新しい拠点として、ビルボ東上野ビルをぜひご検討ください。その独自の魅力が、あなたのビジネスを次の段階へと導くことになるでしょう。
自分で探すより問い合わせる方が早いことがあります
WEB非公開物件があるから
オーナー様のご希望により「WEBでは非公開」にしている物件があります。 それらはWEBでいくら検索しても見つかりません。 先ずは条件などお知らせ頂けましたら非公開物件含め ピッタリのオフィスをご提案させて頂きます。 無理なお勧めはしておりませんので、お気軽にお問い合わせください。
対面でのご相談も受け付けております
ご来店も歓迎です
オフィス移転は社内・社外ともに非公開に行われることが殆どです。そのためアットオフィスでは、基本的に訪問によるコンサルティングを行っておりますが、ご来店の相談も歓迎です。お一人おひとりに親身にご対応させて頂きたい為、要予約とさせて頂いております。ご来店の際は先ずは下記よりご予約下さい。
上野/台東/東上野エリアでビルボ東上野に似た条件の物件
読込中...
ビルボ東上野と同じ最寄駅の物件
読込中...
| 取扱様態 | 仲介 |
|---|---|
| 取扱会社 | 株式会社 アットオフィス |