※このサイトに記載がある賃貸条件は、敷金・保証金などの預かり金を除き、別途消費税がかかります。
物件情報
設備詳細
| 空調 | 個別空調 |
|---|---|
| トイレ | - |
| 床仕様 | OA対応床(フリーアクセス) |
| エレベータ | 1 基 |
| 駐車場設備 | - |
| その他 | 大型ビル / 新耐震基準 |
BIZCORE神保町の賃貸オフィス・事務所に関するお問い合わせ
BIZCORE神保町について
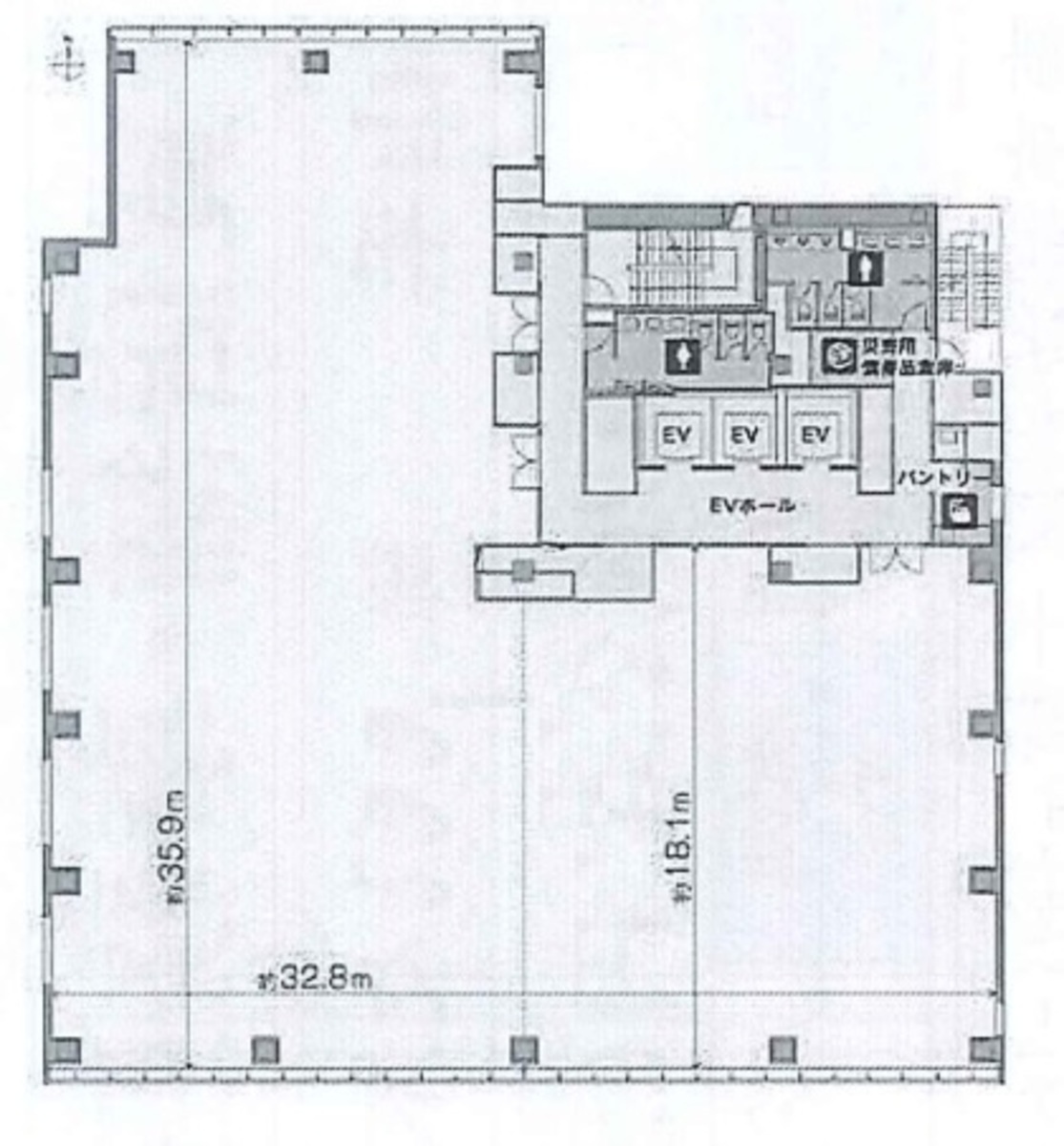
BIZCORE神保町ビルは、千代田区神田小川町3丁目に位置する、2017年11月に竣工した最新のオフィスビルです。地上9階建て、地下1階を含むこのビルは、東京メトロ千代田線「新御茶ノ水」駅から徒歩4分、東京メトロ半蔵門線・都営新宿線・三田線「神保町」駅からも同様に徒歩4分という、非常にアクセスの良い場所にあります。この立地は、ビジネスの拠点として最適であり、大手町駅や東京駅、新宿駅、渋谷駅へのアクセスが容易で、新幹線や羽田空港、成田空港へのアクセスも良好です。 BIZCORE神保町ビルは、269.25坪の基準階面積を有し、大型オフィスに適しています。ビルの外観は、アルミカーテンウォールで覆われたスタイリッシュなファサードが特徴で、企業のイメージ向上に寄与するデザインとなっています。内部では、天井高2,800mmの無柱空間とOAフロアを備え、床荷重は500kg/㎡、電気容量は基本60VA/㎡(最大75VA/㎡まで増設可能)と、ハイスペックなオフィス環境を提供します。 また、ビル内部の設備には、LED照明や自動調光制御、自動降下式ブラインド、遮熱性と断熱性に優れたLow-Eペアガラスを採用し、省エネ性能にも配慮しています。セキュリティ面では、非接触型ICカードによる多層のセキュリティラインを構築し、来客対応にはタッチパネルにより室内で映像と音声を確認できるシステムを導入しています。 災害対策として、建築基準法の1.25倍相当にあたる耐震強度を持ち、異系統2回線受電方式や最大72時間の非常用発電機を備えており、万が一の時にも事業継続が可能な環境を提供しています。さらに、屋上にはテナント専用の庭園があり、リラクゼーションスペースとして利用できます。 周辺環境としては、飲食店、コンビニ、各種銀行の支店やATM、郵便局が近くにあり、日々のビジネスニーズに応える充実した環境です。神保町の古書店街も近く、仕事の合間の息抜きにも最適です。 BIZCORE神保町ビルは、高いアクセシビリティ、ハイスペックなオフィス環境、充実した周辺施設といった、ビジネスに必要な全てを提供する優れたオフィスビルです。環境に配慮した設計と、企業イメージの向上に貢献するデザインは、企業様のビジネス拠点として理想的な選択肢と言えるでしょう。
自分で探すより問い合わせる方が早いことがあります
WEB非公開物件があるから
オーナー様のご希望により「WEBでは非公開」にしている物件があります。 それらはWEBでいくら検索しても見つかりません。 先ずは条件などお知らせ頂けましたら非公開物件含め ピッタリのオフィスをご提案させて頂きます。 無理なお勧めはしておりませんので、お気軽にお問い合わせください。
対面でのご相談も受け付けております
ご来店も歓迎です
オフィス移転は社内・社外ともに非公開に行われることが殆どです。そのためアットオフィスでは、基本的に訪問によるコンサルティングを行っておりますが、ご来店の相談も歓迎です。お一人おひとりに親身にご対応させて頂きたい為、要予約とさせて頂いております。ご来店の際は先ずは下記よりご予約下さい。
募集終了のテナント区画
| 階数 | 坪数 | 賃料 + 共益費 | 敷金/礼金敷金 礼金 | 検討 |
|---|---|---|---|---|
| 4階 | 269.25坪 (890.08m²) | 募集終了 | - | - |
| 4階 | 179.09坪 (592.03m²) | 募集終了 | - | - |
| 6階 | 269.25坪 (890.09m²) | 募集終了 | - | - |
| 7階 | 169.23坪 (559.43m²) | 募集終了 | - | - |
| 7階 | 100.02坪 (330.64m²) | 募集終了 | - | - |
読込中...
神田/秋葉原エリアでBIZCORE神保町に似た条件の物件
読込中...
| 取扱様態 | 仲介 |
|---|---|
| 取扱会社 | 株式会社 アットオフィス |