虎ノ門40MT別館2階の賃貸情報
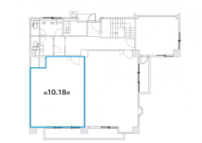
11.66 坪 (38.57m²)
186,560円 (坪:16,000 円)
※このサイトに記載がある賃貸条件は、敷金・保証金などの預かり金を除き、別途消費税がかかります。
虎ノ門40MT別館の建物概要
設備詳細
| 空調 | 個別空調 |
|---|---|
| トイレ | 男女別トイレ室外 |
| 床仕様 | - |
| エレベータ | - |
| 駐車場設備 | - |
| その他 | - |
部屋の雰囲気
虎ノ門40MT別館2階の賃貸オフィス・事務所に関するお問い合わせ
虎ノ門40MT別館について
東京の港区虎ノ門に位置する虎ノ門40MTビル別館は、ビジネスの中心地における貴重な賃貸事務所スペースを提供しています。このビルは1982年に竣工され、地上3階建ての構造を持っており、現代のビジネスニーズに合わせた機能的な設計が特徴です。虎ノ門40MTビル本館と直接繋がっているにも関わらず、別館は独自のエントランスを持ち、エレベーターがない点も含め、ユニークな存在感を放っています。 立地においては、東京メトロ日比谷線・神谷町駅からわずか徒歩2分というアクセスの良さが際立ちます。徒歩圏内には御成門駅や虎ノ門駅、六本木一丁目駅もあり、都心への移動が非常に便利です。周辺には飲食店やカフェ、コンビニエンスストアなどが充実しており、ビジネスの合間に利用するのにも困りません。また、近隣には銀行や郵便局などの生活インフラも整っており、オフィス周辺環境はとても良好です。 虎ノ門40MTビル別館の賃貸事務所としての魅力は、そのコンパクトながらも機能性に富んだ空間にあります。地上3階建てでエレベーターのない構造は、小規模から中規模の企業にとって、コミュニケーションが活発に行われる環境を提供します。また、虎ノ門エリアとしては比較的リーズナブルな賃料での提供が可能であり、コストパフォーマンスに優れている点も見逃せません。 港区虎ノ門エリアは、国際的なビジネスの中心地として、また日本の政治の中心地としても知られています。このエリアにオフィスを構えることは、ビジネスの信頼性とプレステージを高める効果が期待できます。虎ノ門40MTビル別館では、こうしたエリアのメリットを活かしつつ、日々の業務がスムーズに行える環境が整っています。 総合すると、虎ノ門40MTビル別館は、立地の良さ、周辺環境の快適さ、そしてコストパフォーマンスの高さを兼ね備えた、東京都心におけるオフィススペースとして高い魅力を持っています。小規模から中規模の企業にとって、ビジネスの拠点として最適な選択肢の一つと言えるでしょう。
虎ノ門40MT別館のこだわり
自分で探すより問い合わせる方が早いことがあります
WEB非公開物件があるから
オーナー様のご希望により「WEBでは非公開」にしている物件があります。 それらはWEBでいくら検索しても見つかりません。 先ずは条件などお知らせ頂けましたら非公開物件含め ピッタリのオフィスをご提案させて頂きます。 無理なお勧めはしておりませんので、お気軽にお問い合わせください。
対面でのご相談も受け付けております
ご来店も歓迎です
オフィス移転は社内・社外ともに非公開に行われることが殆どです。そのためアットオフィスでは、基本的に訪問によるコンサルティングを行っておりますが、ご来店の相談も歓迎です。お一人おひとりに親身にご対応させて頂きたい為、要予約とさせて頂いております。ご来店の際は先ずは下記よりご予約下さい。
近くのエリアで探してみる
新橋/虎ノ門/神谷町エリアで虎ノ門40MT別館に似た条件の物件
読込中...
虎ノ門40MT別館と同じ最寄駅の物件
読込中...
| 取扱様態 | 仲介 |
|---|---|
| 取扱会社 | 株式会社 アットオフィス |