PMO田町Ⅱ6階の賃貸情報
182.52 坪 (603.4m²)
※このサイトに記載がある賃貸条件は、敷金・保証金などの預かり金を除き、別途消費税がかかります。
PMO田町Ⅱの建物概要
設備詳細
| 空調 | 個別空調 |
|---|---|
| トイレ | - |
| 床仕様 | OA対応床(フリーアクセス) |
| エレベータ | - |
| 駐車場設備 | 空有 |
| その他 | 大型ビル / 新耐震基準 |
PMO田町Ⅱについて
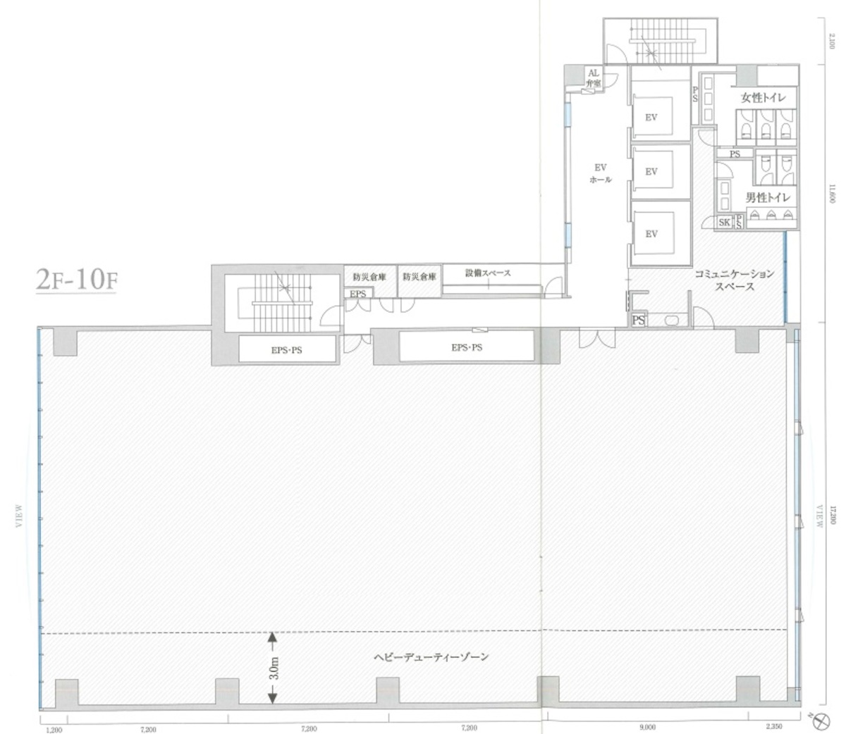
PMO田町2(旧名:PMO田町東・港区芝)は、2018年に竣工した現代的なデザインの賃貸オフィスビルです。このビルは、東京都港区芝に位置し、ビジネスの中心地にあることで非常にアクセスしやすい立地を誇ります。最寄り駅は三田駅であり、田町駅も徒歩圏内にあります。周辺には、コンビニ、郵便局、銀行などの利便施設が充実しており、ビジネスの日々の運営に必要なサービスがすぐ手の届く範囲内に揃っています。 この10階建てのビルは、ワンフロア約182坪の広々としたオフィススペースを提供しており、天井高2800mmと無柱空間の設計により、明るく開放的なオフィス環境を実現しています。また、システム天井を採用しているため、空間利用の自由度が高く、テナントのニーズに合わせたレイアウト変更が可能です。快適な作業環境を支える設備として、給湯設備、洗面台、男性用トイレ、トイレ個室、空調機器、各種スイッチなどが整っています。 ビルの特徴的な施設として、屋上には木と緑に囲まれたリフレッシュスペースがあり、昼食や気分転換に利用することができます。この空間は、ビル内で働く人々にとって、都心の喧騒を忘れさせる貴重なリラックスエリアとなっています。 外観は、全面ガラスのデザインとブラックのコントラストが特徴で、ハイグレードかつスタイリッシュな印象を与えます。これは、ビジネスをリードする企業のイメージを高めることに貢献します。さらに、新耐震基準1.5倍相当の耐震強度を持つ「I類構造体」を採用しており、安全面にも配慮されています。 エレベーターは3基設置されており、駐車場は機械と平面の併用式で、ビル利用者の利便性を高めています。 総じて、PMO田町2は、優れた立地、広々としたオフィススペース、充実した設備、そして安全性とデザイン性を兼ね備えたビルです。これらの特徴は、テナント企業にとって、ビジネス成長のための最適な環境を提供することでしょう。
自分で探すより問い合わせる方が早いことがあります
WEB非公開物件があるから
オーナー様のご希望により「WEBでは非公開」にしている物件があります。 それらはWEBでいくら検索しても見つかりません。 先ずは条件などお知らせ頂けましたら非公開物件含め ピッタリのオフィスをご提案させて頂きます。 無理なお勧めはしておりませんので、お気軽にお問い合わせください。
対面でのご相談も受け付けております
ご来店も歓迎です
オフィス移転は社内・社外ともに非公開に行われることが殆どです。そのためアットオフィスでは、基本的に訪問によるコンサルティングを行っておりますが、ご来店の相談も歓迎です。お一人おひとりに親身にご対応させて頂きたい為、要予約とさせて頂いております。ご来店の際は先ずは下記よりご予約下さい。
近くのエリアで探してみる
浜松町/田町/芝公園エリアでPMO田町Ⅱに似た条件の物件
読込中...
PMO田町Ⅱと同じ最寄駅の物件
読込中...
| 取扱様態 | 仲介 |
|---|---|
| 取扱会社 | 株式会社 アットオフィス |