寿々屋ビル2階の賃貸情報
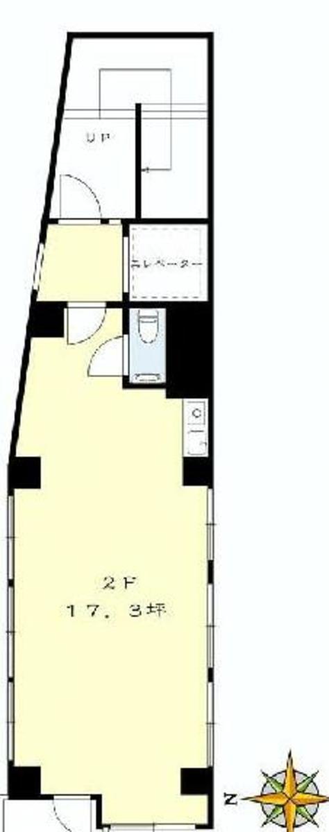
17.3 坪 (57.19m²)
※このサイトに記載がある賃貸条件は、敷金・保証金などの預かり金を除き、別途消費税がかかります。
寿々屋ビルの建物概要
設備詳細
| 空調 | - |
|---|---|
| トイレ | - |
| 床仕様 | - |
| エレベータ | 1 基 |
| 駐車場設備 | - |
| その他 | 新耐震基準 |
寿々屋ビル2階の賃貸オフィス・事務所に関するお問い合わせ
寿々屋ビルについて
# 寿々屋ビルの魅力とビジネス利点 寿々屋ビルは、文京区本郷1丁目に位置するオフィス賃貸物件で、東京都内のビジネス活動において非常に便利な立地条件を有しています。ビルの周辺環境や設備について冷静なトーンで詳述し、その魅力を探ります。 ## 立地条件の優位性 寿々屋ビルの最大の強みは、その優れた立地条件にあります。東京地下鉄丸ノ内線の後楽園駅から徒歩わずか5分、東京都三田線の春日駅からは徒歩3分、さらに水道橋駅からも徒歩7分という近さです。これらの駅はいずれも主要な交通ハブであり、都内各地へのアクセスが非常に容易です。ビジネスにおいて時間を有効活用したい企業にとって、この立地は非常に魅力的と言えます。 ## 建物と設備 寿々屋ビルは、現代のビジネスニーズに対応するための基本的な設備を完備しています。エレベーターは1機設置されており、ビル内の移動がスムーズに行えます。特に多層階にわたるオフィス空間を持つ企業にとって、この点は重要な要素です。また、エントランスや共有スペースも整備されており、訪れるクライアントやビジネスパートナーに対しても良好な印象を与えることができるでしょう。 ## 周辺環境と利便性 文京区本郷は、歴史と文化が交錯するエリアであり、知的な環境が整っています。多くの大学や研究機関が集積しているため、学術的な交流やコラボレーションが盛んです。また、近隣には多種多様な飲食店やカフェが立ち並び、ランチタイムやビジネスミーティングの際にも困ることはありません。さらに、金融機関や郵便局も徒歩圏内にあるため、日常の業務もスムーズに行えます。 ## ビジネスにおける利点 寿々屋ビルは、その立地と設備により、多様なビジネスニーズに対応できる柔軟性を持っています。特に、アクセスの良さから多くのクライアントやビジネスパートナーとの会合が頻繁に行われる企業にとっては、その利便性が大きなアドバンテージとなるでしょう。また、文京区という知的で静かな環境は、集中力を求める業務にも最適です。 総じて、寿々屋ビルは立地条件、設備、周辺環境の三拍子が揃ったオフィス賃貸物件と言えます。ビジネスの拠点として、または新たなプロジェクトのためのオフィスとして、このビルが提供する環境は、さまざまな企業にとって理想的な選択肢となるでしょう。
寿々屋ビルのこだわり
自分で探すより問い合わせる方が早いことがあります
WEB非公開物件があるから
オーナー様のご希望により「WEBでは非公開」にしている物件があります。 それらはWEBでいくら検索しても見つかりません。 先ずは条件などお知らせ頂けましたら非公開物件含め ピッタリのオフィスをご提案させて頂きます。 無理なお勧めはしておりませんので、お気軽にお問い合わせください。
対面でのご相談も受け付けております
ご来店も歓迎です
オフィス移転は社内・社外ともに非公開に行われることが殆どです。そのためアットオフィスでは、基本的に訪問によるコンサルティングを行っておりますが、ご来店の相談も歓迎です。お一人おひとりに親身にご対応させて頂きたい為、要予約とさせて頂いております。ご来店の際は先ずは下記よりご予約下さい。
湯島/本郷/後楽園エリアで寿々屋ビルに似た条件の物件
読込中...
寿々屋ビルと同じ最寄駅の物件
読込中...
| 取扱様態 | 仲介 |
|---|---|
| 取扱会社 | 株式会社 アットオフィス |