※このサイトに記載がある賃貸条件は、敷金・保証金などの預かり金を除き、別途消費税がかかります。
物件情報
設備詳細
| 空調 | 個別空調 |
|---|---|
| トイレ | - |
| 床仕様 | - |
| エレベータ | 3 基 |
| 駐車場設備 | 空有 / 機械式駐車場 |
| その他 | 機械警備 / 24時間利用可 / 光ファイバー / 新耐震基準 / 居抜き / オフィス居抜き特集 / クリニック |
Tsao Hibiyaの賃貸オフィス・事務所に関するお問い合わせ
Tsao Hibiyaについて
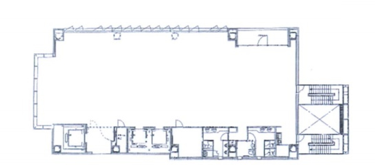
2017年10月に竣工した地下1階、地上12階建てのスタイリッシュなオフィスビルです。外観はモダンなガラス張りファサードが特徴で、通りから一際目を引く存在となっています。長方形の貸室は、無柱空間でレイアウトの自由度が高く、床荷重は300kg/㎡となっています。ビル内には共用シャワールームや多目的トイレがあり、セキュリティ面では機械式警備システムを導入し、24時間利用可能なオフィス環境になっております。JR線「新橋」駅から徒歩6分、東京メトロ銀座線「新橋駅」から徒歩7分、都営三田線「内幸町」駅からは徒歩4分と、複数の駅・路線が利用可能です。さらに、周辺環境も充実しています。各メガバンクの支店やATM、郵便局が歩いて数分の範囲に揃っているほか、新橋駅方面には飲食店が集積する繁華街が広がっています。ランチタイムや仕事帰りのリフレッシュにも最適な立地です。
自分で探すより問い合わせる方が早いことがあります
WEB非公開物件があるから
オーナー様のご希望により「WEBでは非公開」にしている物件があります。 それらはWEBでいくら検索しても見つかりません。 先ずは条件などお知らせ頂けましたら非公開物件含め ピッタリのオフィスをご提案させて頂きます。 無理なお勧めはしておりませんので、お気軽にお問い合わせください。
対面でのご相談も受け付けております
ご来店も歓迎です
オフィス移転は社内・社外ともに非公開に行われることが殆どです。そのためアットオフィスでは、基本的に訪問によるコンサルティングを行っておりますが、ご来店の相談も歓迎です。お一人おひとりに親身にご対応させて頂きたい為、要予約とさせて頂いております。ご来店の際は先ずは下記よりご予約下さい。
募集終了のテナント区画
| 階数 | 坪数 | 賃料 + 共益費 | 敷金/礼金敷金 礼金 | 検討 |
|---|---|---|---|---|
| 2階 | 80.67坪 (266.68m²) | 募集終了 | - | - |
| 3階 | 110.37坪 (364.87m²) | 募集終了 | - | - |
| 4階 | 110.33坪 (364.74m²) | 募集終了 | - | - |
| 5階 | 110.33坪 (364.74m²) | 募集終了 | - | - |
| 6階 | 110.37坪 (364.87m²) | 募集終了 | - | - |
| 7階 | 110.33坪 (364.87m²) | 募集終了 | - | - |
| 8階 | 110.37坪 (364.87m²) | 募集終了 | - | - |
| 9階 | 110.33坪 (364.72m²) | 募集終了 | - | - |
| 11階 | 110.33坪 (364.72m²) | 募集終了 | - | - |
| 12階 | 71.53坪 (236.46m²) | 募集終了 | - | - |
読込中...
近くのエリアで探してみる
新橋/虎ノ門/神谷町エリアでTsao Hibiyaに似た条件の物件
読込中...
| 取扱様態 | 仲介 |
|---|---|
| 取扱会社 | 株式会社 アットオフィス |