※このサイトに記載がある賃貸条件は、敷金・保証金などの預かり金を除き、別途消費税がかかります。
物件情報
設備詳細
| 空調 | - |
|---|---|
| トイレ | - |
| 床仕様 | - |
| エレベータ | 1 基 |
| 駐車場設備 | - |
| その他 | 24時間利用可 / 新耐震基準 / クリニック / スケルトン / 神奈川賃料が10000円以下 / 店舗可(飲食不可) |
大洋センタービルの賃貸オフィス・事務所に関するお問い合わせ
大洋センタービルについて
大洋センターは、品濃町にあるオフィスビルです。東戸塚駅から徒歩2分の駅近物件です。1988年に竣工しました。エレベーターが1基あります。鉄筋コンクリート造により耐震性に優れています。床下にケーブルやコンセントを納められるOAフロアです。男女別トイレがあります。24時間利用が可能です。クリニックとして利用できます。周辺には飲食店やショッピングモール、みずほ銀行があります。近隣にはオフィスビルや店舗ビルが立ち並んでいます。大通りの交差点に位置するため、見通しの良い場所です。駅前通りに位置するため、利便性の良いエリアです。
大洋センタービルのこだわり
自分で探すより問い合わせる方が早いことがあります
WEB非公開物件があるから
オーナー様のご希望により「WEBでは非公開」にしている物件があります。 それらはWEBでいくら検索しても見つかりません。 先ずは条件などお知らせ頂けましたら非公開物件含め ピッタリのオフィスをご提案させて頂きます。 無理なお勧めはしておりませんので、お気軽にお問い合わせください。
対面でのご相談も受け付けております
ご来店も歓迎です
オフィス移転は社内・社外ともに非公開に行われることが殆どです。そのためアットオフィスでは、基本的に訪問によるコンサルティングを行っておりますが、ご来店の相談も歓迎です。お一人おひとりに親身にご対応させて頂きたい為、要予約とさせて頂いております。ご来店の際は先ずは下記よりご予約下さい。
募集終了のテナント区画
| 階数 | 坪数 | 賃料 + 共益費 | 敷金/礼金敷金 礼金 | 検討 |
|---|---|---|---|---|
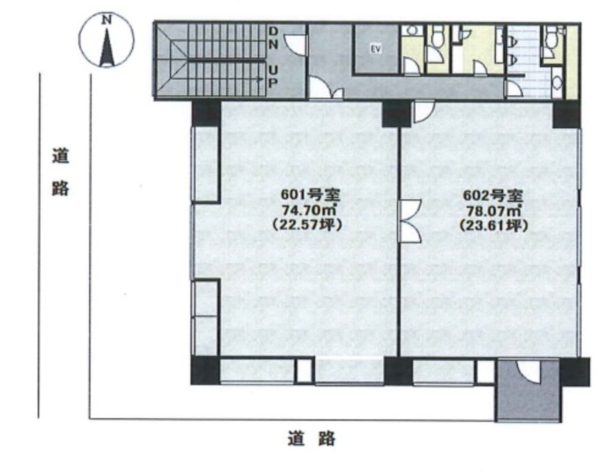
| 4階 | 23.61坪 (78.05m²) | 募集終了 | - | - |
| 4階 | 22.59坪 (74.7m²) | 募集終了 | - | - |
| 5階 | 23.61坪 (78.07m²) | 募集終了 | - | - |
読込中...
戸塚区エリアで大洋センタービルに似た条件の物件
読込中...
| 取扱様態 | 仲介 |
|---|---|
| 取扱会社 | 株式会社 アットオフィス |