※このサイトに記載がある賃貸条件は、敷金・保証金などの預かり金を除き、別途消費税がかかります。
物件情報
設備詳細
| 空調 | 個別空調 |
|---|---|
| トイレ | - |
| 床仕様 | OA対応床(フリーアクセス) |
| エレベータ | - |
| 駐車場設備 | 空無 |
| その他 | 新耐震基準 |
PMO八丁堀Ⅲの賃貸オフィス・事務所に関するお問い合わせ
PMO八丁堀Ⅲについて
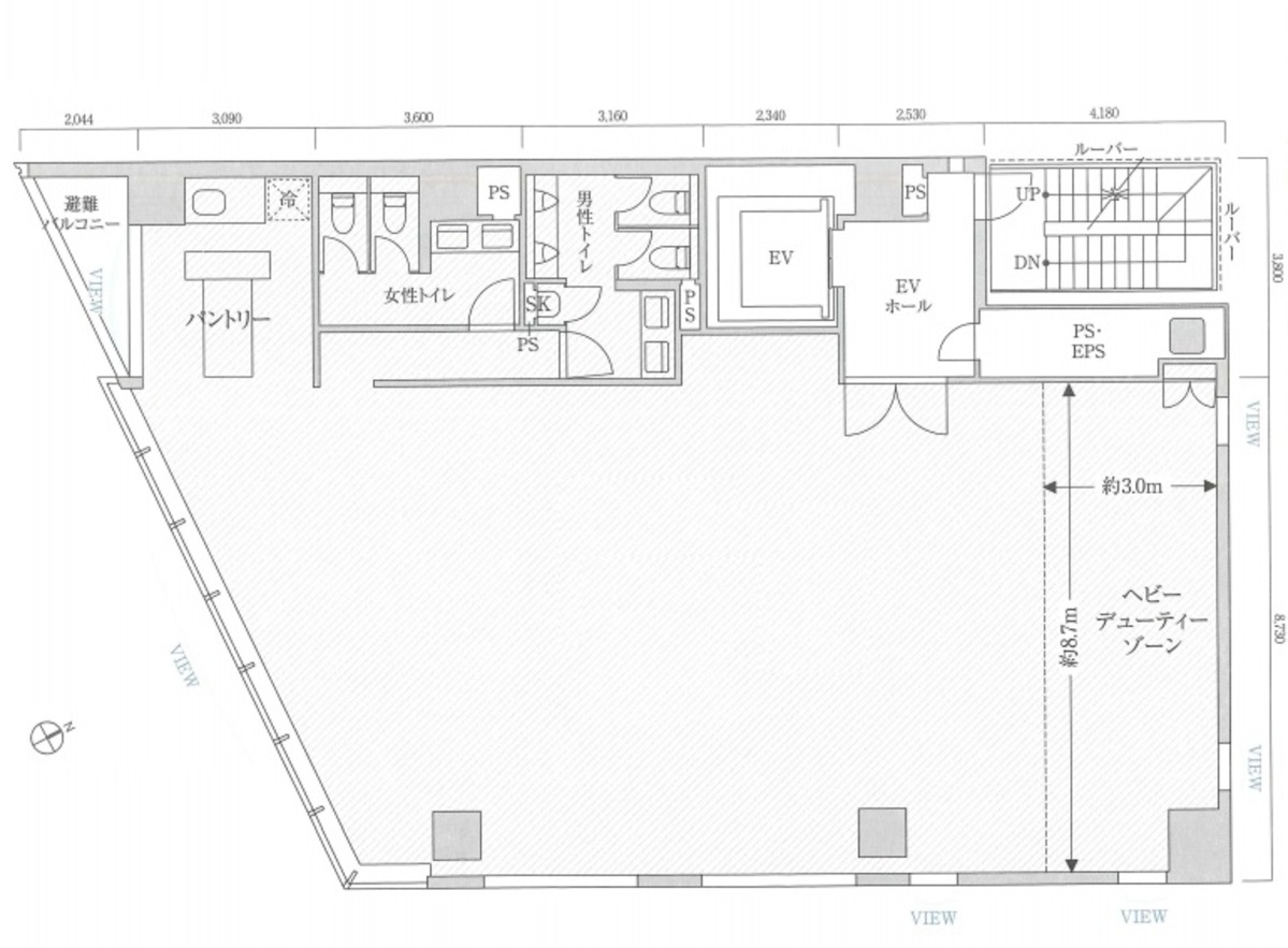
東京中央区八丁堀に位置する「PMO八丁堀Ⅲ」は、2018年に新耐震基準に準拠して建設された、地上10階建てのモダンなオフィスビルです。これからビジネスをさらに飛躍させたい企業様にとって、最適な選択肢となるでしょう。以下、本ビルの特徴をご紹介します。 【立地の利便性】 PMO八丁堀Ⅲは、東京メトロ日比谷線の八丁堀駅から徒歩わずか1分の距離にあり、JR京葉線・都営浅草線の宝町駅、東京メトロ東西線の茅場町駅、東京メトロ銀座線の京橋駅も徒歩圏内にあります。複数の交通機関が利用可能で、ビジネスアクセスの良さは格別です。周辺には飲食店やコンビニエンスストア、郵便局などが充実しており、日常の業務に便利な環境が整っています。 【ビルの特徴】 エントランスはガラス張りで開放感があり、高級感あふれるデザインが特徴です。セキュリティシステムは5段階にわたり、24時間の安心を提供します。また、オフィスフロアは基準階約57.5坪で、OAフロアや個別空調、LED照明、高速光ファイバーを完備しており、快適なオフィス環境を実現しています。全面ガラス張りのため、自然光が豊富に差し込み、明るく活気あるワークスペースを提供します。 【防災対策】 本ビルは新耐震基準に準拠し、コンクリート充填鋼管構造(CFT造)を採用しています。これにより、耐震性に優れ、安心して業務を遂行できる環境が整っています。非常時の備えとして、ポータブル発電機や無接点非常用ランタンも標準装備されています。 【周辺環境】 八丁堀エリアは、和やかな雰囲気とともにビジネスのための利便性を兼ね備えています。ランチスポットやショッピング施設が豊富にあり、ビジネス以外の時間も充実させることができます。また、静かで治安の良いエリアであるため、働く従業員の方々にも安心していただけるでしょう。 【まとめ】 PMO八丁堀Ⅲは、立地の利便性、モダンな設備、優れた耐震性、そして快適なワークスペースを提供するオフィスビルです。ビジネスの拠点として、また従業員の方々にとっても理想的な環境を求める企業様に最適な選択となるでしょう。今後のビジネス展開に向け、ぜひPMO八丁堀Ⅲをご検討ください。
PMO八丁堀Ⅲのこだわり
自分で探すより問い合わせる方が早いことがあります
WEB非公開物件があるから
オーナー様のご希望により「WEBでは非公開」にしている物件があります。 それらはWEBでいくら検索しても見つかりません。 先ずは条件などお知らせ頂けましたら非公開物件含め ピッタリのオフィスをご提案させて頂きます。 無理なお勧めはしておりませんので、お気軽にお問い合わせください。
対面でのご相談も受け付けております
ご来店も歓迎です
オフィス移転は社内・社外ともに非公開に行われることが殆どです。そのためアットオフィスでは、基本的に訪問によるコンサルティングを行っておりますが、ご来店の相談も歓迎です。お一人おひとりに親身にご対応させて頂きたい為、要予約とさせて頂いております。ご来店の際は先ずは下記よりご予約下さい。
募集終了のテナント区画
| 階数 | 坪数 | 賃料 + 共益費 | 敷金/礼金敷金 礼金 | 検討 |
|---|---|---|---|---|
| 2階 | 57.54坪 (190.21m²) | 募集終了 | - | - |
| 3階 | 57.54坪 (190.21m²) | 募集終了 | - | - |
| 4階 | 57.54坪 (190.21m²) | 募集終了 | - | - |
| 5階 | 57.54坪 (190.21m²) | 募集終了 | - | - |
| 6階 | 57.54坪 (190.21m²) | 募集終了 | - | - |
| 8階 | 57.54坪 (190.22m²) | 募集終了 | - | - |
| 9階 | 57.54坪 (190.21m²) | 募集終了 | - | - |
| 10階 | 57.54坪 (190.21m²) | 募集終了 | - | - |
読込中...
近くのエリアで探してみる
茅場町/新川/八丁堀エリアでPMO八丁堀Ⅲに似た条件の物件
読込中...
| 取扱様態 | 仲介 |
|---|---|
| 取扱会社 | 株式会社 アットオフィス |