※このサイトに記載がある賃貸条件は、敷金・保証金などの預かり金を除き、別途消費税がかかります。
お電話でもお気軽にお問い合わせください
物件情報
設備詳細
| 空調 | - |
|---|---|
| トイレ | - |
| 床仕様 | - |
| エレベータ | - |
| 駐車場設備 | - |
| その他 | 大型ビル / 高層ビル / 新耐震基準 |
アクセスマップ
丸の内二重橋ビルディングは、2018年に竣工した千代田区丸の内3丁目に位置する地上30階建ての大型オフィスビルです。この物件は、最先端の設備と機能性を備え、ビジネスの中心地である東京の丸の内エリアにおける先進的なオフィススペースを提供しています。 立地に関して、丸の内二重橋ビルディングは、二重橋前駅から徒歩1分、日比谷駅からも徒歩1分という驚異的なアクセスの良さを誇ります。さらに、JR線の東京駅や有楽町駅が徒歩圏内にあり、多方面への移動が容易なことはビジネスを行う上で大きな利点となります。周辺には飲食店やショッピングモール、劇場などのレジャー施設も充実しており、オフィスワーカーや来訪者にとって快適な環境が整っています。 物件の設備については、鉄骨造の耐震性に優れた構造であり、26基のエレベーターが設置されていることで、ビル内の移動の効率化が図られています。基準階面積は約904坪と広大で、各テナントのニーズに応じた柔軟なレイアウトが可能です。また、地下1階から地上2階にかけては「二重橋スクエア」と呼ばれる商業ゾーンがあり、多彩な店舗が入居しています。駐車場と駐輪場も完備され、ビジネス利用だけでなく、日常の利便性も高められています。 ビルの安全性に関しても、制震構造を採用し、72時間稼働する非常用発電機を備えるなど、災害に強い設計がなされています。セキュリティ面では、非接触型ICカードを導入しており、テナント企業の安全とプライバシー保護に配慮されています。 丸の内二重橋ビルディングは、その優れた立地、先進的な設備、安全性の高さを兼ね備え、ビジネスの効率化を図る企業にとって理想的なオフィス環境を提供しています。ビジネスの成功と発展を支える拠点として、ぜひご検討ください。
募集終了のテナント区画
| 階数 | 坪数 | 賃料 + 共益費 | 敷金/礼金敷金 礼金 | 検討 |
|---|---|---|---|---|
| B2階 | 13.29坪 (43.95m²) | 募集終了 | - | - |
| 2階 | 345.61坪 (1142.51m²) | 募集終了 | - | - |
| 3階 | 345.61坪 (1142.51m²) | 募集終了 | - | - |
| 4階 | 40.53坪 (133.98m²) | 募集終了 | - | - |
| 5階 | 97.47坪 (322.21m²) | 募集終了 | - | - |
| 5階 | 21.32坪 (70.47m²) | 募集終了 | - | - |
| 5階 | 79.67坪 (263.37m²) | 募集終了 | - | - |
| 6階 | 28.52坪 (94.29m²) | 募集終了 | - | - |
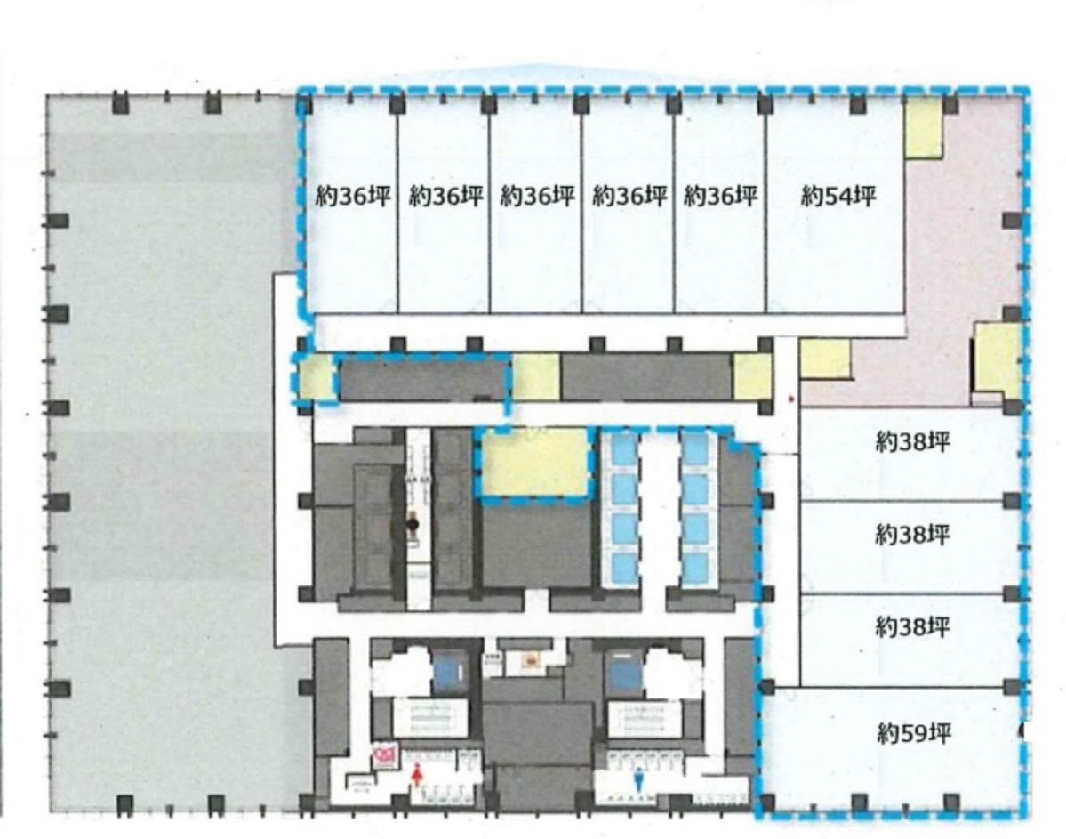
| 6階 | 904.21坪 (2989.14m²) | 募集終了 | - | - |
| 18階 | 920.44坪 (3042.77m²) | 募集終了 | - | - |
| 18階 | 196.43坪 (649.35m²) | 募集終了 | - | - |
| 18階 | 78.8坪 (260.49m²) | 募集終了 | - | - |
| 19階 | 904.21坪 (2989.14m²) | 募集終了 | - | - |
| 21階 | 36.7坪 (121.32m²) | 募集終了 | - | - |
| 21階 | 36坪 (119.01m²) | 募集終了 | - | - |
| 21階 | 36坪 (119.01m²) | 募集終了 | - | - |
| 21階 | 36坪 (119.01m²) | 募集終了 | - | - |
| 21階 | 55.05坪 (181.98m²) | 募集終了 | - | - |
| 21階 | 55.05坪 (181.98m²) | 募集終了 | - | - |
| 21階 | 38.81坪 (128.3m²) | 募集終了 | - | - |
| 21階 | 38.81坪 (128.3m²) | 募集終了 | - | - |
| 21階 | 38坪 (125.62m²) | 募集終了 | - | - |
| 21階 | 60.66坪 (200.52m²) | 募集終了 | - | - |
| 21階 | 38.81坪 (128.3m²) | 募集終了 | - | - |
| 21階 | 102.15坪 (337.68m²) | 募集終了 | - | - |
WEB非公開物件がございます
オーナー様ご希望によるWEB非公開の物件もございます。先ずは条件などお知らせ頂けましたら、非公開物件含めピッタリのオフィスをご提案させて頂きます。具体的な物件がお決まりでない場合でも問題ございません。無理なお勧めはしておりませんので、お気軽にお問い合わせください。
ご来店も歓迎です
オフィス移転は社内・社外ともに非公開に行われることが殆どです。そのためアットオフィスでは、基本的に訪問によるコンサルティングを行っておりますが、ご来店の相談も歓迎です。
※お一人おひとりに親身にご対応させて頂きたい為、要予約とさせて頂いております。ご来店の際は先ずは上記よりご予約下さい。
読込中...
近くのエリアで探してみる
大手町/丸の内/有楽町エリアで丸の内二重橋ビルに似た条件の物件
読込中...