※このサイトに記載がある賃貸条件は、敷金・保証金などの預かり金を除き、別途消費税がかかります。
物件情報
設備詳細
| 空調 | - |
|---|---|
| トイレ | - |
| 床仕様 | - |
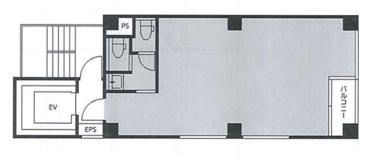
| エレベータ | 1 基 |
| 駐車場設備 | - |
| その他 | 機械警備 / 24時間利用可 / 新耐震基準 |
ACN虎ノ門ビルの賃貸オフィス・事務所に関するお問い合わせ
ACN虎ノ門ビルについて
ACN虎ノ門ビルは、東京都港区西新橋1丁目に位置する、2018年に竣工された現代的なオフィスビルです。この物件は、現行の新耐震基準を満たした安全性の高い建築として注目を集めています。ビルの設計は、企業のニーズに応える柔軟性と機能性を追求し、現代のオフィスワークに最適化されています。 立地においては、複数の交通アクセスが可能な点が特筆されます。最寄り駅である内幸町駅からは徒歩数分の距離にあり、新橋駅や虎ノ門駅からも容易にアクセス可能という、利便性の高い立地条件を備えています。このような立地は、従業員の通勤の利便性を高めるだけでなく、ビジネスの機会を広げる上でも重要な要素となります。 ビルの仕様には、1フロアを1テナントが占有するデザインが採用されています。これは、プライバシーの保護と企業の独自性の確保に寄与し、企業文化やブランドイメージを形成する上での利点を提供します。また、男女別トイレの設置など、従業員の快適性を考慮した設備が整っており、長時間の業務でも作業効率の低下を最小限に抑えることができます。 さらに、ACN虎ノ門ビルはエレベーターを1機備えており、スムーズな移動を支援します。これは、日々の業務の効率性を高めるとともに、ビジネスの機動性を保つ上で有利となります。 このビルは、最新の耐震技術に基づく安全性、優れた立地条件、効率的なビル設計という、現代のビジネスが要求する複数の要素を兼ね備えています。企業が新しいオフィスを探している際に、これらの特徴は大きな魅力となり得ます。虎ノ門SEビルは、ビジネスの成長と発展を支えるための理想的な環境を提供し、テナント企業にとっての価値ある投資となるでしょう。興味のある方は、是非ともこの機会にお問い合わせください。
ACN虎ノ門ビルのこだわり
自分で探すより問い合わせる方が早いことがあります
WEB非公開物件があるから
オーナー様のご希望により「WEBでは非公開」にしている物件があります。 それらはWEBでいくら検索しても見つかりません。 先ずは条件などお知らせ頂けましたら非公開物件含め ピッタリのオフィスをご提案させて頂きます。 無理なお勧めはしておりませんので、お気軽にお問い合わせください。
対面でのご相談も受け付けております
ご来店も歓迎です
オフィス移転は社内・社外ともに非公開に行われることが殆どです。そのためアットオフィスでは、基本的に訪問によるコンサルティングを行っておりますが、ご来店の相談も歓迎です。お一人おひとりに親身にご対応させて頂きたい為、要予約とさせて頂いております。ご来店の際は先ずは下記よりご予約下さい。
募集終了のテナント区画
| 階数 | 坪数 | 賃料 + 共益費 | 敷金/礼金敷金 礼金 | 検討 |
|---|---|---|---|---|
| B1階 | 12.73坪 (42.08m²) | 募集終了 | - | - |
| 2階 | 12.73坪 (42.08m²) | 募集終了 | - | - |
| 3階 | 12.49坪 (41.29m²) | 募集終了 | - | - |
| 4階 | 12.49坪 (41.29m²) | 募集終了 | - | - |
| 5階 | 12.49坪 (41.29m²) | 募集終了 | - | - |
| 6階 | 11.89坪 (39.3m²) | 募集終了 | - | - |
| 8階 | 11.89坪 (39.3m²) | 募集終了 | - | - |
読込中...
近くのエリアで探してみる
新橋/虎ノ門/神谷町エリアでACN虎ノ門ビルに似た条件の物件
読込中...
| 取扱様態 | 仲介 |
|---|---|
| 取扱会社 | 株式会社 アットオフィス |