グレースイマスビル4階の賃貸情報
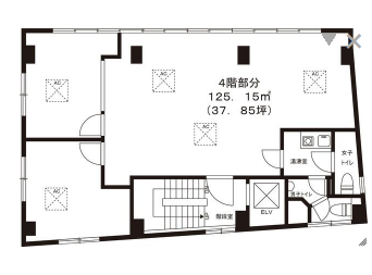
37.85 坪 (125.15m²)
※このサイトに記載がある賃貸条件は、敷金・保証金などの預かり金を除き、別途消費税がかかります。
グレースイマスビルの建物概要
設備詳細
| 空調 | 個別空調 |
|---|---|
| トイレ | - |
| 床仕様 | - |
| エレベータ | 1 基 |
| 駐車場設備 | - |
| その他 | 機械警備 / 東京賃料が坪11000円以下 |
グレースイマスビルについて
文京区本郷に位置するグレースイマスビルは、1970年に竣工された歴史あるオフィスビルです。このビルは2008年にエレベーターを、2011年には外壁と各室のエアコンをリニューアルしており、現代のビジネスニーズに合わせた最新の設備が整っています。立地も非常に魅力的で、東京大学キャンパスのすぐそばにあり、最寄りの本郷三丁目駅からは徒歩わずか3分です。 ビルの1階には複数の飲食店が入居しており、ビル周辺にはカフェやコンビニなどが充実しています。これにより、ビルのテナントは日々のランチやちょっとした買い物にも便利な環境を享受できます。また、秋には本郷通り沿いに植えられた銀杏並木が美しく色づき、ビジネスの合間に四季折々の自然美を感じることができるでしょう。 ビル内のオフィススペースは、ワンフロア約40坪と広々としており、大きな窓からの光がたっぷりと入る設計です。これにより、明るく開放的なワークスペースを実現しています。セキュリティ面では、機械警備が導入されており、テナント企業の安心とセキュリティをしっかりと保護します。 グレースイマスビルは、その歴史ある風格とともに、リニューアルを経て現代のオフィスビルとしての機能を兼ね備えています。立地の良さ、施設の充実、そして自然と触れ合える環境は、ビジネスを行う上で大きなアドバンテージとなります。オフィスを構える企業にとって、クライアントを迎える際の印象も良好で、企業イメージの向上にも寄与することでしょう。 文京区本郷というアクセスの良い立地にありながら、落ち着いた環境を提供するグレースイマスビル。それは、多様なビジネスの可能性を秘めた、理想的なオフィスビルと言えるでしょう。
グレースイマスビルのこだわり
自分で探すより問い合わせる方が早いことがあります
WEB非公開物件があるから
オーナー様のご希望により「WEBでは非公開」にしている物件があります。 それらはWEBでいくら検索しても見つかりません。 先ずは条件などお知らせ頂けましたら非公開物件含め ピッタリのオフィスをご提案させて頂きます。 無理なお勧めはしておりませんので、お気軽にお問い合わせください。
対面でのご相談も受け付けております
ご来店も歓迎です
オフィス移転は社内・社外ともに非公開に行われることが殆どです。そのためアットオフィスでは、基本的に訪問によるコンサルティングを行っておりますが、ご来店の相談も歓迎です。お一人おひとりに親身にご対応させて頂きたい為、要予約とさせて頂いております。ご来店の際は先ずは下記よりご予約下さい。
湯島/本郷/後楽園エリアでグレースイマスビルに似た条件の物件
読込中...
グレースイマスビルと同じ最寄駅の物件
読込中...
| 取扱様態 | 仲介 |
|---|---|
| 取扱会社 | 株式会社 アットオフィス |