※このサイトに記載がある賃貸条件は、敷金・保証金などの預かり金を除き、別途消費税がかかります。
物件情報
設備詳細
| 空調 | - |
|---|---|
| トイレ | 男女共用トイレ・室内 |
| 床仕様 | - |
| エレベータ | - |
| 駐車場設備 | - |
| その他 | 24時間利用可 / 光ファイバー / 新耐震基準 |
セルクル赤坂の賃貸オフィス・事務所に関するお問い合わせ
セルクル赤坂について
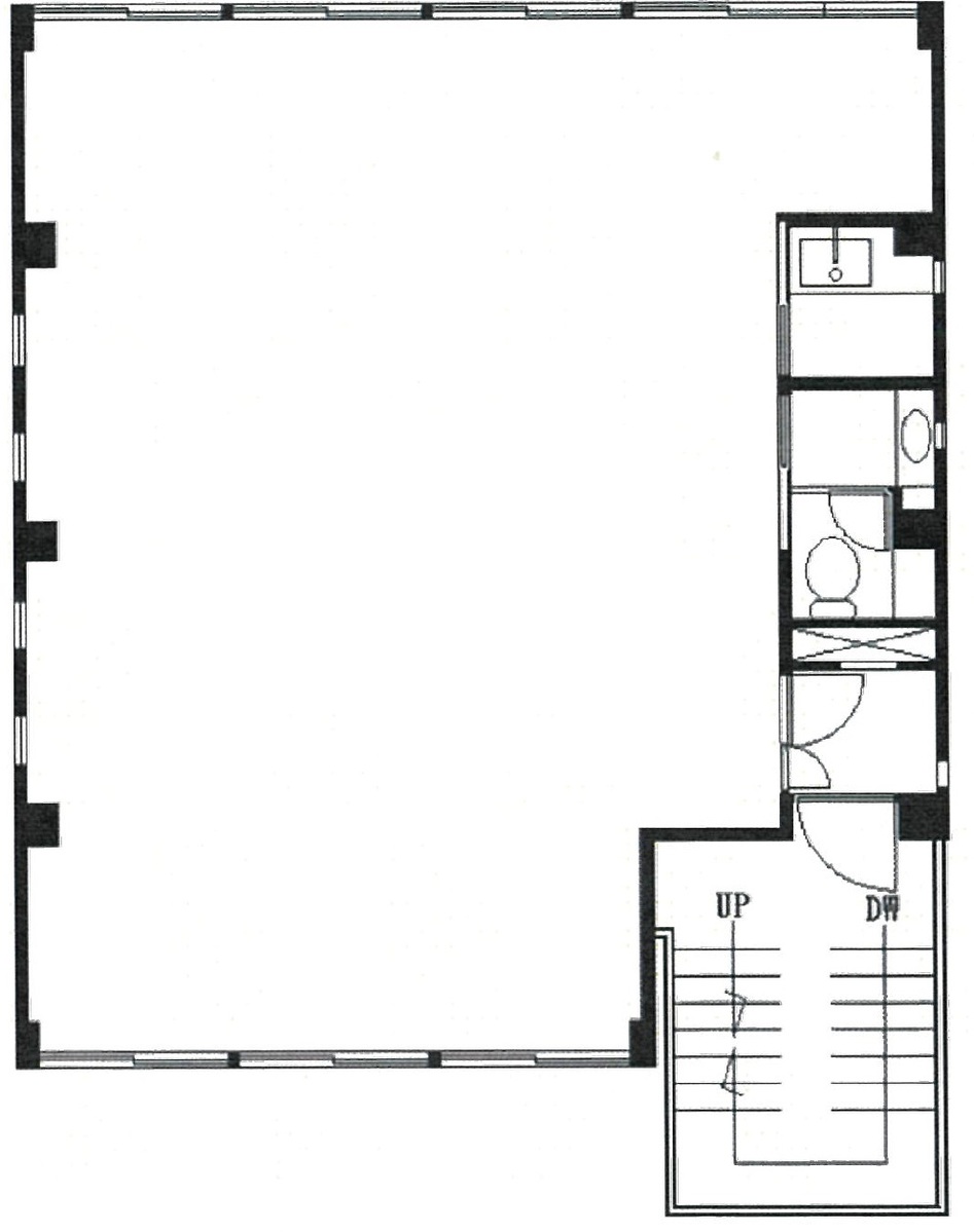
セルクル赤坂(港区赤坂)は、その歴史と静謐な環境が魅力の賃貸オフィスビルです。1988年に竣工したこの3階建ての建物は、落ち着いた赤いレンガ造りの外観が特徴で、ビジネスの場としてだけでなく、その風貌によっても周囲の景観に調和しています。ビルの立地は、赤坂の閑静な住宅街に位置し、赤坂不動尊の近くにあります。この地は、都心でありながら静かな環境を求める方に最適な場所です。 セルクル赤坂は、赤坂見附駅を最寄駅とし、赤坂駅や永田町駅も徒歩圏内にあります。これら3駅からは5路線が利用可能で、都内各地へのアクセスの良さはビジネスにおいて大きな利点です。また、青山通りが近くにあるため、ランチタイムや仕事帰りには多彩な飲食店を楽しむことができます。徒歩圏内にはセブン-イレブン、はなまるうどん、ドトールコーヒーショップなどの便利な施設もあり、日常のニーズに応えます。 ビル内部については、エレベーターのない3階建てという構造で、土日祝日も利用可能です。基準階の賃貸オフィスは約26坪あり、長方形に近いレイアウトしやすい間取りが特徴です。エントランスロビーはなく、直接階段へと続く入口から始まり、見た目はコンパクトなマンションのような印象です。また、オフィスのセキュリティとしてドアにシャッターが装備されており、安心してご利用いただけます。 立地の魅力は、静かな住宅街の中にありながら、一ツ木通り沿いに建つ住友不動産新赤坂ビルの横にある階段をのぼると、繁華街に簡単にアクセスできる点にあります。この近道は、ランチタイムや仕事帰りの時間を有効に使いたいビジネスパーソンにとって大きな魅力です。 セルクル赤坂は、ビジネスに必要な機能性と利便性を備えながら、静かで落ち着いた環境を提供する賃貸オフィスビルです。立地の良さと建物の特徴を生かしたビジネス環境を求める企業にとって、理想的な選択肢となるでしょう。
セルクル赤坂のこだわり
自分で探すより問い合わせる方が早いことがあります
WEB非公開物件があるから
オーナー様のご希望により「WEBでは非公開」にしている物件があります。 それらはWEBでいくら検索しても見つかりません。 先ずは条件などお知らせ頂けましたら非公開物件含め ピッタリのオフィスをご提案させて頂きます。 無理なお勧めはしておりませんので、お気軽にお問い合わせください。
対面でのご相談も受け付けております
ご来店も歓迎です
オフィス移転は社内・社外ともに非公開に行われることが殆どです。そのためアットオフィスでは、基本的に訪問によるコンサルティングを行っておりますが、ご来店の相談も歓迎です。お一人おひとりに親身にご対応させて頂きたい為、要予約とさせて頂いております。ご来店の際は先ずは下記よりご予約下さい。
募集終了のテナント区画
| 階数 | 坪数 | 賃料 + 共益費 | 敷金/礼金敷金 礼金 | 検討 |
|---|---|---|---|---|
| 1階 | 26.83坪 (88.72m²) | 募集終了 | - | - |
| 3階 | 21.3坪 (70.43m²) | 募集終了 | - | - |
読込中...
赤坂/六本木/麻布エリアでセルクル赤坂に似た条件の物件
読込中...
| 取扱様態 | 仲介 |
|---|---|
| 取扱会社 | 株式会社 アットオフィス |