※このサイトに記載がある賃貸条件は、敷金・保証金などの預かり金を除き、別途消費税がかかります。
物件情報
設備詳細
| 空調 | 個別空調 |
|---|---|
| トイレ | - |
| 床仕様 | OA対応床(フリーアクセス) |
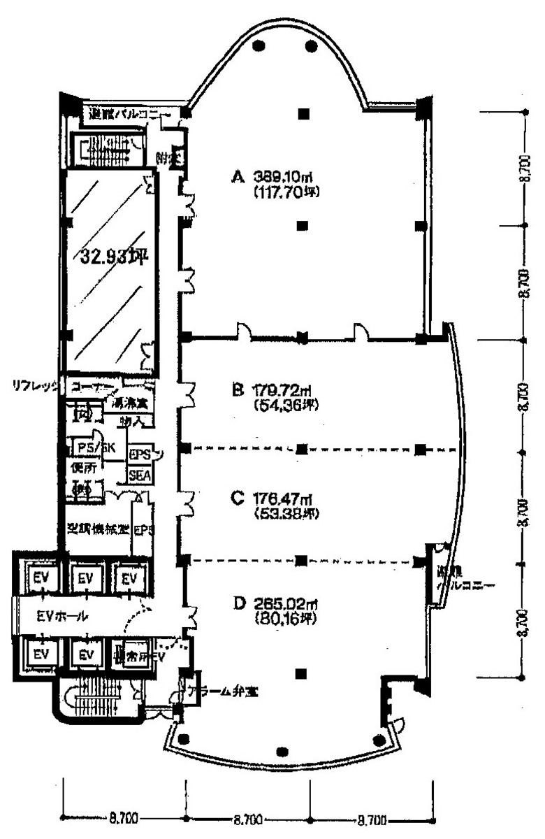
| エレベータ | 6 基 |
| 駐車場設備 | - |
| その他 | 大型ビル / 高層ビル / 新耐震基準 |
ナディアパークビジネスセンタービルの賃貸オフィス・事務所に関するお問い合わせ
ナディアパークビジネスセンタービルについて
ナディアパークビジネスセンターは、栄3丁目にある大型ビルです。矢場町駅から徒歩5分の駅近物件です。栄駅からは徒歩7分です。1996年に竣工しました。エレベーターは6基です。個別空調で管理しやすく、コスト削減になります。床下にケーブルを入れるOAフロアで、すっきりとした空間です。周辺に飲食店やコンビニがあり、急用時も困りません。ショッピングモールや銀行に近いため、移動時間が短縮できます。裏通りですが、隣接した建物が少ないため、見通しの良い場所です。駅前商業地のため、移動に便利なエリアです。
自分で探すより問い合わせる方が早いことがあります
WEB非公開物件があるから
オーナー様のご希望により「WEBでは非公開」にしている物件があります。 それらはWEBでいくら検索しても見つかりません。 先ずは条件などお知らせ頂けましたら非公開物件含め ピッタリのオフィスをご提案させて頂きます。 無理なお勧めはしておりませんので、お気軽にお問い合わせください。
対面でのご相談も受け付けております
ご来店も歓迎です
オフィス移転は社内・社外ともに非公開に行われることが殆どです。そのためアットオフィスでは、基本的に訪問によるコンサルティングを行っておりますが、ご来店の相談も歓迎です。お一人おひとりに親身にご対応させて頂きたい為、要予約とさせて頂いております。ご来店の際は先ずは下記よりご予約下さい。
募集終了のテナント区画
読込中...
中区エリアでナディアパークビジネスセンタービルに似た条件の物件
読込中...
| 取扱様態 | 仲介 |
|---|---|
| 取扱会社 | 株式会社 アットオフィス |