志摩ビルの賃料条件
| 階数 | 坪数 | 賃料 + 共益費 | 敷金/礼金敷金 礼金 | 検討 |
|---|---|---|---|---|
| 3階 | 18.51坪 (61.2m²) | 240,632円 (坪:13,300 円) | 10ヶ月 無10ヶ月/無 | |
| 7階 | 16.13坪 (53.34m²) | 230,659円 (坪:14,300 円) | 10ヶ月 無10ヶ月/無 |
※このサイトに記載がある賃貸条件は、敷金・保証金などの預かり金を除き、別途消費税がかかります。
物件情報
設備詳細
| 空調 | - |
|---|---|
| トイレ | - |
| 床仕様 | OA対応床(フリーアクセス) |
| エレベータ | 1 基 |
| 駐車場設備 | 空有 |
| その他 | 新耐震基準 |
志摩ビルの賃貸オフィス・事務所に関するお問い合わせ
志摩ビルについて
志摩は、名駅3丁目にあるオフィスビルです。国際センター駅から徒歩3分の駅近物件です。名古屋駅からは徒歩5分です。1988年に竣工しました。軽量鉄骨造により耐震性に優れています。床下にケーブルを納められるOAフロアで、すっきりとした空間が保てます。エレベーターが1基あります。個別空調付きのため、管理しやすくコスト削減ができます。駐車場があります。周辺には飲食店やコンビニ、カーシェアリングがあり、急用時も困りません。大通りの交差点に位置しており、見通しの良い場所です。バス停や駅、高速道入口に近いため、移動手段が選びやすいエリアです。
志摩ビルのこだわり
自分で探すより問い合わせる方が早いことがあります
WEB非公開物件があるから
オーナー様のご希望により「WEBでは非公開」にしている物件があります。 それらはWEBでいくら検索しても見つかりません。 先ずは条件などお知らせ頂けましたら非公開物件含め ピッタリのオフィスをご提案させて頂きます。 無理なお勧めはしておりませんので、お気軽にお問い合わせください。
対面でのご相談も受け付けております
ご来店も歓迎です
オフィス移転は社内・社外ともに非公開に行われることが殆どです。そのためアットオフィスでは、基本的に訪問によるコンサルティングを行っておりますが、ご来店の相談も歓迎です。お一人おひとりに親身にご対応させて頂きたい為、要予約とさせて頂いております。ご来店の際は先ずは下記よりご予約下さい。
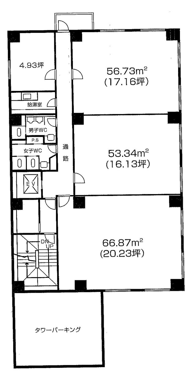
募集終了のテナント区画
| 階数 | 坪数 | 賃料 + 共益費 | 敷金/礼金敷金 礼金 | 検討 |
|---|---|---|---|---|
| 1階 | 35.74坪 (118.14m²) | 募集終了 | - | - |
| 1階 | 16.13坪 (53.32m²) | 募集終了 | - | - |
| 2階 | 24.15坪 (79.83m²) | 募集終了 | - | - |
| 3階 | 4.93坪 (16.29m²) | 募集終了 | - | - |
| 3階 | 17.16坪 (56.72m²) | 募集終了 | - | - |
| 3階 | 24.14坪 (79.83m²) | 募集終了 | - | - |
| 3階 | 4.93坪 (16.29m²) | 募集終了 | - | - |
| 3階 | 24.15坪 (79.83m²) | 募集終了 | - | - |
| 4階 | 4.93坪 (16.29m²) | 募集終了 | - | - |
| 4階 | 20.23坪 (66.87m²) | 募集終了 | - | - |
| 4階 | 16.3坪 (53.88m²) | 募集終了 | - | - |
| 4階 | 16.13坪 (53.32m²) | 募集終了 | - | - |
| 5階 | 20.23坪 (66.88m²) | 募集終了 | - | - |
| 5階 | 16.13坪 (53.32m²) | 募集終了 | - | - |
| 6階 | 16.13坪 (53.32m²) | 募集終了 | - | - |
| 6階 | 20.23坪 (66.87m²) | 募集終了 | - | - |
| 6階 | 17.16坪 (56.73m²) | 募集終了 | - | - |
読込中...
中村区エリアで志摩ビルに似た条件の物件
読込中...
| 取扱様態 | 仲介 |
|---|---|
| 取扱会社 | 株式会社 アットオフィス |