ガーデニア大森ビル7階の賃貸情報
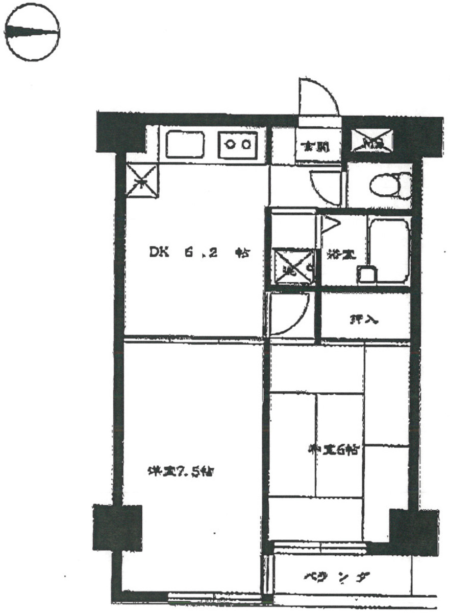
13.1 坪 (43.31m²)
※このサイトに記載がある賃貸条件は、敷金・保証金などの預かり金を除き、別途消費税がかかります。
ガーデニア大森ビルの建物概要
設備詳細
| 空調 | - |
|---|---|
| トイレ | - |
| 床仕様 | - |
| エレベータ | 1 基 / エレベーター有 |
| 駐車場設備 | - |
| その他 | 東京賃料が坪11000円以下 / 保証金・敷金+礼金が3か月以下 |
ガーデニア大森ビル7階の賃貸オフィス・事務所に関するお問い合わせ
ガーデニア大森ビルについて
ガーデニア大森ビルは、東京都品川区南大井6丁目に位置する、SOHOや事務所利用が可能なマンション型の商業施設です。このビルは、その立地や設備の点でビジネスの拠点としての利用に非常に魅力的な選択肢を提供します。以下に、ガーデニア大森ビルの特徴、立地、設備などの重要な点を簡潔にまとめ、その独自の魅力やビジネスにおける利点を強調します。 【特徴】 ガーデニア大森ビルは、SOHOや小規模オフィスの需要に応えるために設計されたマンションです。エレベーターを1機設置しており、日々の運用においてスムーズな移動を実現します。その構造は、機能性と使いやすさを考慮しており、ビジネスの効率化を支援します。 【立地】 品川区南大井6丁目に所在するこのビルは、交通の便が非常に良いことで知られています。大森駅から徒歩圏内にあり、都心へのアクセスも容易です。また、周辺には飲食店やコンビニエンスストアなどが充実しており、日々の業務に必要なものがすぐに手に入ります。このような立地条件は、ビジネスの機会を最大限に活用するうえで重要な要素となります。 【設備】 ビルには最新の設備が整っており、快適なオフィス環境が確保されています。1機のエレベーターは、ビル内の移動を効率的にします。また、セキュリティシステムが充実しており、入居者の安全を守るための措置が講じられています。これらの設備は、快適かつ安全なワークスペースを提供し、ビジネスの成長をサポートします。 【ビジネスにおける利点】 ガーデニア大森ビルは、その立地と設備の良さを活かして、様々なビジネスシーンに対応可能です。SOHOや小規模オフィスとしての利用はもちろん、クリエイティブな仕事やスタートアップ企業にとっても最適な環境を提供します。また、周辺地域の充実したインフラと併せて、ビジネスの様々なニーズに応えることができるでしょう。 ガーデニア大森ビルは、これらの特徴と利点を活かして、ビジネスの新たな拠点としての活用を期待されます。立地の良さ、充実した設備、そして快適なオフィス環境は、企業の発展と成功を後押しする要素となることでしょう。
ガーデニア大森ビルのこだわり
自分で探すより問い合わせる方が早いことがあります
WEB非公開物件があるから
オーナー様のご希望により「WEBでは非公開」にしている物件があります。 それらはWEBでいくら検索しても見つかりません。 先ずは条件などお知らせ頂けましたら非公開物件含め ピッタリのオフィスをご提案させて頂きます。 無理なお勧めはしておりませんので、お気軽にお問い合わせください。
対面でのご相談も受け付けております
ご来店も歓迎です
オフィス移転は社内・社外ともに非公開に行われることが殆どです。そのためアットオフィスでは、基本的に訪問によるコンサルティングを行っておりますが、ご来店の相談も歓迎です。お一人おひとりに親身にご対応させて頂きたい為、要予約とさせて頂いております。ご来店の際は先ずは下記よりご予約下さい。
品川/大崎/大井エリアでガーデニア大森ビルに似た条件の物件
読込中...
ガーデニア大森ビルと同じ最寄駅の物件
読込中...
| 取扱様態 | 仲介 |
|---|---|
| 取扱会社 | 株式会社 アットオフィス |