ウィンド銀座ビル2階の賃貸情報
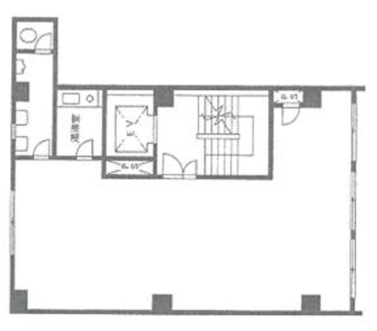
21 坪 (69.42m²)
※このサイトに記載がある賃貸条件は、敷金・保証金などの預かり金を除き、別途消費税がかかります。
ウィンド銀座ビルの建物概要
設備詳細
| 空調 | 個別空調 |
|---|---|
| トイレ | - |
| 床仕様 | - |
| エレベータ | 1 基 |
| 駐車場設備 | - |
| その他 | 光ファイバー |
ウィンド銀座ビル2階の賃貸オフィス・事務所に関するお問い合わせ
ウィンド銀座ビルについて
【ウィンド銀座ビルのご案内】 銀座4丁目に位置する洗練されたオフィスビル、「ウィンド銀座ビル」のご紹介をさせていただきます。ビジネスの中心地である銀座で、あなたの会社を次のステージへと導く最適なオフィススペースをご案内いたします。 【外観】 ウィンド銀座ビルは、2005年に全面リニューアルされた、モダンなモノクロ配色の外観が特徴です。洗練された印象を与えるこのビルは、銀座の街並みにふさわしいエレガントさを備えています。 【アクセス】 立地においては、3駅以上が利用可能な好立地にあります。交通アクセスの良さはビジネスを行う上で非常に重要な要素です。ウィンド銀座ビルは、多方面からのアクセスが可能で、営業活動やクライアントとの会合にも大変便利な立地条件を備えています。 【設備】 ビル内設備も充実しており、エレベーターは1機設置されております。また、トイレは男女別で、24時間利用可能です。働く皆様の快適性と利便性を重視した設計になっています。 【特徴】 ウィンド銀座ビルは、全面リニューアル済みで、内装も含めて新しく生まれ変わりました。オフィスとしての機能性はもちろん、デザイン性にも優れており、企業イメージの向上にも貢献します。また、24時間利用可能なので、様々なビジネススタイルに柔軟に対応できる点も、大きな魅力の一つです。 銀座という一等地で、ビジネスの成功を後押しするウィンド銀座ビル。その立地、設備、デザイン性を兼ね備えたこのビルで、新たなビジネスライフをスタートさせませんか?あなたのビジネスの可能性を広げるための最適なスペースがここにあります。ご興味のある方は、ぜひお問い合わせください。あなたからのお問い合わせを心よりお待ちしております。
ウィンド銀座ビルのこだわり
自分で探すより問い合わせる方が早いことがあります
WEB非公開物件があるから
オーナー様のご希望により「WEBでは非公開」にしている物件があります。 それらはWEBでいくら検索しても見つかりません。 先ずは条件などお知らせ頂けましたら非公開物件含め ピッタリのオフィスをご提案させて頂きます。 無理なお勧めはしておりませんので、お気軽にお問い合わせください。
対面でのご相談も受け付けております
ご来店も歓迎です
オフィス移転は社内・社外ともに非公開に行われることが殆どです。そのためアットオフィスでは、基本的に訪問によるコンサルティングを行っておりますが、ご来店の相談も歓迎です。お一人おひとりに親身にご対応させて頂きたい為、要予約とさせて頂いております。ご来店の際は先ずは下記よりご予約下さい。
銀座エリアでウィンド銀座ビルに似た条件の物件
読込中...
ウィンド銀座ビルと同じ最寄駅の物件
読込中...
| 取扱様態 | 仲介 |
|---|---|
| 取扱会社 | 株式会社 アットオフィス |