玉屋ビル3階の賃貸情報
16 坪 (52.89m²)
※このサイトに記載がある賃貸条件は、敷金・保証金などの預かり金を除き、別途消費税がかかります。
玉屋ビルの建物概要
設備詳細
| 空調 | 個別空調 |
|---|---|
| トイレ | - |
| 床仕様 | OA対応床(フリーアクセス) |
| エレベータ | 1 基 |
| 駐車場設備 | - |
| その他 | 新耐震基準 / 東京賃料が坪11000円以下 |
部屋の雰囲気
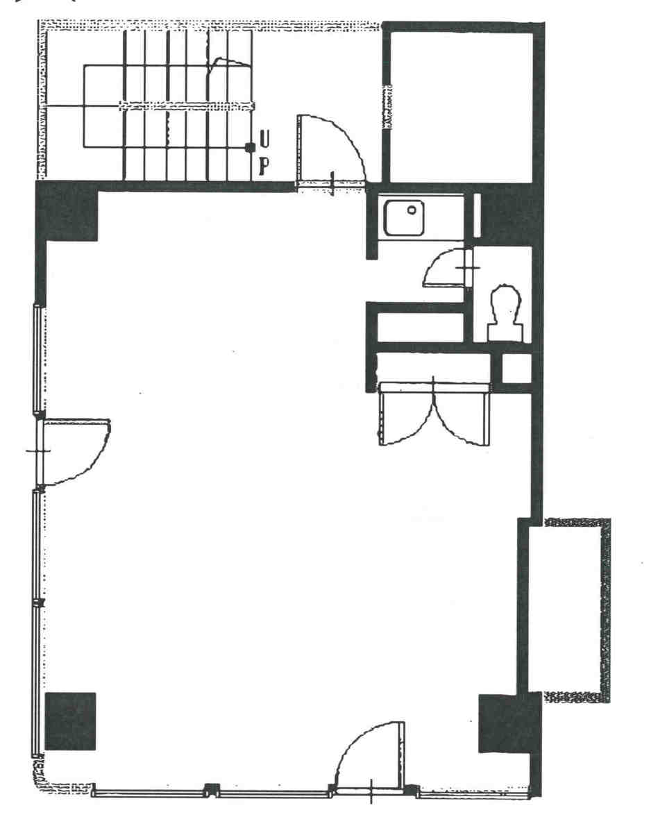
図面
玉屋ビル3階の賃貸オフィス・事務所に関するお問い合わせ
玉屋ビルについて
**玉屋ビル:文京区のビジネス拠点としての優位性** 文京区小石川1丁目に位置する「玉屋ビル」は、その立地条件と設備が魅力の一つとして際立っています。ビジネスにおける利便性を重視し、効率的なオフィス環境を求める企業にとって、理想的な選択肢となることでしょう。 **アクセスの良さ** 玉屋ビルの最も顕著な特徴の一つは、その優れたアクセス性です。東京都三田線「春日」駅から徒歩3分、東京地下鉄丸ノ内線「後楽園」駅から徒歩6分、そして東京都大江戸線「春日」駅から徒歩4分という、複数の主要交通機関への近接性がビジネスの機動力を高めます。これにより、通勤の利便性が向上し、ビジネスパートナーやクライアントとのアクセスもスムーズに行うことが可能です。 **設備と環境** 玉屋ビルは、1基のエレベーターを備えており、各階への移動が迅速かつ円滑に行える設計となっています。エレベーターの適切な配置は、社員間のコミュニケーションや業務効率の向上に寄与します。また、ビル全体が清潔かつ整然とした環境を保っており、働く人々に快適なオフィス空間を提供します。 **ビジネスにおける利点** ビジネス環境としての玉屋ビルの利点は、その立地と設備に留まりません。文京区という地域自体が、教育機関や研究施設が多く集まる知的環境であり、新しいビジネスアイディアやコラボレーションの可能性を広げる場としても魅力的です。さらに、小石川エリアの閑静な街並みは、落ち着いた業務環境を求める企業にとって大きなメリットとなります。 **まとめ** 「玉屋ビル」は、その立地条件と設備、そして周辺環境が一体となり、ビジネスの拠点としての高い価値を提供します。アクセスの良さと快適なオフィス環境が整っている点から、様々なビジネスニーズに対応できる柔軟性も備えています。文京区小石川1丁目に位置するこのビルは、企業の成長と成功を支える確固たる基盤となることでしょう。
自分で探すより問い合わせる方が早いことがあります
WEB非公開物件があるから
オーナー様のご希望により「WEBでは非公開」にしている物件があります。 それらはWEBでいくら検索しても見つかりません。 先ずは条件などお知らせ頂けましたら非公開物件含め ピッタリのオフィスをご提案させて頂きます。 無理なお勧めはしておりませんので、お気軽にお問い合わせください。
対面でのご相談も受け付けております
ご来店も歓迎です
オフィス移転は社内・社外ともに非公開に行われることが殆どです。そのためアットオフィスでは、基本的に訪問によるコンサルティングを行っておりますが、ご来店の相談も歓迎です。お一人おひとりに親身にご対応させて頂きたい為、要予約とさせて頂いております。ご来店の際は先ずは下記よりご予約下さい。
湯島/本郷/後楽園エリアで玉屋ビルに似た条件の物件
読込中...
玉屋ビルと同じ最寄駅の物件
読込中...
| 取扱様態 | 仲介 |
|---|---|
| 取扱会社 | 株式会社 アットオフィス |