※このサイトに記載がある賃貸条件は、敷金・保証金などの預かり金を除き、別途消費税がかかります。
お電話でもお気軽にお問い合わせください
物件情報
設備詳細
| 空調 | - |
|---|---|
| トイレ | - |
| 床仕様 | - |
| エレベータ | 1 基 |
| 駐車場設備 | 空有 |
| その他 | 機械警備 / 24時間利用可 / デザイナーズ / 光ファイバー / 新耐震基準 |
FEELA渋谷ビルは、東京都渋谷区円山町に位置する、新耐震基準に適合したSOHOおよび事務所利用に対応するマンションです。本物件は、2004年に竣工され、現代の建築技術に基づく安全性と機能性を兼ね備えた設計が施されています。ここでは、その特徴や立地、設備などについて詳しくご紹介します。 【特徴】 FEELA渋谷ビルは、新耐震基準に準拠した施工がなされているため、地震発生時のリスク低減に優れた安全性を提供します。また、SOHOや事務所利用が可能であることから、様々な業種の企業やフリーランサーにとって、柔軟に対応可能な働く環境を提供しています。 【立地】 円山町は、渋谷区の中心に位置し、渋谷駅から徒歩圏内という抜群のアクセスを誇ります。この立地は、ビジネスチャンスを広げたい企業や、クリエイティブな環境を求める個人にとって、最適な条件を提供します。渋谷は、多様な産業が集まる商業地であり、新たな出会いや情報交換の場としても理想的です。 【設備】 ビル内には1機のエレベーターが設置されており、スムーズな移動を支援します。また、ビル内駐車場があり、空き状況に応じて利用者に提供されます。渋谷という立地特性上、車での移動が必要な業務もスムーズに行える利点があります。 【独自の魅力】 FEELA渋谷ビルは、モダンなデザインと機能性を兼ね備え、ビジネスの多様なニーズに対応できるよう設計されています。渋谷というダイナミックなビジネス環境の中心に位置しながら、新耐震基準に対応した堅牢な建物は、テナントにとっての安心と信頼の象徴です。SOHOや事務所利用が可能でありながら、必要に応じて車でのアクセスも考慮された設備は、ビジネスの柔軟性と効率性を高める要素として大きな魅力です。 【ビジネスにおける利点】 このビルは、渋谷という国内外から注目されるエリアに所在しており、企業や個人がビジネスを展開する上で大きなアドバンテージを提供します。アクセスの良さは、顧客やパートナーとの面談、ミーティングの機会を増やし、ビジネスの可能性を広げる要因となります。また、安全性や機能性を考慮した設計は、長期的なビジネス展開を見据えた安心の基盤を提供します。 FEELA渋谷ビルは、渋谷というビジネスの中心地にありながら、安全性や機能性、そして柔軟な働き方を支援する環境を備えています。これらの特性は、ビジネスの成功と成長を目指す企業や個人にとって、最適な条件と言えるでしょう。
募集終了のテナント区画
| 階数 | 坪数 | 賃料 + 共益費 | 敷金/礼金敷金 礼金 | 検討 |
|---|---|---|---|---|
| 1階 | 36.44坪 (120.46m²) | 募集終了 | - | - |
| 1階 | 35.82坪 (118.41m²) | 募集終了 | - | - |
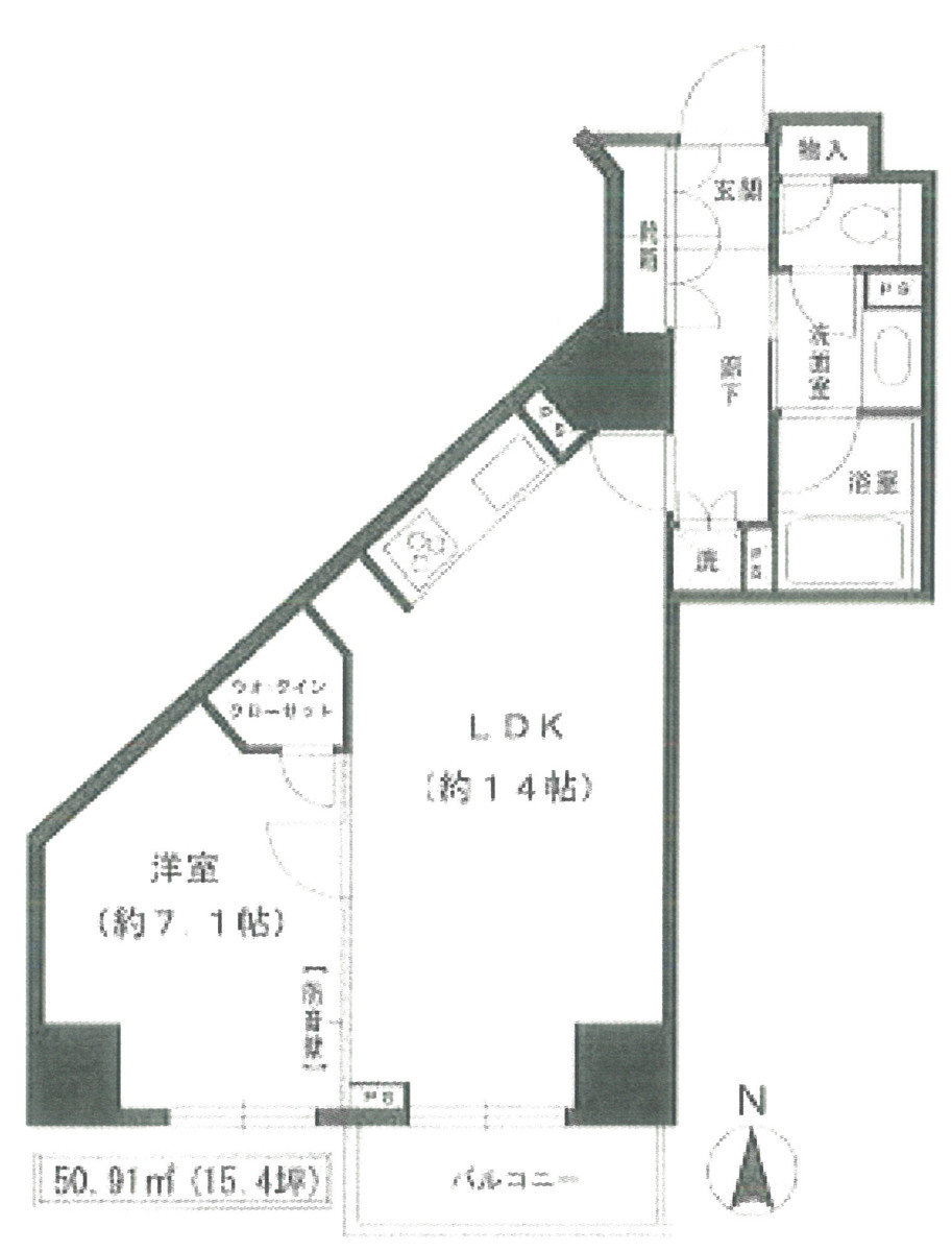
| 5階 | 15.4坪 (50.91m²) | 募集終了 | - | - |
| 8階 | 9.69坪 (32.02m²) | 募集終了 | - | - |
| 8階 | 15.4坪 (50.91m²) | 募集終了 | - | - |
| 9階 | 12.62坪 (41.75m²) | 募集終了 | - | - |
| 13階 | 13.41坪 (44.35m²) | 募集終了 | - | - |
| 14階 | 11.95坪 (39.5m²) | 募集終了 | - | - |
WEB非公開物件がございます
オーナー様ご希望によるWEB非公開の物件もございます。先ずは条件などお知らせ頂けましたら、非公開物件含めピッタリのオフィスをご提案させて頂きます。具体的な物件がお決まりでない場合でも問題ございません。無理なお勧めはしておりませんので、お気軽にお問い合わせください。
ご来店も歓迎です
オフィス移転は社内・社外ともに非公開に行われることが殆どです。そのためアットオフィスでは、基本的に訪問によるコンサルティングを行っておりますが、ご来店の相談も歓迎です。
※お一人おひとりに親身にご対応させて頂きたい為、要予約とさせて頂いております。ご来店の際は先ずは上記よりご予約下さい。
読込中...
渋谷エリアでFeelA渋谷に似た条件の物件
読込中...