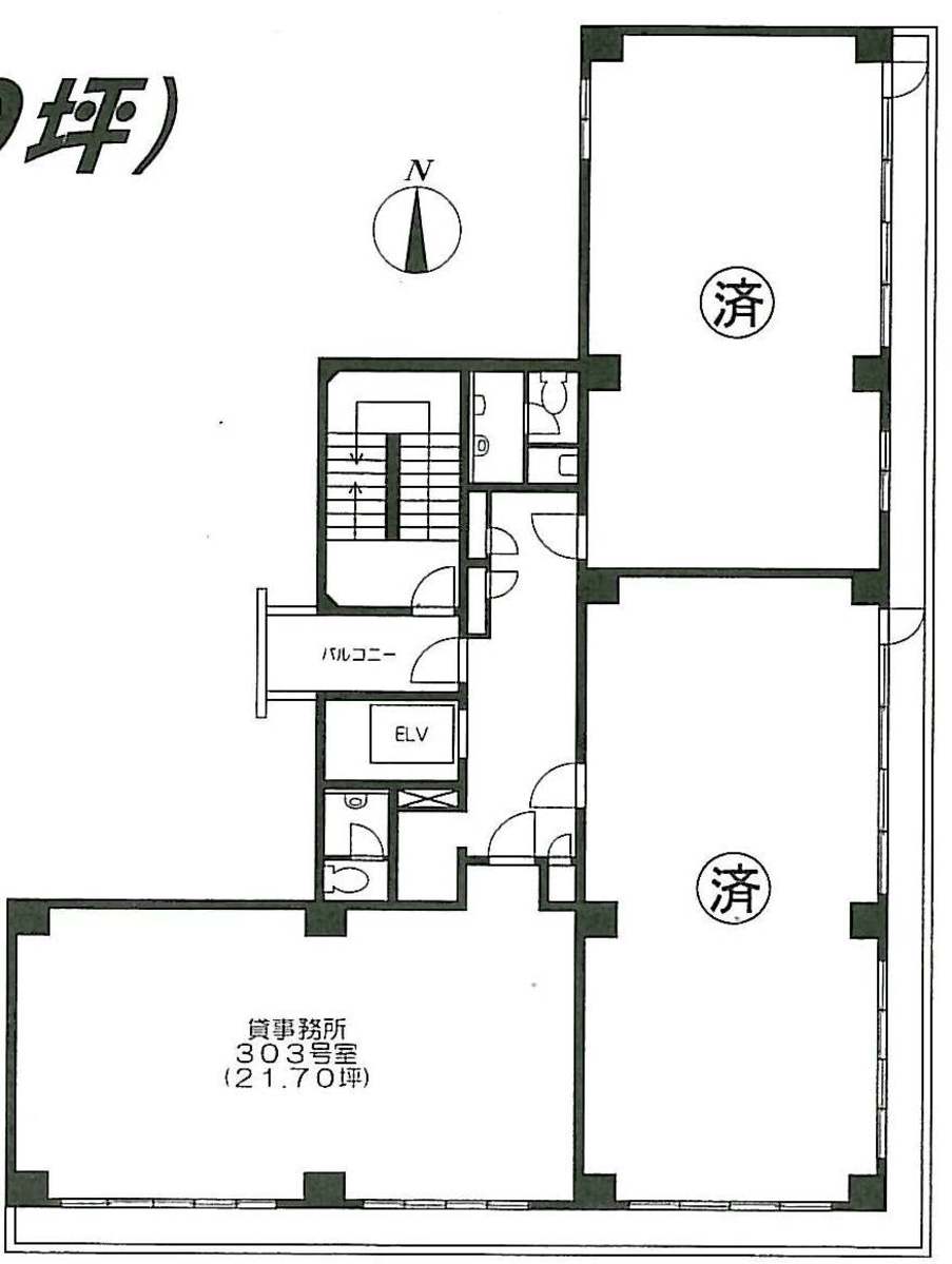
浅草橋ハイツ3階の賃貸情報
21.7 坪 (71.74m²)
※このサイトに記載がある賃貸条件は、敷金・保証金などの預かり金を除き、別途消費税がかかります。
浅草橋ハイツの建物概要
設備詳細
| 空調 | 個別空調 |
|---|---|
| トイレ | - |
| 床仕様 | - |
| エレベータ | 1 基 |
| 駐車場設備 | - |
| その他 | 東京賃料が坪11000円以下 |
浅草橋ハイツ3階の賃貸オフィス・事務所に関するお問い合わせ
浅草橋ハイツについて
浅草橋ハイツビルは、東京都台東区浅草橋5丁目に位置する、SOHOおよび事務所利用が相談可能なマンションであり、その立地と設備がビジネスの世界において大きな利点を提供します。このビルは、都心へのアクセスが非常に良好でありながら、落ち着いた環境を提供する点が特に魅力です。 まず、立地についてですが、浅草橋ハイツビルは東京の中心部に近く、JR線・都営地下鉄の浅草橋駅から徒歩数分の位置にあります。これにより、東京都内はもちろん、周辺地域へのアクセスも容易で、ビジネスの機会を広げる上で非常に便利な立地と言えるでしょう。また、近隣にはレストランやカフェ、コンビニエンスストアなどが充実しており、ビジネス利用に必要なサービスが身近に揃っています。 ビル自体の特徴としては、SOHOや事務所としての利用が相談可能である点が挙げられます。これは、フレキシブルな働き方を求める現代のビジネスパーソンにとって大きなメリットとなります。個人事業主からスタートアップ企業、さらには既存ビジネスの拡張を考える企業にとっても、浅草橋ハイツビルは魅力的な選択肢となるでしょう。 設備面では、ビル内にはエレベーターが1機設置されており、日々の業務での利便性をサポートします。また、ビルの保守・管理体制も整っており、入居者が安心して業務に専念できる環境が提供されています。 浅草橋ハイツビルは、その立地の良さ、SOHOや事務所利用の柔軟性、充実した設備と管理体制により、ビジネスの拠点として非常に魅力的な選択肢と言えるでしょう。東京都心でビジネスを展開したい企業や、新しい働き方を模索する個人事業主にとって、このビルは理想的な環境を提供します。
浅草橋ハイツのこだわり
自分で探すより問い合わせる方が早いことがあります
WEB非公開物件があるから
オーナー様のご希望により「WEBでは非公開」にしている物件があります。 それらはWEBでいくら検索しても見つかりません。 先ずは条件などお知らせ頂けましたら非公開物件含め ピッタリのオフィスをご提案させて頂きます。 無理なお勧めはしておりませんので、お気軽にお問い合わせください。
対面でのご相談も受け付けております
ご来店も歓迎です
オフィス移転は社内・社外ともに非公開に行われることが殆どです。そのためアットオフィスでは、基本的に訪問によるコンサルティングを行っておりますが、ご来店の相談も歓迎です。お一人おひとりに親身にご対応させて頂きたい為、要予約とさせて頂いております。ご来店の際は先ずは下記よりご予約下さい。
浅草橋/蔵前/浅草エリアで浅草橋ハイツに似た条件の物件
読込中...
浅草橋ハイツと同じ最寄駅の物件
読込中...
| 取扱様態 | 仲介 |
|---|---|
| 取扱会社 | 株式会社 アットオフィス |