※このサイトに記載がある賃貸条件は、敷金・保証金などの預かり金を除き、別途消費税がかかります。
お電話でもお気軽にお問い合わせください
物件情報
設備詳細
| 空調 | - |
|---|---|
| トイレ | - |
| 床仕様 | - |
| エレベータ | 2 基 |
| 駐車場設備 | 空有 |
| その他 | 機械警備 / 光ファイバー / 新耐震基準 |
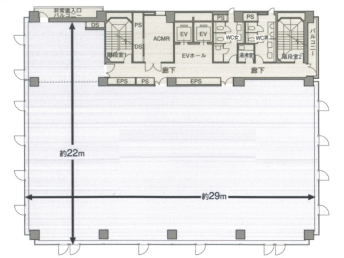
大崎CNビルは、1992年に竣工し、2020年にはリニューアル工事が施された品川区大崎5丁目に位置する賃貸オフィスビルです。このビルは、最新の耐震基準に則って建設された8階建ての建物で、2基のエレベーターが設置されています。さらに、機械警備システムによるセキュリティ対策も整っており、入居企業の安全を確保しています。 立地においては、大崎CNビルは大崎駅から徒歩3分というアクセスの良さを誇ります。また、大崎広小路駅や五反田駅も徒歩圏内にあり、周辺にはコンビニエンスストアや薬局などの生活便利施設が充実しています。この立地は、ビジネスの機会を広げるための絶好の条件を提供しております。 オフィススペースに関しては、基準階約160坪の広々とした貸室があります。天井高は2500mmとゆとりがあり、空調は個別に管理が可能です。床はOAフロア仕様で、オフィスのレイアウト変更も容易に対応できる柔軟性を持っています。これにより、入居企業は自社のニーズに合わせたオフィス環境を構築することが可能です。 リニューアル工事によって、エントランスや共用部分のデザインが現代的に改善され、ビルの魅力が一層引き立てられました。これにより、訪れる人々に良い第一印象を与えることができます。 大崎CNビルは、アクセスの良さ、快適なオフィス環境、セキュリティの充実という三つの大きな特徴を持っています。これらの特徴は、企業がビジネスを展開する上で非常に重要な要素です。大崎CNビルは、これらの条件を満たすことにより、入居企業が活力あるビジネスを行うための最適な環境を提供しています。品川区大崎というビジネス街の中心に位置するこのビルは、企業の成長をサポートする理想的な場所であると言えるでしょう。
募集終了のテナント区画
| 階数 | 坪数 | 賃料 + 共益費 | 敷金/礼金敷金 礼金 | 検討 |
|---|---|---|---|---|
| 1階 | 143.51坪 (475.24m²) | 募集終了 | - | - |
| 2階 | 146.51坪 (484.33m²) | 募集終了 | - | - |
| 3階 | 160.52坪 (530.64m²) | 募集終了 | - | - |
| 4階 | 160.52坪 (530.67m²) | 募集終了 | - | - |
| 5階 | 160.52坪 (530.67m²) | 募集終了 | - | - |
| 6階 | 160.56坪 (530.77m²) | 募集終了 | - | - |
| 6階 | 87.51坪 (289.29m²) | 募集終了 | - | - |
| 7階 | 160.82坪 (531.64m²) | 募集終了 | - | - |
| 8階 | 160.56坪 (530.8m²) | 募集終了 | - | - |
WEB非公開物件がございます
オーナー様ご希望によるWEB非公開の物件もございます。先ずは条件などお知らせ頂けましたら、非公開物件含めピッタリのオフィスをご提案させて頂きます。具体的な物件がお決まりでない場合でも問題ございません。無理なお勧めはしておりませんので、お気軽にお問い合わせください。
ご来店も歓迎です
オフィス移転は社内・社外ともに非公開に行われることが殆どです。そのためアットオフィスでは、基本的に訪問によるコンサルティングを行っておりますが、ご来店の相談も歓迎です。
※お一人おひとりに親身にご対応させて頂きたい為、要予約とさせて頂いております。ご来店の際は先ずは上記よりご予約下さい。
読込中...
品川/大崎/大井エリアで大崎CNビルに似た条件の物件
読込中...