池袋山口ビル1階の賃貸情報
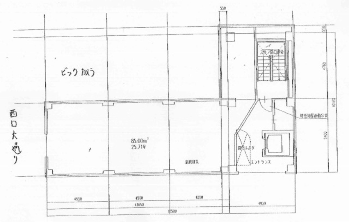
25.09 坪 (82.94m²)
※このサイトに記載がある賃貸条件は、敷金・保証金などの預かり金を除き、別途消費税がかかります。
池袋山口ビルの建物概要
設備詳細
| 空調 | - |
|---|---|
| トイレ | - |
| 床仕様 | - |
| エレベータ | 1 基 |
| 駐車場設備 | - |
| その他 | 新耐震基準 / クリニック / スケルトン / 1階の物件 |
池袋山口ビル1階の賃貸オフィス・事務所に関するお問い合わせ
池袋山口ビルについて
池袋山口ビルのご紹介 池袋山口ビルは、東京都豊島区西池袋1丁目に位置するオフィス賃貸ビルです。このビルは、ビジネスの中心地である池袋エリアに位置し、交通の便が非常に優れています。最寄り駅であるJR山手線「池袋」駅および東京地下鉄丸ノ内線「池袋」駅から徒歩わずか4分という、アクセスの良さが大きな魅力です。 建物の設備について言及すると、池袋山口ビルは新耐震基準を満たしており、安全性に配慮された設計となっています。ビル内にはエレベーターが1機設置されており、ビル内での移動も快適です。耐震基準を満たすことで、地震の多い日本において安心して業務を行うことができます。 立地面では、池袋山口ビルは多くの商業施設、レストラン、カフェ、銀行などが集まるエリアに位置しており、従業員や来客にとって非常に便利です。ビジネスの中心地にありながら、徒歩圏内にリフレッシュスポットやショッピングエリアが豊富にあるため、働く人々にとっても魅力的な環境です。 さらに、池袋駅は複数の鉄道路線が交差する重要なハブステーションであり、都市内外の移動が非常に便利です。山手線、丸ノ内線の他にも、埼京線や湘南新宿ラインなども利用可能で、ビジネスの幅広いニーズに対応できます。これにより、ビジネスパートナーやクライアントとのアクセスも容易になり、効率的なビジネス展開が期待できます。 池袋山口ビルのもう一つの魅力は、その周辺環境の充実度です。池袋エリアは東京都内でも特に商業活動が盛んな地域で、ビジネスに必要なあらゆるサービスが揃っています。また、豊島区は文化・芸術活動も盛んで、多くの劇場や美術館が点在しています。これにより、ビジネスの合間に気軽に文化的な刺激を得ることができます。 結論として、池袋山口ビルはその優れた立地条件、新耐震基準を満たす安全性、利便性の高い周辺環境といった点で非常に優れたオフィス賃貸ビルです。ビジネスを展開するうえで必要な要素が揃っており、効率的かつ快適な業務環境を提供します。ビジネスの成功を目指す方々にとって、池袋山口ビルは理想的なオフィススペースと言えるでしょう。
自分で探すより問い合わせる方が早いことがあります
WEB非公開物件があるから
オーナー様のご希望により「WEBでは非公開」にしている物件があります。 それらはWEBでいくら検索しても見つかりません。 先ずは条件などお知らせ頂けましたら非公開物件含め ピッタリのオフィスをご提案させて頂きます。 無理なお勧めはしておりませんので、お気軽にお問い合わせください。
対面でのご相談も受け付けております
ご来店も歓迎です
オフィス移転は社内・社外ともに非公開に行われることが殆どです。そのためアットオフィスでは、基本的に訪問によるコンサルティングを行っておりますが、ご来店の相談も歓迎です。お一人おひとりに親身にご対応させて頂きたい為、要予約とさせて頂いております。ご来店の際は先ずは下記よりご予約下さい。
池袋/大塚/目白エリアで池袋山口ビルに似た条件の物件
読込中...
池袋山口ビルと同じ最寄駅の物件
読込中...
| 取扱様態 | 仲介 |
|---|---|
| 取扱会社 | 株式会社 アットオフィス |