※このサイトに記載がある賃貸条件は、敷金・保証金などの預かり金を除き、別途消費税がかかります。
お電話でもお気軽にお問い合わせください
物件情報
設備詳細
| 空調 | - |
|---|---|
| トイレ | - |
| 床仕様 | - |
| エレベータ | 4 基 |
| 駐車場設備 | - |
| その他 | 機械警備 / 24時間利用可 / 大型ビル / 管理人常駐 |
アクセスマップ
五反田駅からわずか徒歩1分、ビジネスの中心地に立地する「電波ビル」をご紹介します。このビルの最大の魅力は、まずそのアクセスの良さにあります。五反田駅に加え、大崎広小路駅や高輪台駅へも徒歩圏内で、都内各所への移動が非常に便利です。ビジネスチャンスを追求する上で、この立地は計り知れない価値を持ちます。 また、1985年に竣工された電波ビルは、地下2階、地上9階建ての大型オフィスビルです。延床面積は4,906坪にも及び、基準階は約238坪あります。天井高は2550㎜で、床はOAフロアを採用しており、快適なオフィス環境を提供します。男女別のトイレ設備やセントラル空調、白を基調としたシンプルなオフィス空間が、働く皆様の創造性と生産性を高めます。 セキュリティ面では、機械警備と常駐の管理人による併用警備を導入。24時間体制でビルの安全を守り、入居者の安心感を確保しています。また、建物内には駐車場があり、利便性をさらに高めています(空き状況についてはお問い合わせください)。 ビルの外観はダークトーンで重厚感があり、エレベーターは4機備え付けられています。1階には横浜銀行五反田駅前支店が入居し、さらに近隣にはコンビニや飲食店が豊富にあり、ビルの利便性を高めています。桜田通りに面しており、時間貸し駐車場も併設されているため、訪問者の利用にも非常に便利です。 このように、「電波ビル」は、その立地の良さ、高い利便性、快適なオフィス環境、充実したセキュリティ、そしてビジネスの効率性を高めるさまざまな設備が整っており、企業の成長を支える理想的なオフィススペースと言えるでしょう。あなたのビジネスを次のレベルへと導く「電波ビル」で、新たな一歩を踏み出してみませんか?
募集終了のテナント区画
| 階数 | 坪数 | 賃料 + 共益費 | 敷金/礼金敷金 礼金 | 検討 |
|---|---|---|---|---|
| B1階 | 156.57坪 (517.59m²) | 募集終了 | - | - |
| B1階 | 138.36坪 (457.39m²) | 募集終了 | - | - |
| B1階 | 35.01坪 (115.74m²) | 募集終了 | - | - |
| B1階 | 36.78坪 (121.59m²) | 募集終了 | - | - |
| B1階 | 19.31坪 (63.83m²) | 募集終了 | - | - |
| 1階 | 97.2坪 (321.32m²) | 募集終了 | - | - |
| 1階 | 55.72坪 (184.2m²) | 募集終了 | - | - |
| 1階 | 40.07坪 (132.46m²) | 募集終了 | - | - |
| 3階 | 140.36坪 (621.49m²) | 募集終了 | - | - |
| 3階 | 75.87坪 (250.81m²) | 募集終了 | - | - |
| 3階 | 72.64坪 (240.13m²) | 募集終了 | - | - |
| 3階 | 19.53坪 (64.56m²) | 募集終了 | - | - |
| 4階 | 238.67坪 (788.99m²) | 募集終了 | - | - |
| 4階 | 77.27坪 (255.44m²) | 募集終了 | - | - |
| 4階 | 95.95坪 (317.15m²) | 募集終了 | - | - |
| 4階 | 142.6坪 (471.4m²) | 募集終了 | - | - |
| 4階 | 19.59坪 (64.76m²) | 募集終了 | - | - |
| 5階 | 378.68坪 (1251.83m²) | 募集終了 | - | - |
| 6階 | 159.96坪 (528.79m²) | 募集終了 | - | - |
| 6階 | 77坪 (63m²) | 募集終了 | - | - |
| 7階 | 226.64坪 (749.22m²) | 募集終了 | - | - |
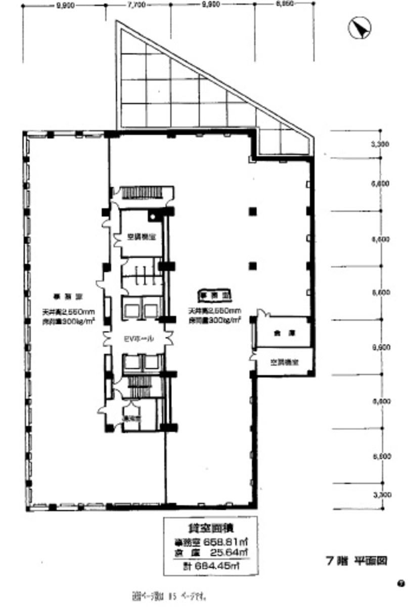
| 7階 | 207.05坪 (684.46m²) | 募集終了 | - | - |
WEB非公開物件がございます
オーナー様ご希望によるWEB非公開の物件もございます。先ずは条件などお知らせ頂けましたら、非公開物件含めピッタリのオフィスをご提案させて頂きます。具体的な物件がお決まりでない場合でも問題ございません。無理なお勧めはしておりませんので、お気軽にお問い合わせください。
ご来店も歓迎です
オフィス移転は社内・社外ともに非公開に行われることが殆どです。そのためアットオフィスでは、基本的に訪問によるコンサルティングを行っておりますが、ご来店の相談も歓迎です。
※お一人おひとりに親身にご対応させて頂きたい為、要予約とさせて頂いております。ご来店の際は先ずは上記よりご予約下さい。
読込中...
五反田エリアで電波ビルに似た条件の物件
読込中...