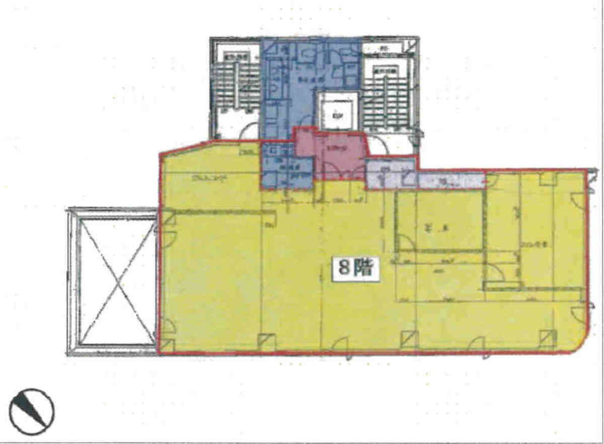
エクシズビル8階の賃貸情報
52.63 坪 (173.99m²)
※このサイトに記載がある賃貸条件は、敷金・保証金などの預かり金を除き、別途消費税がかかります。
エクシズビルの建物概要
設備詳細
| 空調 | - |
|---|---|
| トイレ | - |
| 床仕様 | - |
| エレベータ | 1 基 |
| 駐車場設備 | 空有 |
| その他 | 機械警備 / 光ファイバー / 新耐震基準 |
エクシズビル8階の賃貸オフィス・事務所に関するお問い合わせ
エクシズビルについて
エクシズビルは、東京都品川区東大井5丁目に位置する、1993年に竣工した賃貸オフィスビルです。この物件は、新耐震基準に適合した構造で建設され、9階建ての建物として、安全性と快適性を兼ね備えることを目指しています。基準階約47坪の広さを誇り、各フロアは長方形の間取りで設計されており、自然光がたっぷりと入ることで明るく快適なオフィス環境を提供します。 立地においては、エクシズビルは大井町駅から徒歩4分という利便性の高い位置にあります。JR京浜東北線をはじめ、りんかい線、東急大井町線が乗り入れるこの駅は、都心へのアクセスはもちろん、横浜方面へもスムーズに移動できることから、ビジネスの拠点として理想的な立地と言えるでしょう。また、鮫洲駅や青物横丁駅も徒歩圏内にあり、複数路線の利用が可能です。 設備面では、エクシズビルは1基のエレベーターを備え、ビル内に駐車場を設置しています。駐車場の有無はビジネスにとって非常に重要な要素であり、特に訪問客が多い業種にとっては大きなメリットとなるでしょう。また、セキュリティシステムには機械警備が導入されており、テナントは24時間利用が可能です。これにより、セキュリティを確保しつつ、柔軟な働き方をサポートします。 エクシズビルの外観は、グレーのタイル張りで、スタイリッシュかつプロフェッショナルな印象を与えます。窓が多く設けられており、外からの自然光が内部にしっかりと入る設計になっています。また、周囲にはマンションや住宅が立ち並ぶ穏やかなエリアでありながら、コンビニや郵便局、飲食店などが徒歩圏内にあり、日々の業務に必要なサービスや施設へのアクセスも良好です。 総じて、エクシズビルはその立地の良さ、充実した設備、安全性の高さを併せ持つ賃貸オフィスビルです。ビジネスの拠点として、または新たな事業展開の場として、多くの企業にとって魅力的な選択肢となるでしょう。
エクシズビルのこだわり
自分で探すより問い合わせる方が早いことがあります
WEB非公開物件があるから
オーナー様のご希望により「WEBでは非公開」にしている物件があります。 それらはWEBでいくら検索しても見つかりません。 先ずは条件などお知らせ頂けましたら非公開物件含め ピッタリのオフィスをご提案させて頂きます。 無理なお勧めはしておりませんので、お気軽にお問い合わせください。
対面でのご相談も受け付けております
ご来店も歓迎です
オフィス移転は社内・社外ともに非公開に行われることが殆どです。そのためアットオフィスでは、基本的に訪問によるコンサルティングを行っておりますが、ご来店の相談も歓迎です。お一人おひとりに親身にご対応させて頂きたい為、要予約とさせて頂いております。ご来店の際は先ずは下記よりご予約下さい。
品川/大崎/大井エリアでエクシズビルに似た条件の物件
読込中...
エクシズビルと同じ最寄駅の物件
読込中...
| 取扱様態 | 仲介 |
|---|---|
| 取扱会社 | 株式会社 アットオフィス |