銀座2112ビル2階の賃貸情報
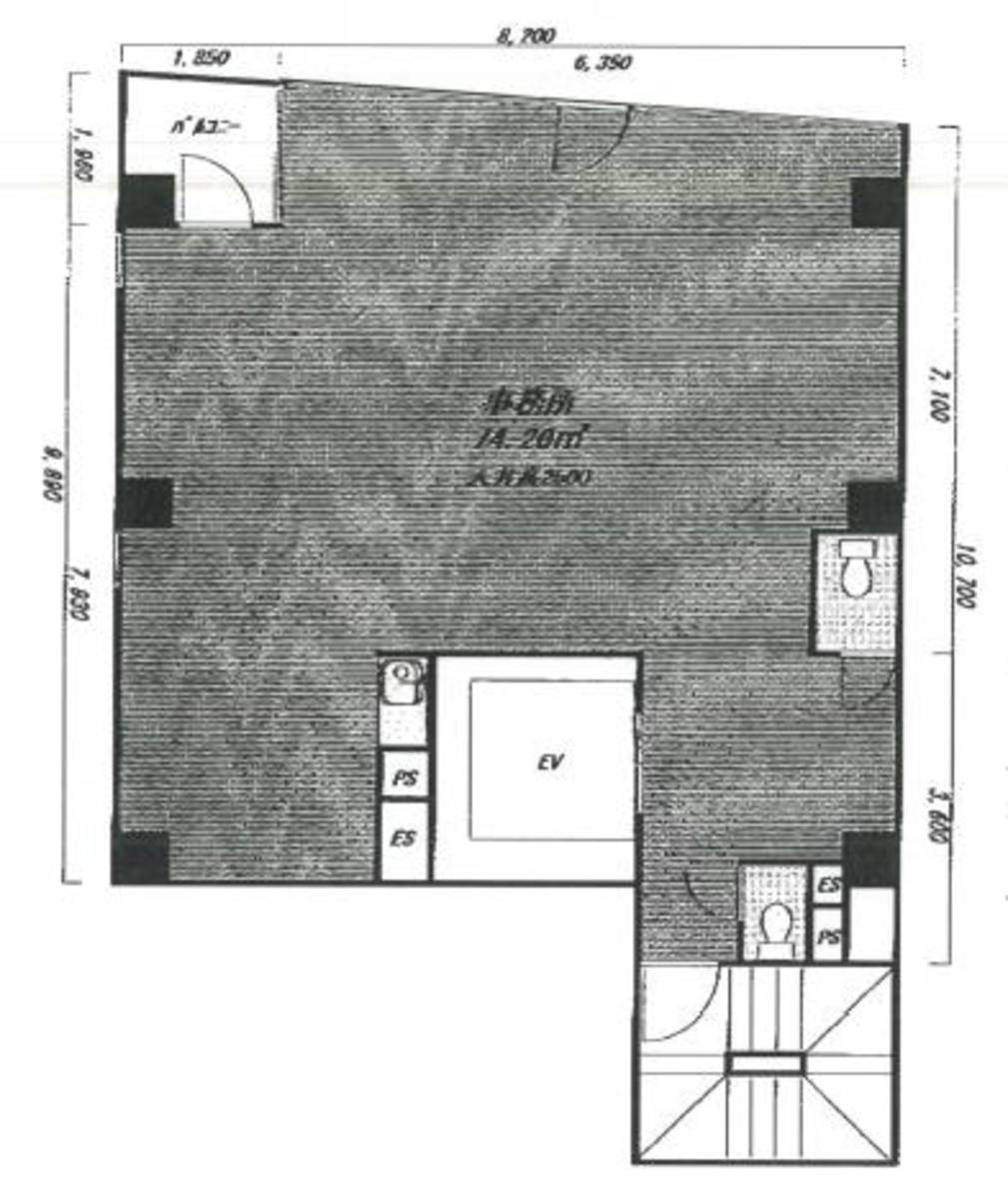
22.5 坪 (74.2m²)
※このサイトに記載がある賃貸条件は、敷金・保証金などの預かり金を除き、別途消費税がかかります。
銀座2112ビルの建物概要
設備詳細
| 空調 | 個別空調 |
|---|---|
| トイレ | - |
| 床仕様 | - |
| エレベータ | 1 基 |
| 駐車場設備 | - |
| その他 | クリニック |
銀座2112ビルについて
東京都中央区銀座、日本を代表するビジネスとファッションの中心地に位置する銀座2112ビルは、2008年に竣工した築浅のオフィスビルです。11階建てのこの物件は、銀座一丁目駅からわずか徒歩1分という抜群の立地に加え、宝町駅、有楽町駅、銀座駅といった複数の駅が徒歩10分圏内にあり、都心へのアクセスの良さはビジネスを展開する上で格別の利便性を提供します。 外観はモダンなガラス張りで、銀座柳通り沿いに面しているため、視認性も高く、企業のブランドイメージを向上させます。さらに、全体を白で統一した色調は、洗練された雰囲気を演出しており、ビジネスシーンにおける格調高い印象を与えることでしょう。 ビル内の設備も充実しており、1基設置されたエレベーターはスムーズな移動を約束します。各オフィスには、個別空調システムを採用しており、快適な職場環境を実現。また、基準階坪数は20坪強となっており、前面ガラス張りで自然光が豊富に入ることで、開放感あふれるオフィス空間を提供します。水回りも室内に設けられており、ビジネスの効率を高める細やかな配慮が施されています。 周辺環境も魅力的で、松屋銀座や銀座三越などの代表的な商業施設が立ち並び、アフター5のショッピングや接待にも便利です。また、複数の飲食店やコンビニが近くにあり、日々のビジネスライフをサポートします。 銀座2112ビルは、その立地の良さ、モダンで洗練されたデザイン、充実した設備を兼ね備えたビルとして、ビジネスの成功を後押しする最適な環境を提供します。ビジネスの拠点としての魅力はもちろん、アクセスの良さや周辺環境の充実も含め、多方面から企業価値を高めることができるでしょう。銀座2112ビルで、新たなビジネスの舞台をご検討ください。
銀座2112ビルのこだわり
自分で探すより問い合わせる方が早いことがあります
WEB非公開物件があるから
オーナー様のご希望により「WEBでは非公開」にしている物件があります。 それらはWEBでいくら検索しても見つかりません。 先ずは条件などお知らせ頂けましたら非公開物件含め ピッタリのオフィスをご提案させて頂きます。 無理なお勧めはしておりませんので、お気軽にお問い合わせください。
対面でのご相談も受け付けております
ご来店も歓迎です
オフィス移転は社内・社外ともに非公開に行われることが殆どです。そのためアットオフィスでは、基本的に訪問によるコンサルティングを行っておりますが、ご来店の相談も歓迎です。お一人おひとりに親身にご対応させて頂きたい為、要予約とさせて頂いております。ご来店の際は先ずは下記よりご予約下さい。
銀座エリアで銀座2112ビルに似た条件の物件
読込中...
銀座2112ビルと同じ最寄駅の物件
読込中...
| 取扱様態 | 仲介 |
|---|---|
| 取扱会社 | 株式会社 アットオフィス |