※このサイトに記載がある賃貸条件は、敷金・保証金などの預かり金を除き、別途消費税がかかります。
物件情報
設備詳細
| 空調 | 個別空調 |
|---|---|
| トイレ | 男女別トイレ室内 |
| 床仕様 | - |
| エレベータ | 1 基 |
| 駐車場設備 | 空有 |
| その他 | オートロック / 24時間利用可 / 機械警備 / 新耐震基準 / 店舗可(飲食不可) / クリニック / 居抜き / オフィス居抜き特集 |
日月光ビルの賃貸オフィス・事務所に関するお問い合わせ
日月光ビルについて
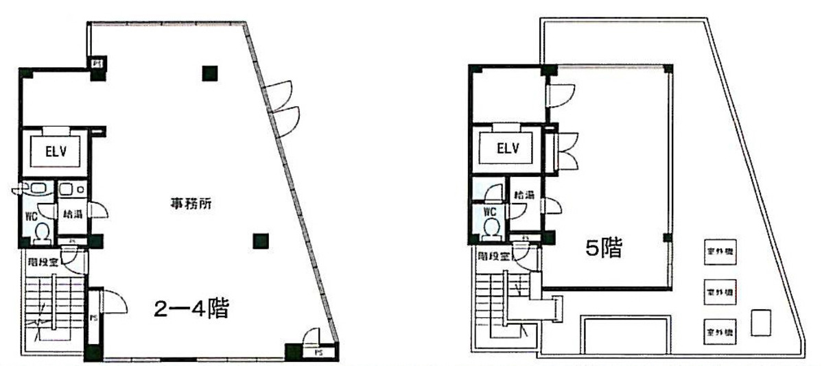
日月光ビルは、ビジネスの様々なニーズに応える賃貸オフィス物件として、渋谷区代々木に位置します。 【日月光ビル】 日月光ビルは、1991年に竣工された、渋谷区代々木に位置する5階建ての賃貸オフィスビルです。基準階約27坪のフロアサイズを持ち、各フロアは効率的なオフィスレイアウトが可能です。ビルには1基のエレベーターがあり、駐車場は平面式で、自動車を利用する従業員や訪問者にとって便利です。建物は鉄筋コンクリート造で、オートロック機能付きで安全性が高いことも特長です。最寄り駅は南新宿駅であり、代々木駅、参宮橋駅、新宿駅へのアクセスも容易です。周辺は住宅地が多く、静かで落ち着いた勤務環境を提供します。徒歩圏内にスーパーやコンビニ、カフェがあり、日常の便利さも抜群です。日月光ビルは、アクセスの良さと快適なオフィス環境を求める中小企業に適した物件です。 日月光ビルは、渋谷区代々木という絶好の立地にありながら、それぞれ異なる特色とビジネスニーズに対応する機能性を備えています。企業が成長し繁栄するための基盤を提供し、働く人々にとって快適で生産的な環境を実現します。
日月光ビルのこだわり
自分で探すより問い合わせる方が早いことがあります
WEB非公開物件があるから
オーナー様のご希望により「WEBでは非公開」にしている物件があります。 それらはWEBでいくら検索しても見つかりません。 先ずは条件などお知らせ頂けましたら非公開物件含め ピッタリのオフィスをご提案させて頂きます。 無理なお勧めはしておりませんので、お気軽にお問い合わせください。
対面でのご相談も受け付けております
ご来店も歓迎です
オフィス移転は社内・社外ともに非公開に行われることが殆どです。そのためアットオフィスでは、基本的に訪問によるコンサルティングを行っておりますが、ご来店の相談も歓迎です。お一人おひとりに親身にご対応させて頂きたい為、要予約とさせて頂いております。ご来店の際は先ずは下記よりご予約下さい。
募集終了のテナント区画
| 階数 | 坪数 | 賃料 + 共益費 | 敷金/礼金敷金 礼金 | 検討 |
|---|---|---|---|---|
| 2-5階 | 102.69坪 (339.48m²) | 募集終了 | - | - |
| 2階 | 29.47坪 (97.43m²) | 募集終了 | - | - |
| 3階 | 29.47坪 (97.43m²) | 募集終了 | - | - |
| 4階 | 29.47坪 (97.43m²) | 募集終了 | - | - |
読込中...
近くのエリアで探してみる
代々木/初台/幡ヶ谷エリアで日月光ビルに似た条件の物件
読込中...
| 取扱様態 | 仲介 |
|---|---|
| 取扱会社 | 株式会社 アットオフィス |