※このサイトに記載がある賃貸条件は、敷金・保証金などの預かり金を除き、別途消費税がかかります。
物件情報
設備詳細
| 空調 | - |
|---|---|
| トイレ | - |
| 床仕様 | - |
| エレベータ | - |
| 駐車場設備 | - |
| その他 | 新耐震基準 |
六本木662ビルの賃貸オフィス・事務所に関するお問い合わせ
六本木662ビルについて
東京の中心、六本木に位置するこのマンションは、東京メトロ日比谷線六本木駅から徒歩わずか1分という驚異的なアクセスを誇るSOHO兼事務所利用が可能な物件です。その外観は茶レンガ風で、六本木通りに面しており、周囲の景色に溶け込みながらも一際目を惹く趣のあるデザインとなっています。元焼肉屋であったこの物件は、住宅だけでなく、様々なビジネスシーンにも対応可能な柔軟性を持っており、新たな事業の立ち上げや、既存事業の拠点としての利用に最適です。 この物件の最大の特徴は、その立地にあります。六本木という東京を代表するビジネス・エンターテイメント地区にありながら、地下鉄日比谷線へのアクセスが非常に良好である点は、従業員やクライアントの通勤、訪問に大きな利点となります。さらに、周囲には飲食店や商業施設が豊富にあり、仕事後のリフレッシュやビジネスランチにも困りません。特に、六本木ヒルズやアートギャラリーへのアクセスも良いため、ビジネスパートナーを迎える際のアフター5の選択肢が豊富である点もこの物件の大きな魅力です。 内装については、元焼肉屋というユニークな前歴を持ち、その空間を生かしたリノベーションが可能です。既存の設備を活用しつつ、新しいビジネスの形を創造することができます。また、SOHOや事務所利用に適した設備が整っており、スタートアップ企業から中堅企業まで、幅広い業種のビジネスニーズに応えることが可能です。 この物件は、立地の良さ、柔軟な利用可能性、そして魅力的な外観を兼ね備えており、ビジネスの拠点としてだけでなく、六本木という地の利を生かした様々な用途に適応できる可能性を秘めています。ビジネスの新たな展開を考えている方、独特の空間で創造性を発揮したい方にとって、この物件は絶好の選択肢となるでしょう。
六本木662ビルのこだわり
自分で探すより問い合わせる方が早いことがあります
WEB非公開物件があるから
オーナー様のご希望により「WEBでは非公開」にしている物件があります。 それらはWEBでいくら検索しても見つかりません。 先ずは条件などお知らせ頂けましたら非公開物件含め ピッタリのオフィスをご提案させて頂きます。 無理なお勧めはしておりませんので、お気軽にお問い合わせください。
対面でのご相談も受け付けております
ご来店も歓迎です
オフィス移転は社内・社外ともに非公開に行われることが殆どです。そのためアットオフィスでは、基本的に訪問によるコンサルティングを行っておりますが、ご来店の相談も歓迎です。お一人おひとりに親身にご対応させて頂きたい為、要予約とさせて頂いております。ご来店の際は先ずは下記よりご予約下さい。
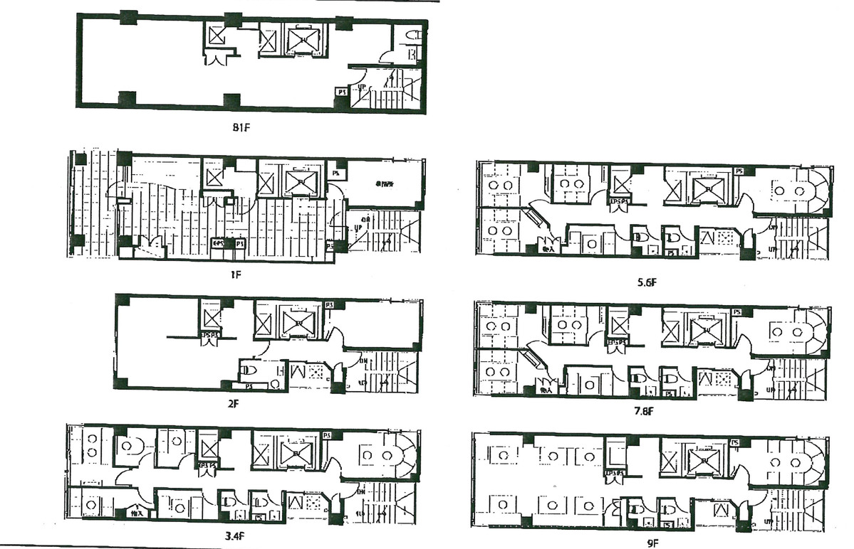
募集終了のテナント区画
| 階数 | 坪数 | 賃料 + 共益費 | 敷金/礼金敷金 礼金 | 検討 |
|---|---|---|---|---|
| B1階 | 199.98坪 (661.09m²) | 募集終了 | - | - |
| 2階 | 15.04坪 (50m²) | 募集終了 | - | - |
| 5階 | 18.19坪 (60.14m²) | 募集終了 | - | - |
| 6階 | 18.19坪 (60.14m²) | 募集終了 | - | - |
| 7階 | 18.19坪 (60.14m²) | 募集終了 | - | - |
| 8階 | 18.19坪 (60.14m²) | 募集終了 | - | - |
読込中...
赤坂/六本木/麻布エリアで六本木662ビルに似た条件の物件
読込中...
| 取扱様態 | 仲介 |
|---|---|
| 取扱会社 | 株式会社 アットオフィス |