PMO東日本橋4階の賃貸情報
70.33 坪 (232.49m²)
※このサイトに記載がある賃貸条件は、敷金・保証金などの預かり金を除き、別途消費税がかかります。
PMO東日本橋の建物概要
設備詳細
| 空調 | 個別空調 |
|---|---|
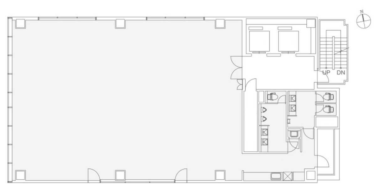
| トイレ | 男女別トイレ |
| 床仕様 | OA対応床(フリーアクセス) |
| エレベータ | 2 基 / エレベーター有 |
| 駐車場設備 | 空無 / 敷地内駐車場 |
| その他 | 機械警備 / 天井高2600mm以上 / 喫煙所 / 24時間利用可 / 新耐震基準 |
PMO東日本橋について
PMO東日本橋ビル: 東京都中央区東日本橋2-15-4に位置する本物件は、ビジネスの中心地における首選のオフィススペースです。このビルは、東日本橋駅から徒歩2分、馬喰町駅から徒歩2分、馬喰横山駅から徒歩4分、浅草橋駅から徒歩5分、浜町駅から徒歩8分、小伝馬町駅から徒歩11分という、複数の駅にアクセス可能な絶好の立地にあります。この地域は、多様なビジネスが集まるエリアであり、企業にとってのネットワーク形成に最適な環境を提供します。 物件の外観は、モダンでスタイリッシュな黒のパネルとガラス張りで構成され、清杉通り沿いに位置するため、視認性が非常に高いです。この特徴は、訪問客を迎える際の印象を強化し、ビジネスイメージの向上に貢献します。 内部について、基準階面積は約70坪と広々としており、天井高は2.7mと開放感に溢れる設計がなされています。大きな窓面により自然光がたっぷりと取り込まれ、室内は明るく快適なワークスペースを提供します。また、室内からの眺望も優れているため、働く環境の質を高めます。 エントランスは、シックな雰囲気で高級感があり、セキュリティゲートが設置されていることで、入居企業及びその来訪者の安全とプライバシーを守ります。このようなセキュリティ体制は、入居企業の信用度の向上にも繋がります。 竣工年は2009年で、9階建ての本物件は、2基のエレベーターを完備しており、スムーズなビル内移動をサポートします。周辺はオフィスや問屋が立ち並び、ビジネス機会の拡大に寄与する立地条件を備えています。 PMO東日本橋は、その優れたアクセス、機能性、セキュリティ、スタイリッシュなデザインを兼ね備えた賃貸オフィス物件です。これらの特性は、多様な業種の企業にとって、優れたビジネス環境を提供し、企業の成長と発展をサポートします。
自分で探すより問い合わせる方が早いことがあります
WEB非公開物件があるから
オーナー様のご希望により「WEBでは非公開」にしている物件があります。 それらはWEBでいくら検索しても見つかりません。 先ずは条件などお知らせ頂けましたら非公開物件含め ピッタリのオフィスをご提案させて頂きます。 無理なお勧めはしておりませんので、お気軽にお問い合わせください。
対面でのご相談も受け付けております
ご来店も歓迎です
オフィス移転は社内・社外ともに非公開に行われることが殆どです。そのためアットオフィスでは、基本的に訪問によるコンサルティングを行っておりますが、ご来店の相談も歓迎です。お一人おひとりに親身にご対応させて頂きたい為、要予約とさせて頂いております。ご来店の際は先ずは下記よりご予約下さい。
近くのエリアで探してみる
人形町/馬喰町/浜町エリアでPMO東日本橋に似た条件の物件
読込中...
PMO東日本橋と同じ最寄駅の物件
読込中...
| 取扱様態 | 仲介 |
|---|---|
| 取扱会社 | 株式会社 アットオフィス |