アソルティ小伝馬町Liens6階の賃貸情報
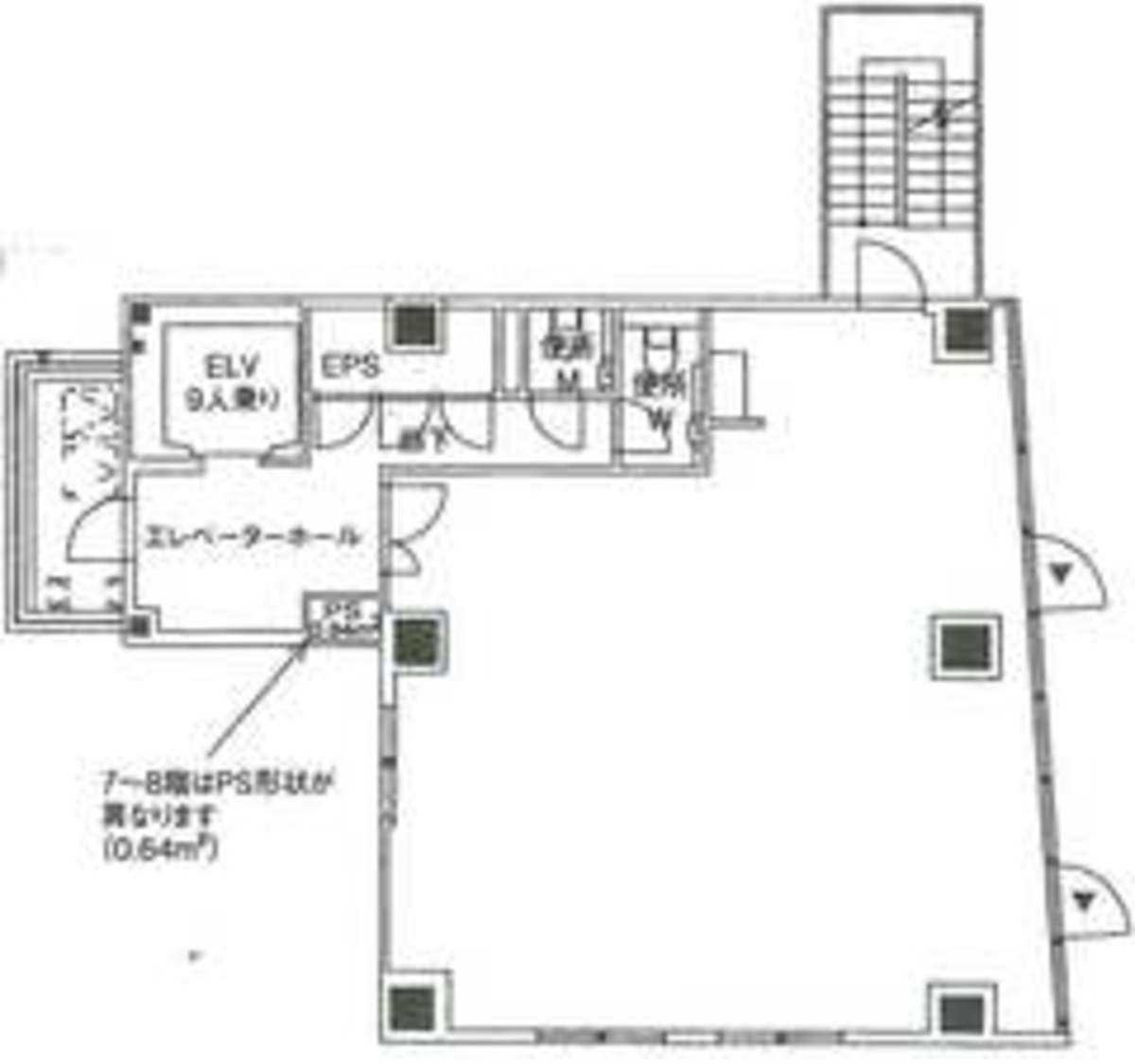
28.92 坪 (95.61m²)
※このサイトに記載がある賃貸条件は、敷金・保証金などの預かり金を除き、別途消費税がかかります。
アソルティ小伝馬町Liensの建物概要
設備詳細
| 空調 | 個別空調 |
|---|---|
| トイレ | 男女別トイレ室外 |
| 床仕様 | - |
| エレベータ | 1 基 |
| 駐車場設備 | 空無 / 機械式駐車場 |
| その他 | 機械警備 / 24時間利用可 / 光ファイバー / オートロック / 新耐震基準 / トランクルーム / セットアップ |
アソルティ小伝馬町Liens6階の賃貸オフィス・事務所に関するお問い合わせ
アソルティ小伝馬町Liensについて
中央区日本橋小伝馬町に位置する「アソルティ小伝馬町LIENSビル」は、現代のビジネスニーズに対応した、洗練されたオフィス環境を提供します。その魅力はただの立地や設備に留まらず、ビジネスの成功を後押しする環境が整っている点にあります。以下、その特性を詳細に解説いたします。 まず、立地の優位性についてですが、「アソルティ小伝馬町LIENSビル」は小伝馬町駅から僅か徒歩3分、その他にも馬喰横山駅や馬喰町駅が徒歩圏内にあり、3駅以上が利用可能なアクセスの良さが特徴です。このような利便性は、従業員の通勤のしやすさやビジネスパートナーとの会合において、大きな利点となります。 次に、ビルの設備についてです。2009年に竣工したこのビルは、新耐震基準を満たし、安全性にも配慮されています。ビル内には、機械警備を完備し、セキュリティ面でも安心して業務に専念できる環境が整っています。また、個別空調、OAフロア、男女別のトイレといった設備も充実しており、働く人々の快適さを追求しています。さらに、南側に採光の取れる明るいオフィス空間は、創造性と生産性の向上に貢献します。 エントランスの開放感や、月極駐車場の設置など、ビルの細部にわたる配慮も見逃せません。これらの設備やサービスは、ビジネスの効率化だけでなく、従業員や訪問者にとっても快適で魅力的な環境を提供します。 ビル周辺には、飲食店をはじめとする多様な施設があり、ビジネス以外の時間も充実させることが可能です。このような環境は、働く人々のワークライフバランスの向上にも寄与し、企業の魅力を高める要素となり得ます。 「アソルティ小伝馬町LIENSビル」は、これらの特性を活かし、ビジネスのあらゆる面で企業と従業員をサポートする環境を提供します。現代のビジネスニーズに応える優れた立地、先進の設備、快適なオフィス環境を求める企業にとって、最適な選択肢の一つであることは間違いありません。ビジネスの成功を目指すこの機会に「アソルティ小伝馬町LIENSビル」でのオフィス環境をご検討ください。
アソルティ小伝馬町Liensのこだわり
自分で探すより問い合わせる方が早いことがあります
WEB非公開物件があるから
オーナー様のご希望により「WEBでは非公開」にしている物件があります。 それらはWEBでいくら検索しても見つかりません。 先ずは条件などお知らせ頂けましたら非公開物件含め ピッタリのオフィスをご提案させて頂きます。 無理なお勧めはしておりませんので、お気軽にお問い合わせください。
対面でのご相談も受け付けております
ご来店も歓迎です
オフィス移転は社内・社外ともに非公開に行われることが殆どです。そのためアットオフィスでは、基本的に訪問によるコンサルティングを行っておりますが、ご来店の相談も歓迎です。お一人おひとりに親身にご対応させて頂きたい為、要予約とさせて頂いております。ご来店の際は先ずは下記よりご予約下さい。
近くのエリアで探してみる
人形町/馬喰町/浜町エリアでアソルティ小伝馬町Liensに似た条件の物件
読込中...
アソルティ小伝馬町Liensと同じ最寄駅の物件
読込中...
| 取扱様態 | 仲介 |
|---|---|
| 取扱会社 | 株式会社 アットオフィス |