※このサイトに記載がある賃貸条件は、敷金・保証金などの預かり金を除き、別途消費税がかかります。
物件情報
設備詳細
| 空調 | 個別空調 |
|---|---|
| トイレ | 男女別トイレ室内 |
| 床仕様 | - |
| エレベータ | - |
| 駐車場設備 | - |
| その他 | 新耐震基準 |
大河原ビルの賃貸オフィス・事務所に関するお問い合わせ
大河原ビルについて
大河原ビルは、北区中里1丁目に位置するオフィスビルです。JR山手線「駒込駅」から徒歩2分、東京メトロ南北線「駒込駅」から徒歩5分、さらに京浜東北線「田端駅」からは徒歩12分と、複数の路線が利用できる場所にあります。地上10階建ての構造を持ち、様々な業種や用途に応じた利用が想定しやすい建物です。 周辺は落ち着いた市街地で、近隣には飲食店や店舗なども点在しています。駅からの徒歩ルートも分かりやすく、取引先や従業員の移動面に配慮した立地となっています。建物規模がしっかりと確保されているため、ワンフロアでまとまったスペースを活用したいニーズにも対応が可能です。 エントランスや共用部分の管理状態も良好で、事務所や店舗など様々な事業用途での利用が検討できます。オフィスの新設・移転をお考えの法人様は、詳細はお問い合わせください。
大河原ビルのこだわり
自分で探すより問い合わせる方が早いことがあります
WEB非公開物件があるから
オーナー様のご希望により「WEBでは非公開」にしている物件があります。 それらはWEBでいくら検索しても見つかりません。 先ずは条件などお知らせ頂けましたら非公開物件含め ピッタリのオフィスをご提案させて頂きます。 無理なお勧めはしておりませんので、お気軽にお問い合わせください。
対面でのご相談も受け付けております
ご来店も歓迎です
オフィス移転は社内・社外ともに非公開に行われることが殆どです。そのためアットオフィスでは、基本的に訪問によるコンサルティングを行っておりますが、ご来店の相談も歓迎です。お一人おひとりに親身にご対応させて頂きたい為、要予約とさせて頂いております。ご来店の際は先ずは下記よりご予約下さい。
募集終了のテナント区画
| 階数 | 坪数 | 賃料 + 共益費 | 敷金/礼金敷金 礼金 | 検討 |
|---|---|---|---|---|
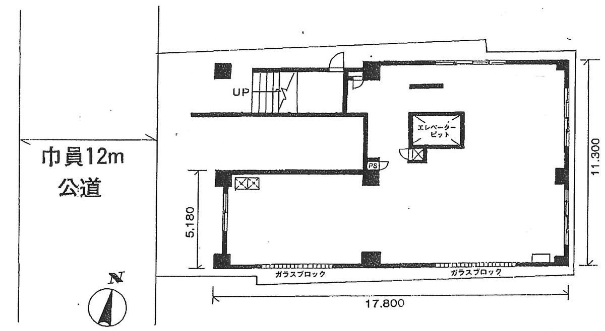
| 1階 | 44.62坪 (147.52m²) | 募集終了 | - | - |
読込中...
北区エリアで大河原ビルに似た条件の物件
読込中...
| 取扱様態 | 仲介 |
|---|---|
| 取扱会社 | 株式会社 アットオフィス |