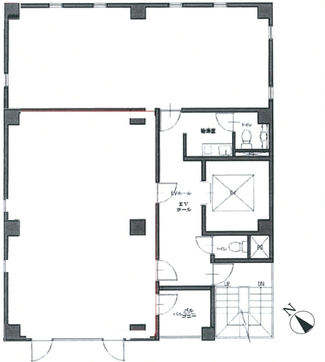
OSセンター南ビルの賃料条件
| 階数 | 坪数 | 賃料 + 共益費 | 敷金/礼金敷金 礼金 | 検討 |
|---|---|---|---|---|
| 3階 | 12.98坪 (42.93m²) | お問合せ下さい (坪:-) | 8ヶ月 無8ヶ月/無 | |
| 3階 | 16.19坪 (53.54m²) | お問合せ下さい (坪:-) | 8ヶ月 無8ヶ月/無 |
※このサイトに記載がある賃貸条件は、敷金・保証金などの預かり金を除き、別途消費税がかかります。
物件情報
設備詳細
| 空調 | 個別空調 |
|---|---|
| トイレ | - |
| 床仕様 | - |
| エレベータ | 1 基 |
| 駐車場設備 | - |
| その他 | 機械警備 / 24時間利用可 / 光ファイバー / 新耐震基準 |
OSセンター南ビルの賃貸オフィス・事務所に関するお問い合わせ
OSセンター南ビルについて
OSセンター南ビルは、横浜市都筑区茅ケ崎中央に位置する地上8階建てのオフィスビルです。横浜市ブルーライン「センター南駅」および横浜市グリーンライン「センター南駅」から徒歩5分、また「都筑ふれあいの丘駅」からも徒歩圏内となっており、複数路線の利用が可能です。 建物には機械警備が導入されており、24時間の利用が可能です。光ファイバーを備えているため、通信環境を必要とする法人様にも対応しています。また、新耐震基準を満たしている点も特徴の一つです。エレベーターは1基設置されています。 複数の駅が利用できる立地にありながら、周辺は住居や商業施設が調和したエリアとなっていることから、落ち着いた雰囲気の中で業務を進めたい法人様にも利用しやすい建物です。周辺環境や入居のご相談、区画の詳細など、詳細はお問い合わせください。
OSセンター南ビルのこだわり
自分で探すより問い合わせる方が早いことがあります
WEB非公開物件があるから
オーナー様のご希望により「WEBでは非公開」にしている物件があります。 それらはWEBでいくら検索しても見つかりません。 先ずは条件などお知らせ頂けましたら非公開物件含め ピッタリのオフィスをご提案させて頂きます。 無理なお勧めはしておりませんので、お気軽にお問い合わせください。
対面でのご相談も受け付けております
ご来店も歓迎です
オフィス移転は社内・社外ともに非公開に行われることが殆どです。そのためアットオフィスでは、基本的に訪問によるコンサルティングを行っておりますが、ご来店の相談も歓迎です。お一人おひとりに親身にご対応させて頂きたい為、要予約とさせて頂いております。ご来店の際は先ずは下記よりご予約下さい。
募集終了のテナント区画
| 階数 | 坪数 | 賃料 + 共益費 | 敷金/礼金敷金 礼金 | 検討 |
|---|---|---|---|---|
| 1-2階 | 56.79坪 (187.74m²) | 募集終了 | - | - |
| 4階 | 16.19坪 (53.52m²) | 募集終了 | - | - |
| 4階 | 12.99坪 (42.93m²) | 募集終了 | - | - |
| 5階 | 29.18坪 (96.47m²) | 募集終了 | - | - |
| 6階 | 16.19坪 (53.54m²) | 募集終了 | - | - |
| 7階 | 12.98坪 (42.93m²) | 募集終了 | - | - |
| 7階 | 16.19坪 (53.54m²) | 募集終了 | - | - |
読込中...
都筑区エリアでOSセンター南ビルに似た条件の物件
読込中...
| 取扱様態 | 仲介 |
|---|---|
| 取扱会社 | 株式会社 アットオフィス |