THE SHORE 日本橋茅場町3階の賃貸情報
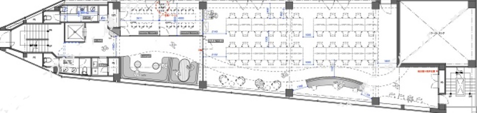
88.56 坪 (292.78m²)
※このサイトに記載がある賃貸条件は、敷金・保証金などの預かり金を除き、別途消費税がかかります。
THE SHORE 日本橋茅場町の建物概要
設備詳細
| 空調 | 個別空調 |
|---|---|
| トイレ | 男女別トイレ室外 |
| 床仕様 | OA対応床(フリーアクセス) |
| エレベータ | 1 基 |
| 駐車場設備 | - |
| その他 | 機械警備 / 24時間利用可 / 光ファイバー / 新耐震基準 / 居抜き / セットアップ |
THE SHORE 日本橋茅場町3階の賃貸オフィス・事務所に関するお問い合わせ
THE SHORE 日本橋茅場町について
【THE SHORE 日本橋茅場町】のご紹介 東京のビジネスシーンで一際輝く存在、【THE SHORE 日本橋茅場町】は、都市の活力と自然の美しさが融合する稀有なオフィスビルです。この物件は、東京メトロ日比谷線、東西線「茅場町」駅からわずか徒歩5分というアクセスの良さを誇ります。ビジネスの中心地でありながら、日本橋川の潤いと静けさを享受できるこの立地は、日々の業務に新たな息吹を与えてくれます。 ビルの設備とスペックにおいては、先進性と快適性が見事に融合しています。基準階は約84坪の広々とした空間が広がり、角地に位置するため、どのオフィスも2面採光で自然光がたっぷりと入り込みます。リバーサイドに面した大きな窓からは、日本橋川の美しい風景が望め、開放的なリバービューが業務の質を高めることでしょう。さらに、屋上が開放されているのも特筆すべき点で、ベンチが設置された静かな空間では、心地よい風を感じながらリフレッシュすることができます。 エントランスおよび室内は最近リニューアルされ、洗練されたデザインと最新の設備が導入されています。このビルでは、企業のブランドイメージを高めるための細部にわたる気配りが感じられ、訪れるクライアントをも魅了します。セキュリティも万全で、入居企業の安全とプライバシーをしっかり保護します。 【THE SHORE 日本橋茅場町】は、単なるオフィスビルを超えた価値を提供します。ビジネスの成功はもちろん、働く人々の幸福感と生産性の向上に貢献する環境がここにあります。立地の良さ、高スペックな設備、そして自然との調和が生み出す豊かなビジネスライフを、ぜひこのビルで実現してください。
THE SHORE 日本橋茅場町のこだわり
自分で探すより問い合わせる方が早いことがあります
WEB非公開物件があるから
オーナー様のご希望により「WEBでは非公開」にしている物件があります。 それらはWEBでいくら検索しても見つかりません。 先ずは条件などお知らせ頂けましたら非公開物件含め ピッタリのオフィスをご提案させて頂きます。 無理なお勧めはしておりませんので、お気軽にお問い合わせください。
対面でのご相談も受け付けております
ご来店も歓迎です
オフィス移転は社内・社外ともに非公開に行われることが殆どです。そのためアットオフィスでは、基本的に訪問によるコンサルティングを行っておりますが、ご来店の相談も歓迎です。お一人おひとりに親身にご対応させて頂きたい為、要予約とさせて頂いております。ご来店の際は先ずは下記よりご予約下さい。
近くのエリアで探してみる
人形町/馬喰町/浜町エリアでTHE SHORE 日本橋茅場町に似た条件の物件
読込中...
THE SHORE 日本橋茅場町と同じ最寄駅の物件
読込中...
| 取扱様態 | 仲介 |
|---|---|
| 取扱会社 | 株式会社 アットオフィス |