アークヒルズ仙石山森タワーの賃料条件
| 階数 | 坪数 | 賃料 + 共益費 | 敷金/礼金敷金 礼金 | 検討 |
|---|---|---|---|---|
| 29階 | 25.7坪 (84.96m²) | お問合せ下さい (坪:-) | 相談 無相談/無 | |
| 34階 | 328.2坪 (1085.12m²) | お問合せ下さい (坪:-) | 相談 無相談/無 | |
| 35階 | 329.1坪 (1087.97m²) | お問合せ下さい (坪:-) | 相談 無相談/無 |
※このサイトに記載がある賃貸条件は、敷金・保証金などの預かり金を除き、別途消費税がかかります。
物件情報
設備詳細
| 空調 | セントラル空調 |
|---|---|
| トイレ | - |
| 床仕様 | OA対応床(フリーアクセス) |
| エレベータ | 12 基 |
| 駐車場設備 | 空有 |
| その他 | 大型ビル / 高層ビル / 新耐震基準 / 24時間利用可 / 居抜き |
アークヒルズ仙石山森タワーの賃貸オフィス・事務所に関するお問い合わせ
アークヒルズ仙石山森タワーについて
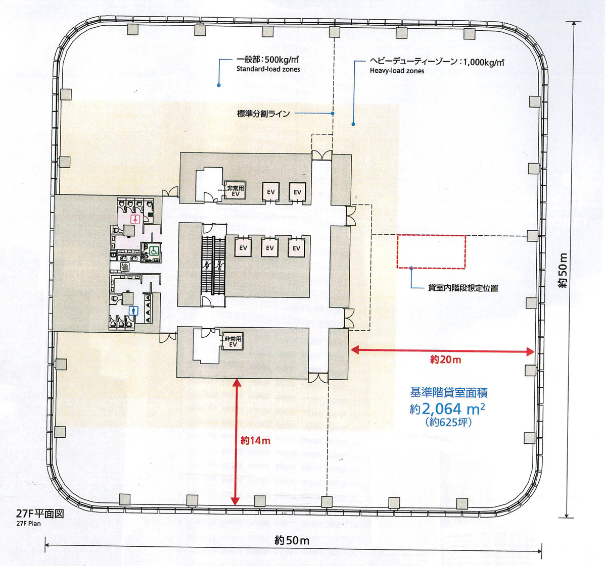
アークヒルズ仙石山森タワーは港区六本木に位置し、2012年に竣工した地上47階建ての超高層オフィスビルです。この物件は、東京メトロ南北線六本木一丁目駅から徒歩5分、日比谷線神谷町駅から徒歩8分の距離にあり、都内主要ビジネスエリアへのアクセスが非常に良好です。特に、ビジネスシーンにおいて重要な立地条件を満たしており、多忙なビジネスパーソンにとっては、移動の効率化が図れる大きなメリットとなります。 建物自体は最新の省エネ技術が取り入れられており、LED照明や自動調光機能、Low-Eペアガラスの使用などにより、快適なオフィス環境を提供しながらも環境負荷の低減を実現しています。また、制震構造により、地震発生時の安全性も高められております。 オフィスフロアは3階~24階にレジデンスが配置され、25階以上がオフィススペースとなっており、各オフィスは約623坪の広さを誇ります。この広々とした空間は、無柱で柔軟なレイアウトが可能であり、企業のニーズに応じたオフィス環境を実現できます。また、オフィスエントランスにはフラッパーゲートが設置され、セキュリティの面でも配慮がなされています。 アークヒルズ仙石山森タワーの魅力は、単なるオフィスビルを超えた、複合施設としての機能を有している点にあります。低層階には店舗が入居し、日常的な買い物や飲食に便利です。さらに、25階にはオフィスコンシェルジュ機能を持つスカイラウンジが設けられており、ビジネスミーティングや休憩スペースとしての利用が可能です。これらの設備は、働く人々の生活の質を高めるとともに、ビジネスの効率化にも寄与します。 総じて、アークヒルズ仙石山森タワーは、高いセキュリティ、豊富な設備、優れたアクセス性を兼ね備えた、ビジネスの場として理想的な環境を提供しています。高いスペックと、六本木という国際的なビジネスエリアの中心に位置する立地は、企業のブランドイメージ向上にも寄与するでしょう。
自分で探すより問い合わせる方が早いことがあります
WEB非公開物件があるから
オーナー様のご希望により「WEBでは非公開」にしている物件があります。 それらはWEBでいくら検索しても見つかりません。 先ずは条件などお知らせ頂けましたら非公開物件含め ピッタリのオフィスをご提案させて頂きます。 無理なお勧めはしておりませんので、お気軽にお問い合わせください。
対面でのご相談も受け付けております
ご来店も歓迎です
オフィス移転は社内・社外ともに非公開に行われることが殆どです。そのためアットオフィスでは、基本的に訪問によるコンサルティングを行っておりますが、ご来店の相談も歓迎です。お一人おひとりに親身にご対応させて頂きたい為、要予約とさせて頂いております。ご来店の際は先ずは下記よりご予約下さい。
周辺環境
募集終了のテナント区画
読込中...
赤坂/六本木/麻布エリアでアークヒルズ仙石山森タワーに似た条件の物件
読込中...
| 取扱様態 | 仲介 |
|---|---|
| 取扱会社 | 株式会社 アットオフィス |