六本木アートシェルビル4階の賃貸情報
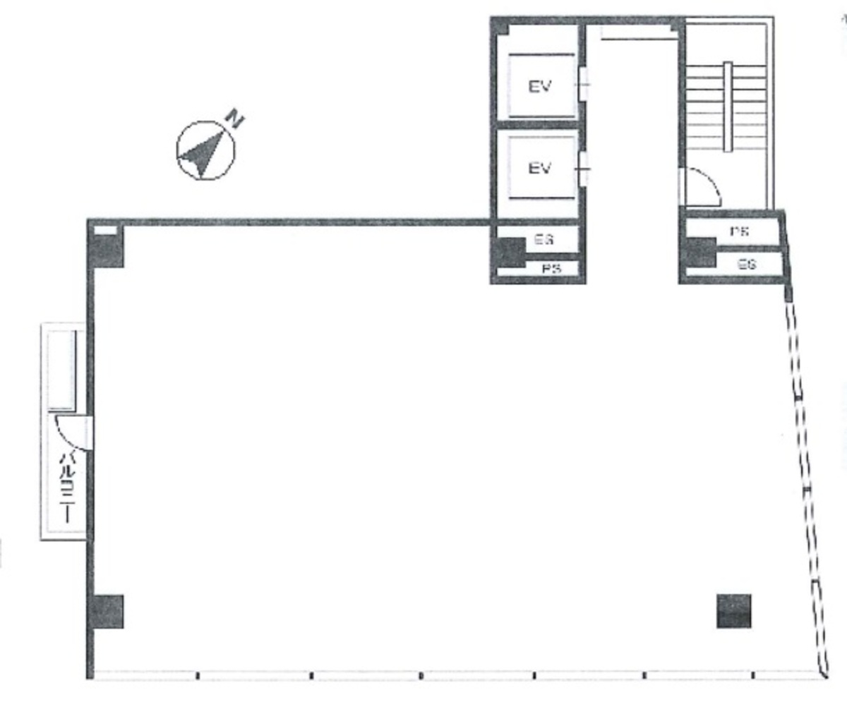
58.9 坪 (194.71m²)
※このサイトに記載がある賃貸条件は、敷金・保証金などの預かり金を除き、別途消費税がかかります。
六本木アートシェルビルの建物概要
設備詳細
| 空調 | - |
|---|---|
| トイレ | - |
| 床仕様 | - |
| エレベータ | 2 基 |
| 駐車場設備 | - |
| その他 | 機械警備 / 24時間利用可 / 新耐震基準 / スケルトン / クリニック |
六本木アートシェルビルについて
六本木アートシェルビルは、東京都港区六本木7丁目に位置する、店舗とオフィスが融合したモダンな複合ビルです。この地域は、ビジネスと文化が交差する六本木エリアの中心部にあり、多様な企業やアートギャラリーにとって魅力的な立地を提供しています。ビルの最寄り駅は、東京メトロ日比谷線および都営地下鉄大江戸線の六本木駅、または東京メトロ千代田線の乃木坂駅で、どちらも徒歩圏内にあります。 六本木アートシェルビルは、その目を引くガラス張りの外観が特徴で、通りからの視認性が非常に高いです。ビル内部は、スラブ下で4mの天井高があり、開放感溢れる空間を提供しています。広々とした室内は、光をたっぷりと取り入れる設計となっており、働く人々にとって快適な環境を実現しています。 ビル内には2基のエレベーターが設置されており、ビルの利便性とアクセシビリティを高めています。店舗スペースでは、重飲食業を含む幅広い業種が入居可能で、ビジネスの多様性を支えています。 周辺環境も非常に充実しており、ビルの前面には六本木アートシェルビル前面の通りが広がり、徒歩1分の場所にセブンイレブンがあります。近くには東京ミッドタウンがあり、ショッピングや飲食に便利です。また、国立新美術館が至近にあり、文化的な刺激も身近に楽しめます。六本木駅までは徒歩6分と、公共交通機関へのアクセスも良好です。 このように、六本木アートシェルビルは、その立地、設備、周辺環境の3つの要素が融合し、ビジネスと文化の両面で活躍する企業や店舗にとって最適な環境を提供しています。オフィスを構える企業にとっては、アクセスの良さと快適なオフィス環境が、社員の仕事の効率性とクリエイティビティの向上を促します。また、店舗にとっては、高い視認性と豊富な人通りがビジネス成功の鍵となりえます。六本木アートシェルビルは、こうしたビジネスの可能性を広げる場所として、ぜひご検討いただきたい物件です。
自分で探すより問い合わせる方が早いことがあります
WEB非公開物件があるから
オーナー様のご希望により「WEBでは非公開」にしている物件があります。 それらはWEBでいくら検索しても見つかりません。 先ずは条件などお知らせ頂けましたら非公開物件含め ピッタリのオフィスをご提案させて頂きます。 無理なお勧めはしておりませんので、お気軽にお問い合わせください。
対面でのご相談も受け付けております
ご来店も歓迎です
オフィス移転は社内・社外ともに非公開に行われることが殆どです。そのためアットオフィスでは、基本的に訪問によるコンサルティングを行っておりますが、ご来店の相談も歓迎です。お一人おひとりに親身にご対応させて頂きたい為、要予約とさせて頂いております。ご来店の際は先ずは下記よりご予約下さい。
赤坂/六本木/麻布エリアで六本木アートシェルビルに似た条件の物件
読込中...
六本木アートシェルビルと同じ最寄駅の物件
読込中...
| 取扱様態 | 仲介 |
|---|---|
| 取扱会社 | 株式会社 アットオフィス |